Работаем по всей России

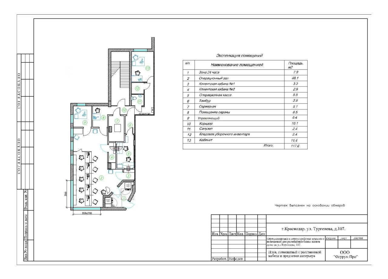
Проектная работы по банку, расположенного по адресу: г. Краснодар, ул. Тургенева, д. 107

Настоящий проект разработан в целях обеспечения беспрепятственного доступа к помещениям банка для людей с ограниченными возможностями и маломобильных групп населения (МГН) по принципу «разумного приспособления». Адаптируется эксплуатируемое помещение банка ПАО «ПСБ», расположенное по адресу: г. Краснодар, ул. Тургенева, д.107.

Проектная документация разработана на основании:

  • технического задания на проектирование;
  • исходных данных, представленных заказчиком;
  • результатах обследования;
  • действующих строительных норм и правил.

В проекте предусматривается комплекс мероприятий по повышению качества архитектурной среды при соблюдении:

  1. Досягаемости мест целевого посещения кратчайшим путем и беспрепятственного перемещения внутри помещений банка.
  2. Безопасности путей движения, а также мест обслуживания.
  3. Своевременного получения МГН полноценной и качественной информации, позволяющей ориентироваться в пространстве, использовать оборудование (в том числе для самообслуживания), получать услуги, и т.д.

Мероприятия по адаптации для людей с нарушением зрения

В соответствии с СП 59.13330.2020 технические средства информирования, ориентирования и сигнализации в местах массового посещения должны обеспечивать посетителям объекта возможность однозначной информации объектов и мест посещения, получения информации о размещении и назначении функциональных элементов, об ассортименте и характере предоставляемых услуг, надежной ориентации в пространстве.

Мероприятия для людей с дефектом слуха

Проектом предусмотрена установка индукционной системы с субтитрированием «VEGA-1» на месте обслуживания МГН.

Портативная индукционная система с субтитрированием «VEGA-1» улучшает качество звука для слабослышащих людей, но и преобразует речь в текстовую информацию, что позволяет оператору без каких-либо затруднений общаться и с тотально глухими посетителями. В комплект изделия входит индукционная система с субтитрированием "VEGA-1" и планшет. Для работы устройства в режиме текстофона необходима точка доступа к Wi-Fi и приложение.

Устройство выполнено в цельнолитом пластиковом корпусе с интегрированным сенсорным экраном для отображения визуальной информации. Бесперебойную работу системы обеспечивает возможность её подключения к сети 220V.

Мероприятия по адаптации для людей, передвигающихся на креслах-колясках

Установить на лестницах ограждения с поручнями в соответствии с СП 59.13330.2020 п. 5.1.13.

Конструкция поручней должна отвечать требованиям СП 59.13330.2020 и ГОСТ Р 51261-2022. Опорные поручни выполнить на высотах 0,7 и 0,9 метра. Диаметр поручня принят проектом 38мм, что является оптимальным для обхвата руки. Конструкция опорной части по всей длине является непрерывной.

Проектом предусмотрена установка кнопки вызова персонала. Кнопка устанавливаются при в входе в отделение банка.

Доступ в отделение банка для инвалидов на креслах-колясках осуществляется с помощью мобильного лестничного подъемника. При поступлении вызова с кнопки вызова персонала на приемник, расположенных в месте постоянного прибывания персонала, сотрудник окажет помощь инвалиду на кресле-коляске. Проектом рекомендовано использовать лестничный подъемник для инвалидов со съемной платформой, по типу лестничного (гусеничного) подъемника Барс УГП-130. Проектом рекомендовано, чтобы при оказании помощи для инвалида на кресле-коляске присутствовало два обученных и подготовленных сотрудника.  

Необходимые параметры стола для обслуживания посетителей на креслах-колясках: поверхность стола должна находиться на высоте не более 0,80 - 0,85 м над уровнем пола. Ширина и высота проема для ног должна быть не менее 0,75 м, глубиной не менее 0,49 м. Ширина рабочего стола у места получения услуги должна быть не менее 1,0 м.

Дверные проемы не должны иметь порогов и перепадов высот пола. При необходимости устройства порогов их высота или перепад высот не должны превышать 0,014 м.

Перечень использованных нормативных и регламентирующих документов

  1. СП 59.13330.2020 «Доступность зданий и сооружений для маломобильных групп населения». Актуализированная редакция СНиП 35-01-2001.
  2. СП 136.13330.2012 «Здания и сооружения. Общие положения проектирования с учетом доступности для маломобильных групп населения» (с Изменениями №1).
  3. СП 138.13330.2012 «Общественные здания и сооружения, доступные маломобильным группам населения. Правила проектирования» (с Изменениями №1).
  4. ГОСТ Р 50602-93 «Кресла-Коляски. Максимальные габаритные размеры».
  5. ГОСТ Р 51261-22 «Устройства опорные стационарные для маломобильных групп населения. Типы и общие технические требования».
  6. ГОСТ Р 52131-2019 «Средства отображения информации знаковые для инвалидов. Технические требования».
  7. ГОСТ Р 52875-2018 «Указатели тактильные наземные для инвалидов по зрению. Технические требования».
  8. Методические рекомендации ЦБ РФ от 26.04.2019 № 12.

Оставьте свои контакты в полях ниже, и мы с вами свяжемся для обсуждения вашего проекта.

Выделите опечатку и нажмите Ctrl + Enter, чтобы отправить сообщение об ошибке.