Работаем по всей России

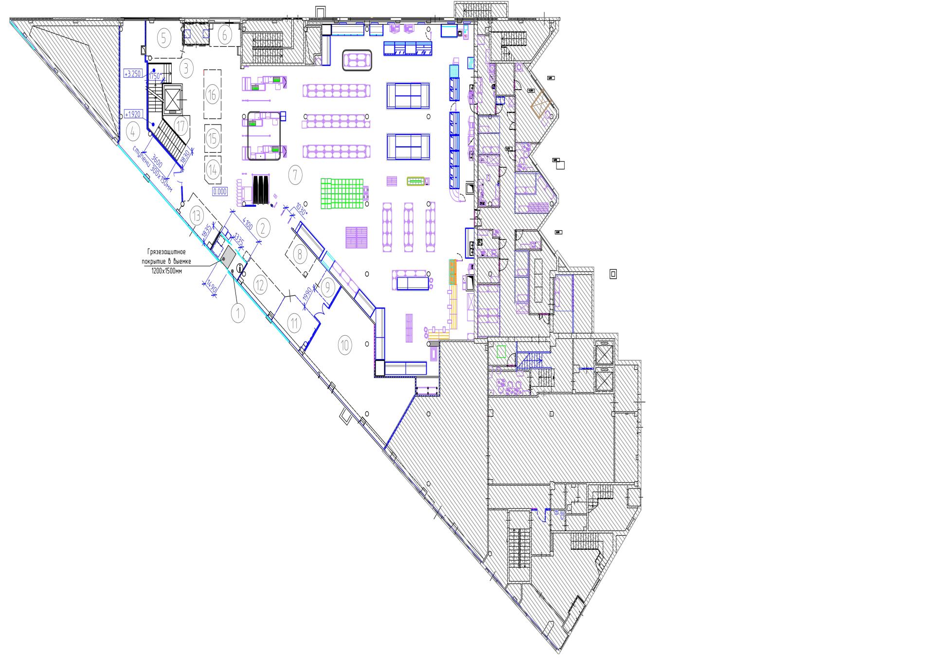
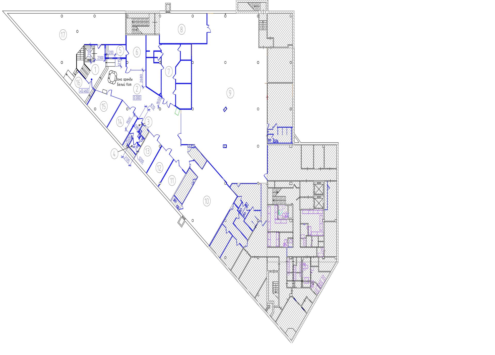
Адаптация помещений торгового центра "Корабль" для МГН, расположенных по адресу г. Москва, ул. Волынская, д. 18

Введение: Данный проект разработан с целью обеспечения легкого доступа для людей с ограниченными возможностями и маломобильных групп населения (МГН) в торговом центре. Принципом, на котором основывается проект, является "разумное приспособление". В рамках данного проекта будет проведена адаптация помещений торгового центра "Корабль", расположенного по адресу: г. Москва, ул. Воротынская, д. 18. Разработка проектной документации основывается на следующих источниках:

  • техническом задании на проектирование;
  • предоставленных заказчиком исходных данных;
  • действующих строительных нормах и правилах. В рамках проекта предусмотрены комплексные 

Мероприятия, направленные на улучшение архитектурной среды с соблюдением следующих принципов:

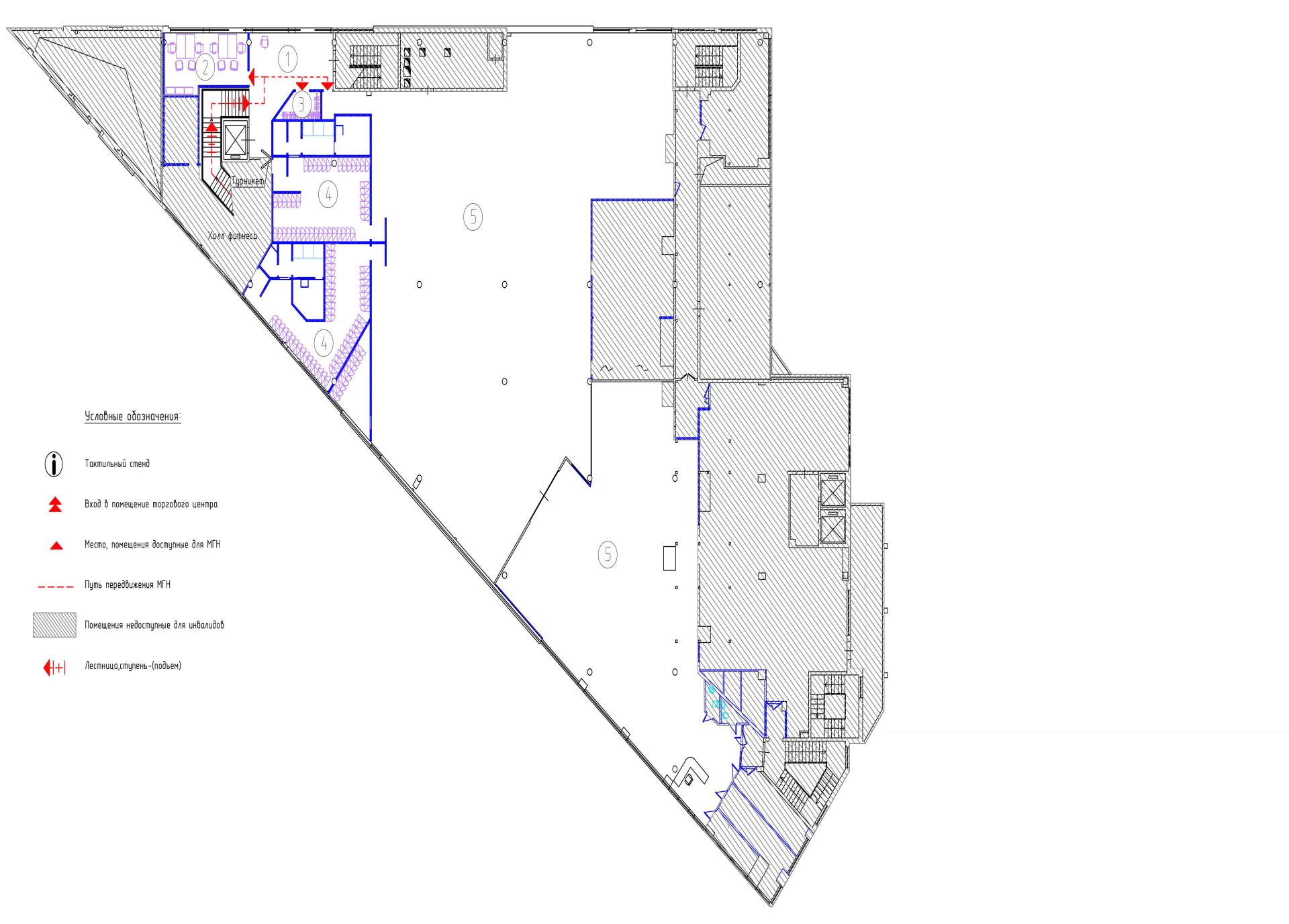
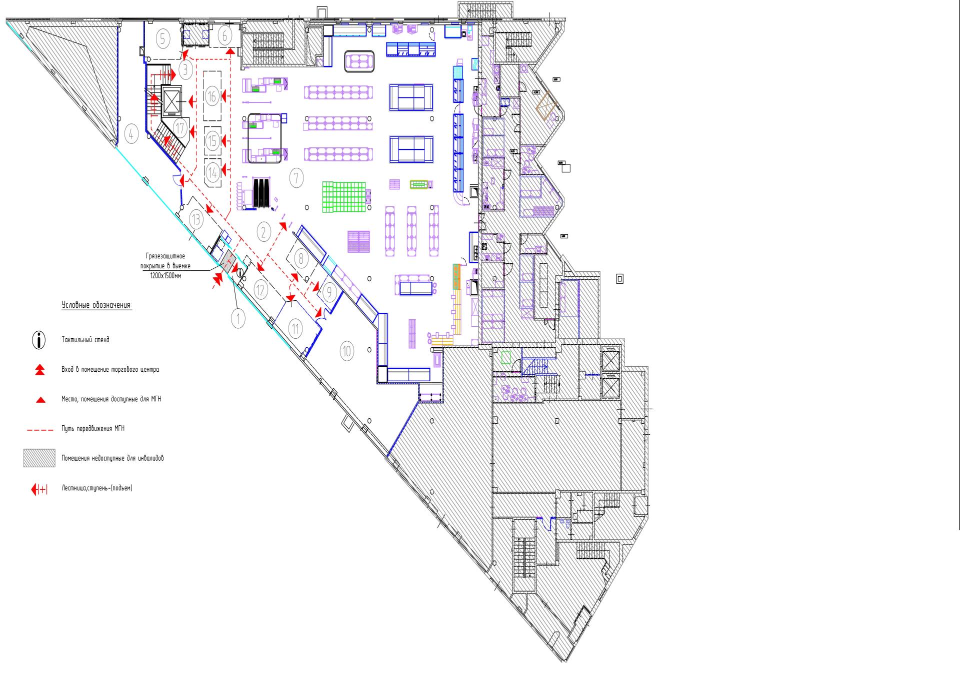
  1. обеспечение доступности целевых мест по кратчайшему пути и беспрепятственного перемещения внутри помещений торгового центра;
  2. обеспечение безопасности путей движения и зон обслуживания;

Предоставление МГН своевременной и полноценной информации, необходимой для ориентации в пространстве, использования оборудования (в том числе для самообслуживания), получения услуг и т. д. Проектные решения не ограничивают условия проживания других групп населения, находящихся в помещении торгового центра. Однако данный проект не предусматривает обустройство следующих элементов здания:

  • на входной площадке не будет установлен навес и водоотвод, так как здание было спроектировано и построено до введения в силу норм, предусмотренных сводами правил СП59.13330.2020. Соответственно, проект будет разработан в соответствии с принципом "разумного приспособления".
  • с учетом расчетов пожарного риска время эвакуации маломобильных групп населения не превышает время, необходимое для эвакуации остальных посетителей здания. Поэтому обустройство безопасных зон в подвале и на 2-ом этаже здания не предусмотрено.

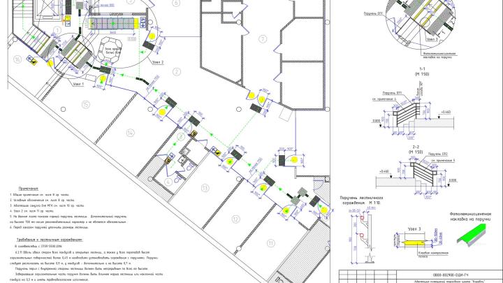
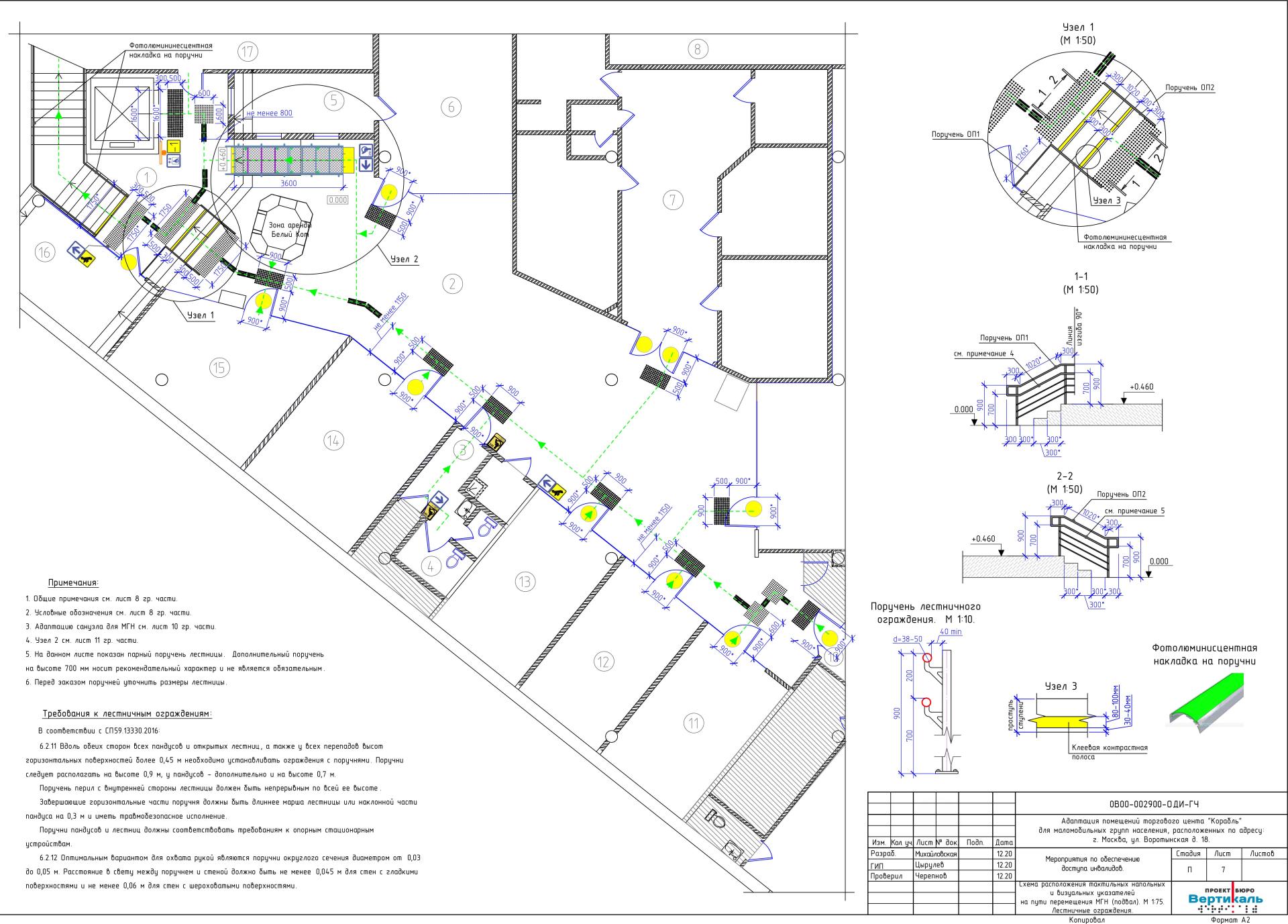
Мероприятия по адаптации для людей с нарушением зрения.

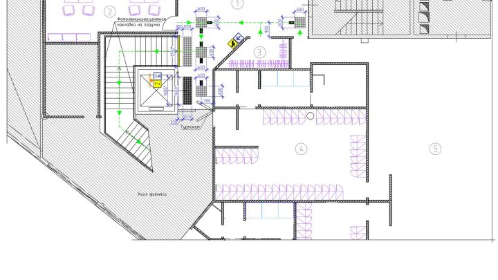
Тактильные настенные указатели на путях перемещения МГН. В соответствии с требованиями СП59.13330.2020, в местах массового посещения необходимо установить технические средства информирования, ориентирования и сигнализации, чтобы обеспечить посетителям объекта четкую информацию о его объектах и местах, размещении и назначении функциональных элементов, а также надежную ориентацию в пространстве. В рамках данного проекта предусмотрено установить тактильные визуальные указатели на путях перемещения МГН.

Входная группа:

  • тактильная визуальная табличка размером 100х300 мм с дублированием информации в системе Брайля, указывающая наименование учреждения и режим работы. Табличка должна быть установлена перед входной дверью со стороны дверной ручки (рабочей створки).
  • тактильная мнемосхема размером 470 х 610 мм с планом помещений и их назначением, дублирующая информацию тактильным плоскопечатным способом в системе Брайля. Мнемосхема должна быть размещена в тамбуре с правой стороны от входа и закреплена на стене.
  • тактильная пиктограмма размером 150 х 150 мм с обозначением доступности объекта для инвалидов, передвигающихся на креслах-колясках. Пиктограмма должна быть установлена перед входной дверью.
  • тактильная пиктограмма размером 150 х 150 мм с обозначением доступности объекта для инвалидов по слуху. Пиктограмма должна быть установлена перед входной дверью.
  • тактильная пиктограмма размером 150 х 200 мм с обозначением доступности объекта для инвалидов по зрению. Пиктограмма должна быть установлена перед входной дверью.
  • тактильная пиктограмма "Вход в помещение" размером 150 х 150 мм.
  • тактильная пиктограмма "Выход из помещения" размером 150 х 150 мм. Установка тактильных визуальных указателей должна осуществляться на высоте 1,2-1,6 м от уровня пешеходной поверхности.

Для облегчения восприятия информации людьми с нарушениями слуха, такими как использование слуховых аппаратов, в ограниченном пространстве с большим скоплением людей или при наличии посторонних звуков, применяются специальные системы индукционного типа. Эти системы производятся с использованием высококачественных европейских комплектующих.

Индукционная система представляет собой усилитель звуковой частоты, который получает исходный звуковой сигнал (музыку, речь, информационные сообщения), обрабатывает его и передает в нагрузку. При этом создается магнитное поле, которое изменяется в соответствии с звуковыми колебаниями. В приемной катушке устройства генерируются токи, повторяющие исходный звуковой сигнал. Полученный сигнал воспроизводится с помощью наушников, что позволяет расширить аудио-восприятие даже при наличии значительных акустических преград.

В рамках данного проекта предусмотрена установка портативной индукционной петли VERT-1a на месте обслуживания МГН. Эта портативная индукционная петля предназначена для использования на рабочем столе, при этом пиктограмма должна быть обращена в сторону слабослышащего. Площадь покрытия составляет 1,2 м² в рабочем диапазоне 1 кГц.

Исправленный перечень использованных нормативных и регламентирующих документов:

  1. СП 59.13330.2020 "Доступность зданий и сооружений для маломобильных групп населения". Актуализированная редакция СНиП 35-01-2001 (с Изменениями №1).
  2. СП 136.13330.2012 "Здания и сооружения. Общие положения проектирования с учетом доступности для маломобильных групп населения" (с Изменениями №1).
  3. СП 138.13330.2012 "Общественные здания и сооружения, доступные маломобильным группам населения. Правила проектирования" (с Изменениями №1).
  4. ГОСТ Р 50602-93 "Кресла-Коляски. Максимальные габаритные размеры".
  5. ГОСТ Р 51261-17 "Устройства опорные стационарные реабилитационные. Типы и технические требования".
  6. ГОСТ Р 52131-2019 "Средства отображения информации знаковые для инвалидов. Технические требования".
  7. ГОСТ Р 52875-2018 "Указатели тактильные наземные для инвалидов по зрению. Технические требования".

Заказать проект

Выделите опечатку и нажмите Ctrl + Enter, чтобы отправить сообщение об ошибке.