Работаем по всей России

Адаптация помещений АО "Альфа-Банк" в городе Магнитогорск 2 отделения

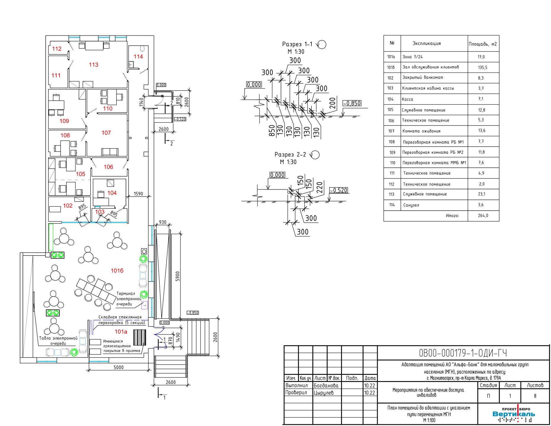
Данный проект разработан с целью обеспечения беспрепятственного доступа к помещениям банка для людей с ограниченными возможностями и маломобильных групп населения. Проект предусматривает адаптацию эксплуатируемого помещения банка, расположенного по адресу: г. Магнитогорск, пр-т Карла Маркса, д. 179А и пр-т Ленина, д. 51  Основой для разработки проекта служили техническое задание на проектирование, исходные данные, представленные заказчиком, результаты обследования и действующие строительные нормы и правила.

В рамках проекта предусмотрены комплексные мероприятия, направленные на повышение качества архитектурной среды с учетом следующих аспектов: досягаемость мест целевого посещения, безопасность путей движения и обслуживания, предоставление полноценной и качественной информации для маломобильных групп населения. Проектные решения не ограничивают условия жизнедеятельности других групп населения в помещении банка.

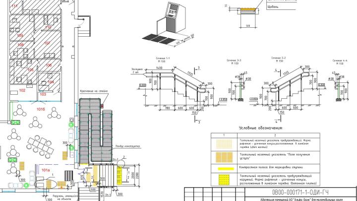
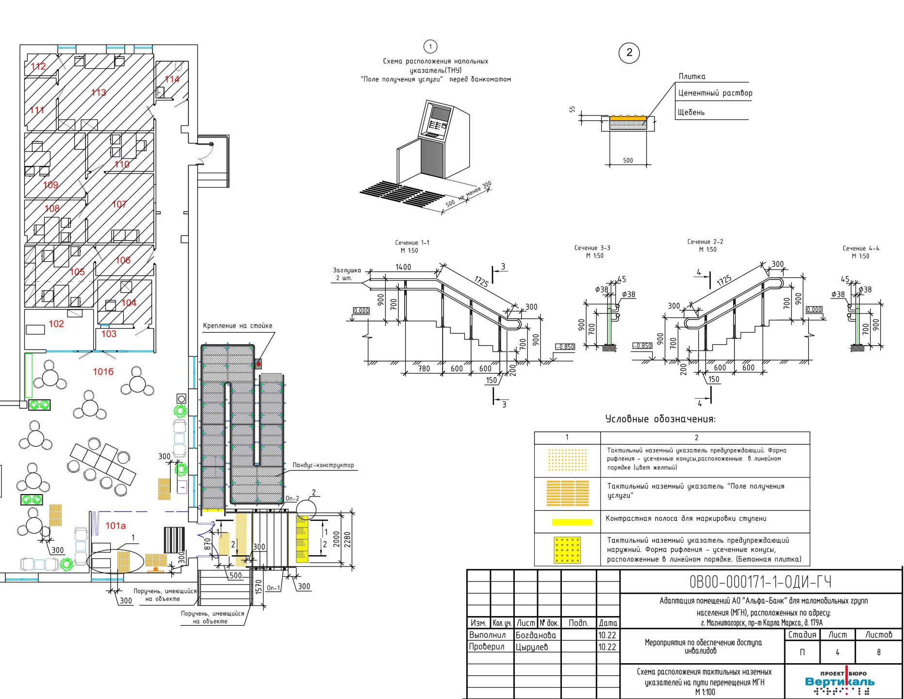
После реализации мероприятий, предусмотренных проектом, инвалиды групп мобильности М1-М4 смогут безбарьерно перемещаться от входа здания к внутренним помещениям. Одно из проектных решений включает тактильные настенные указатели на путях перемещения для маломобильных групп населения. Эти указатели включают тактильную визуальную табличку с информацией на системе Брайля, тактильную мнемосхему с планом и назначением помещений, знаки доступности для инвалидов-колясочников, знаки доступности для инвалидов по слуху и зрению, а также тактильные пиктограммы "Банкомат".

Проект предусматривает адаптацию помещений банка, повышение безопасности путей движения и обслуживания, а также обеспечение полноценной информации для маломобильных групп населения. В частности, используются тактильные настенные указатели, тактильные визуальные таблички, мнемосхемы, знаки доступности и пиктограммы, которые помогают людям с ограниченными возможностями ориентироваться в пространстве банка.

В заключение, проект по обеспечению беспрепятственного доступа к помещениям банка для людей с ограниченными возможностями и маломобильных групп населения представляет собой комплекс мероприятий, направленных на создание комфортной и доступной среды для всех клиентов банка. Проектная документация разработана с учетом технического задания, исходных данных, результатов обследования и строительных норм.

Закажите проект прямо сейчас!

Выделите опечатку и нажмите Ctrl + Enter, чтобы отправить сообщение об ошибке.