Работаем по всей России

Адаптация для МГН помещений ТРЦ "Ладья" в городе Москва

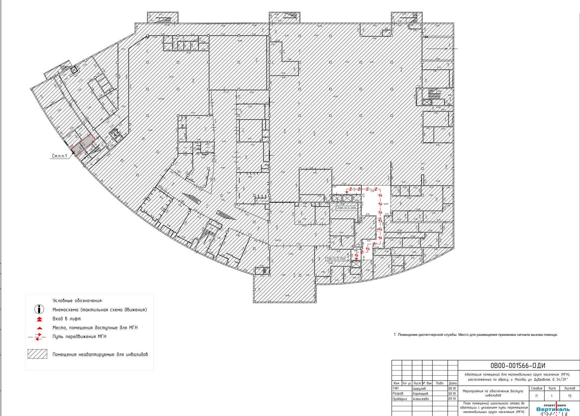
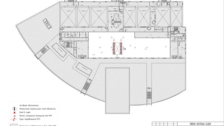
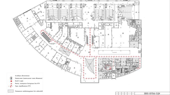
В данном проекте разработаны мероприятия, которые создают равные условия для лиц с ограниченными возможностями передвижения, включая инвалидов и другие группы населения, в соответствии с принципами "разумного приспособления". Проект направлен на адаптацию эксплуатируемого помещения торгового центра, расположенного по адресу: г. Москва, ул. Дубравная, д. 34/29.

Разработка проектной документации основывается на:

  • техническом задании на проектирование, предоставленном Заказчиком;
  • действующих строительных нормах и правилах.

В рамках проекта предусмотрены комплексные мероприятия по улучшению качества архитектурной среды, с учетом:

  1. доступности целевых мест посещения по кратчайшему пути и свободного перемещения внутри здания;
  2. безопасности маршрутов движения и обслуживающих помещений;
  3. предоставления полноценной и качественной информации для удобства ориентации и использования оборудования (включая самообслуживание), получения услуг и т.д.;
  4. создания удобной и комфортной среды для всех групп населения.

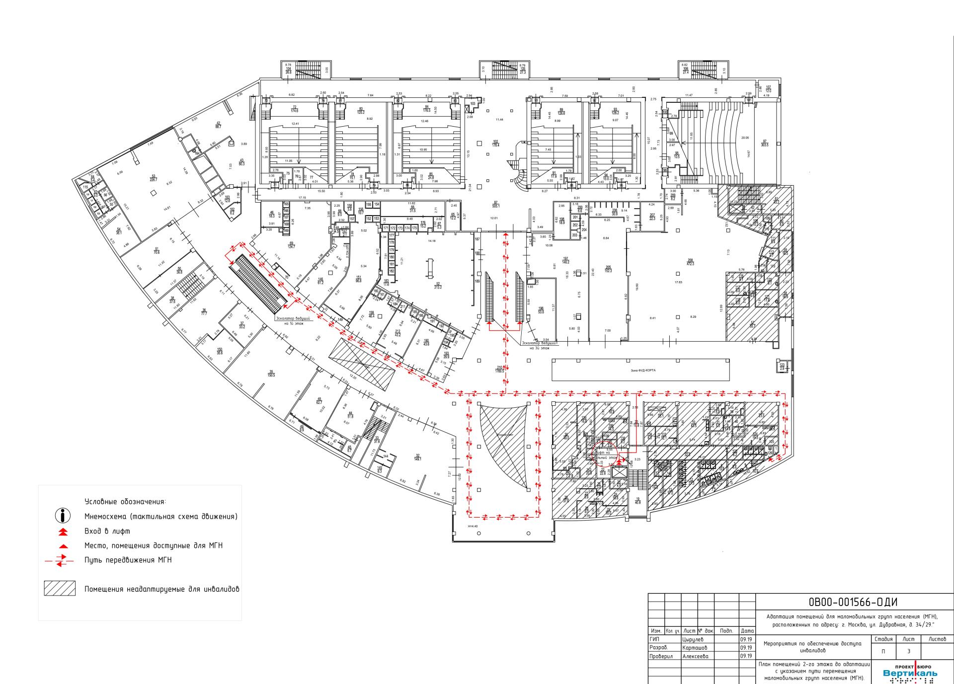
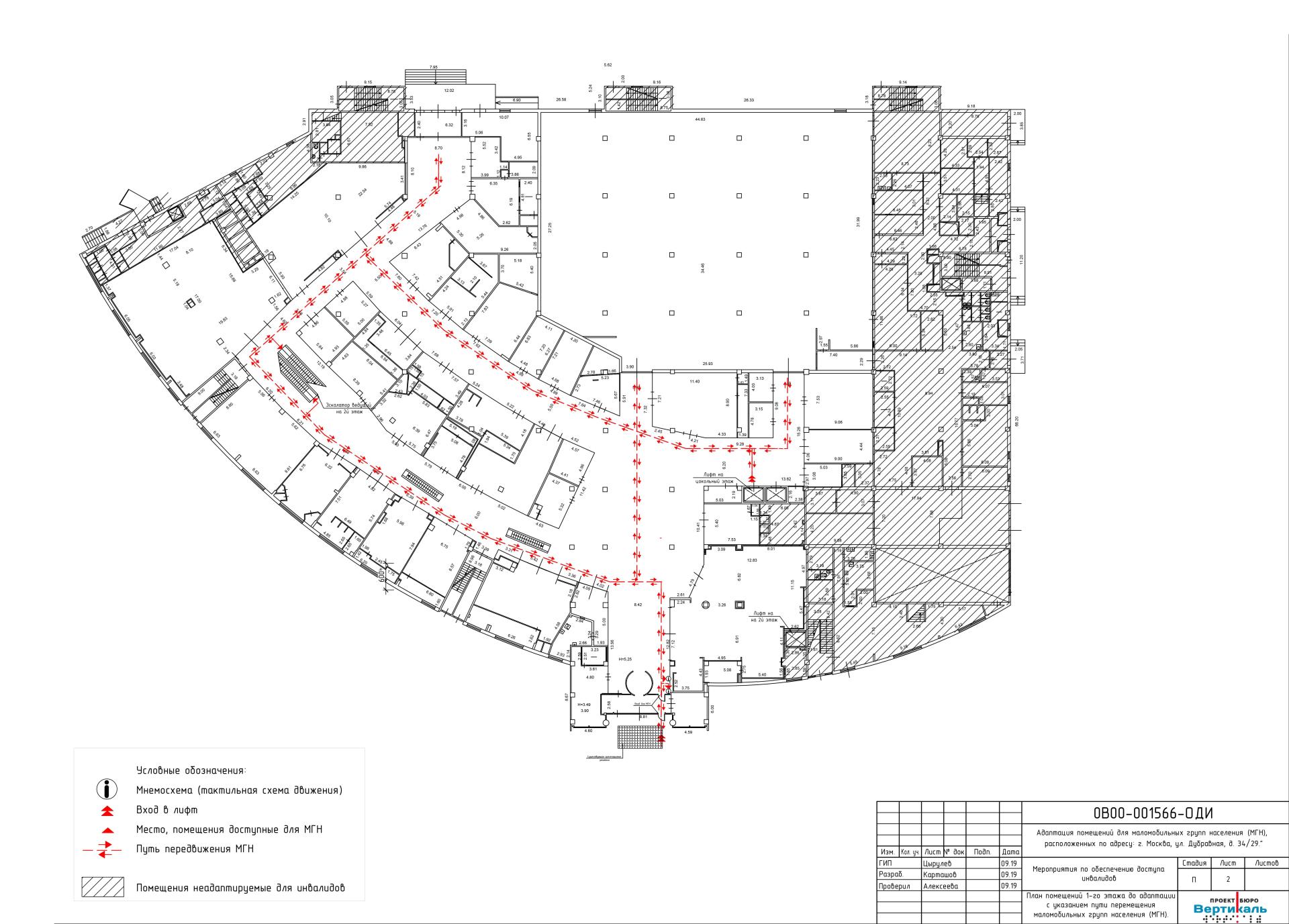
Проектные решения не ограничивают условия жизнедеятельности и возможности других групп населения. После реализации предусмотренных проектом мероприятий, маломобильные группы населения смогут свободно передвигаться от центрального входа здания к внутренним помещениям и внутри дворовой территории без преград.

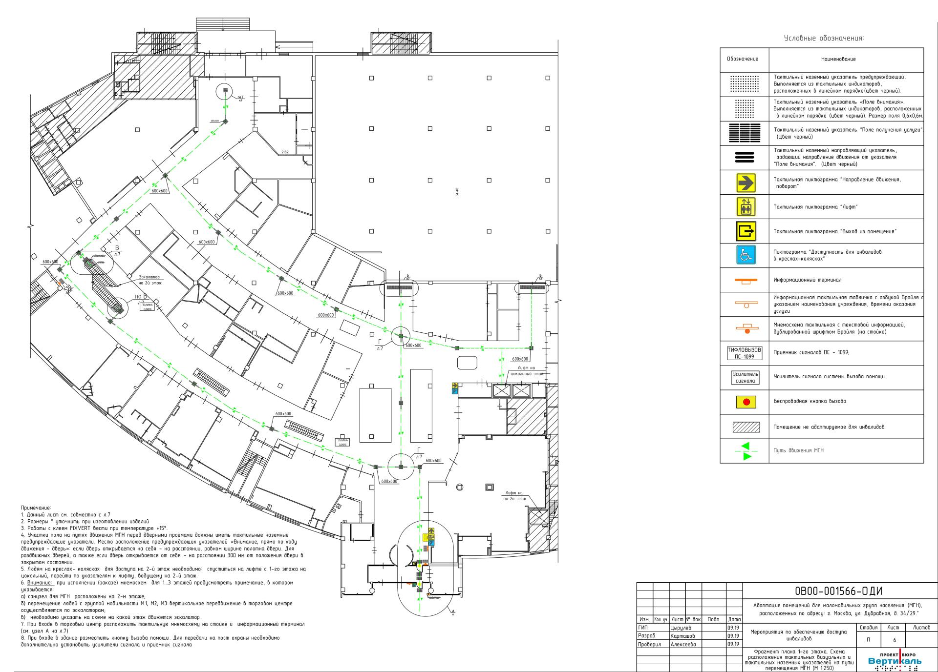
Входная группа В данном проекте осуществляется адаптация входа в здание для МГН на первом этаже. Элементы входной группы включают:

  • площадку перед входом;
  • тамбур.

В рамках проекта предусмотрены следующие мероприятия:

  • установка тактильных предупреждающих указателей на участках пола перед дверными проемами для предотвращения столкновений. Расположение указателей "Внимание, прямо по ходу движения - дверь" должно соответствовать следующим правилам: если дверь открывается на себя, указатели устанавливаются на расстоянии, равном ширине дверного полотна; для раздвижных дверей или дверей, открывающихся от себя, указатели устанавливаются на расстоянии 300 мм от положения двери в закрытом состоянии. Указатели должны быть установлены в соответствии с пунктом 2.2;
  • размещение тактильно-визуальной таблички перед входом в здание с указанием наименования учреждения и режимом работы;
  • установка тактильной пиктограммы "Доступность инвалидов всех категорий" перед входом в здание;
  • установка антивандальной кнопки вызова на стене, которая передает сигнал через приемное устройство вызова ПС-1099 в место постоянного пребывания персонала (охрана). (см. л. 6 гр. ч. 0В00 – 001566-ОДИ);
  • выполнение всех работ в соответствии с гр. ч. 0В00-001566-ОДИ.

Расположение указателей должно соответствовать требованиям: 

  • Перед входом в здание следует установить тактильно-визуальную табличку с указанием наименования учреждения и режимом работы.
  • Перед входом в здание необходимо установить тактильную пиктограмму "Доступность инвалидов всех категорий".
  • На стене следует установить антивандальную кнопку вызова, которая будет передавать сигнал через приёмное устройство вызова ПС-1099 в место постоянного пребывания персонала (например, пост охраны). (См. л. 6 гр. ч. 0В00 – 001566-ОДИ).
  • Все работы должны выполняться в соответствии с гр. ч. 0В00-001566-ОДИ.

Закажите проект прямо сейчас!

Выделите опечатку и нажмите Ctrl + Enter, чтобы отправить сообщение об ошибке.