Работаем по всей России

Адаптация ТРЦ "Щука" для маломобильных групп населения г. Москва

В данном проекте были разработаны мероприятия, которые гарантируют людям с ограниченными возможностями передвижения (МГН) равные условия жизнедеятельности в сравнении с другими группами населения.

Основной принцип, на котором основаны эти мероприятия, - это принцип "разумного приспособления". Проект фокусируется на адаптации помещения банка, расположенного по адресу: г. Москва, Щукинская, д. 42.

Разработка проектной документации была основана на техническом задании, предоставленном Заказчиком, а также на соблюдении действующих строительных норм и правил. Цель проекта заключается в повышении качества архитектурной среды с учетом следующих аспектов:

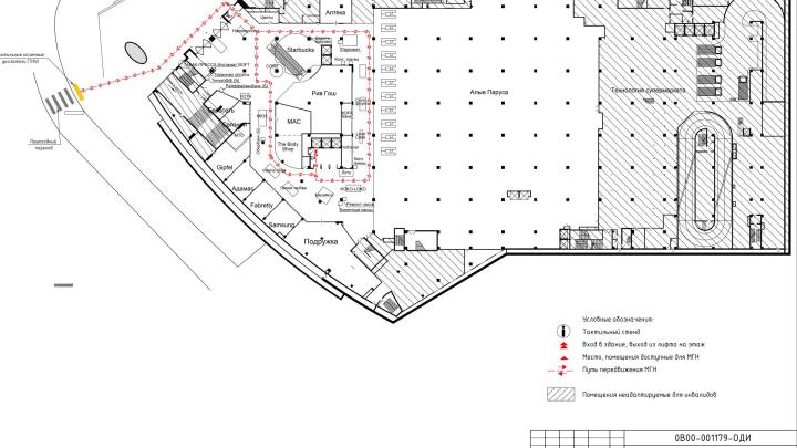
  1. Обеспечение доступности мест, которые являются целевыми для посещения, по кратчайшему пути, а также обеспечение безпрепятственного перемещения внутри здания.
  2. Обеспечение безопасности путей движения и зон обслуживания.
  3. Гарантирование своевременного предоставления МГН полноценной и качественной информации, которая позволит им ориентироваться в пространстве, использовать оборудование (включая самообслуживающиеся устройства), получать необходимые услуги и т.д.
  4. Обеспечение комфортной и удобной среды для жизнедеятельности всех групп населения.

Важно отметить, что эти проектные решения не ограничивают условия жизнедеятельности и не ущемляют возможности других групп населения, находящихся в здании и на прилегающей территории. После реализации мероприятий, предусмотренных проектом, маломобильные группы населения смогут свободно перемещаться от центрального входа здания до внутренних помещений и внутри дворовой территории без преград.

Мероприятия по адаптации здания для МГН

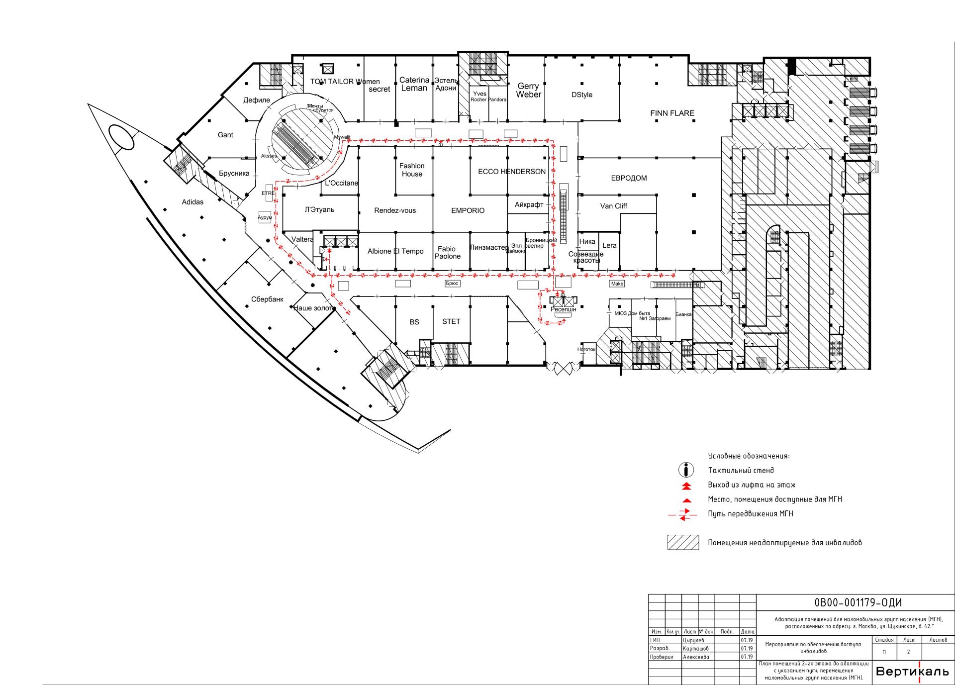
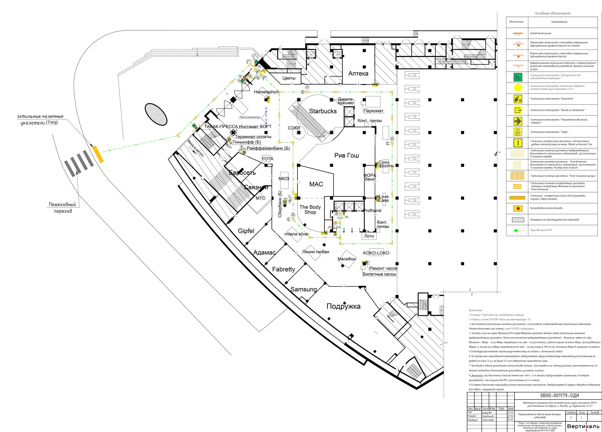
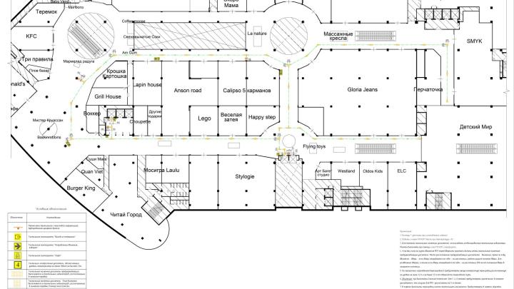
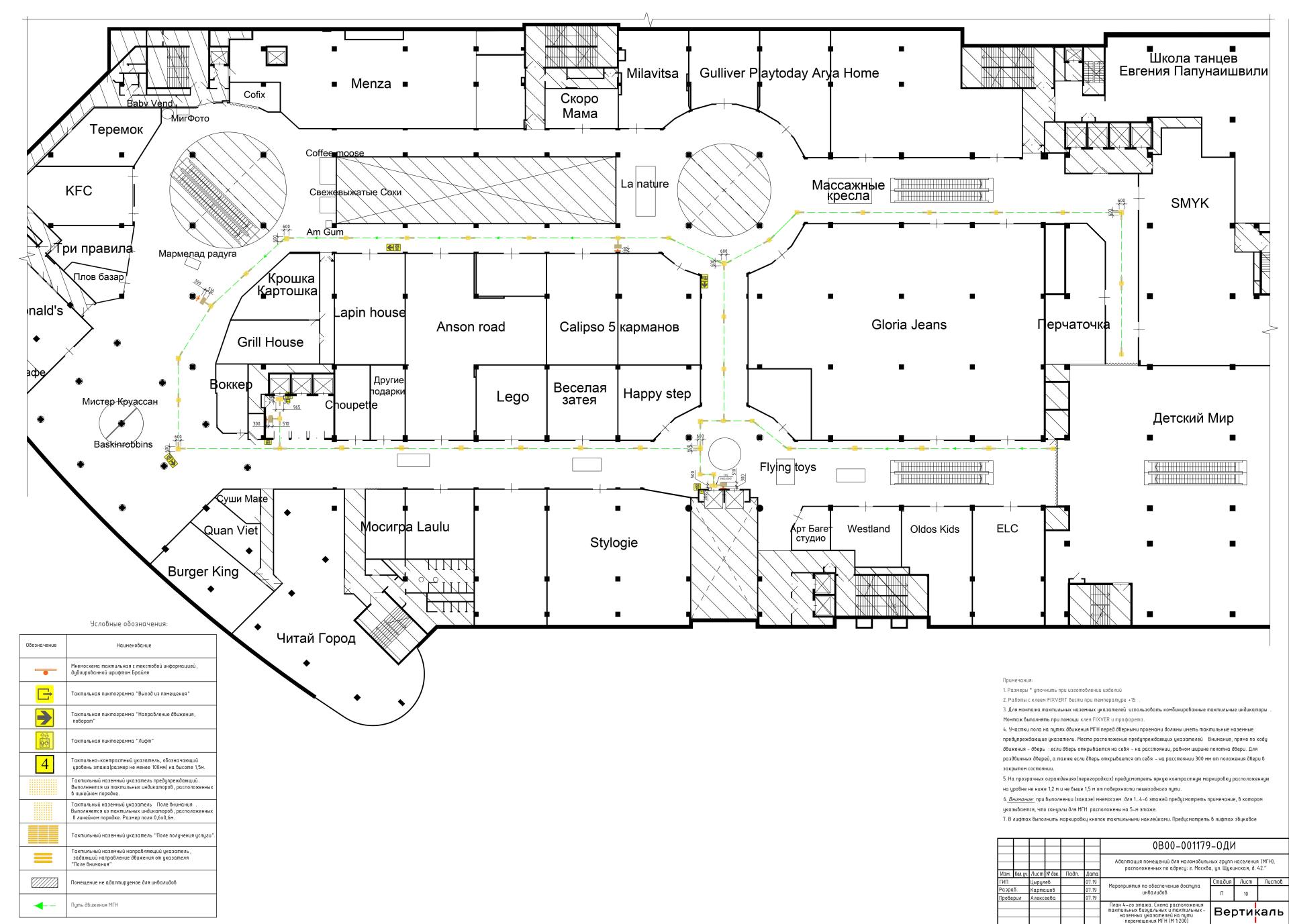
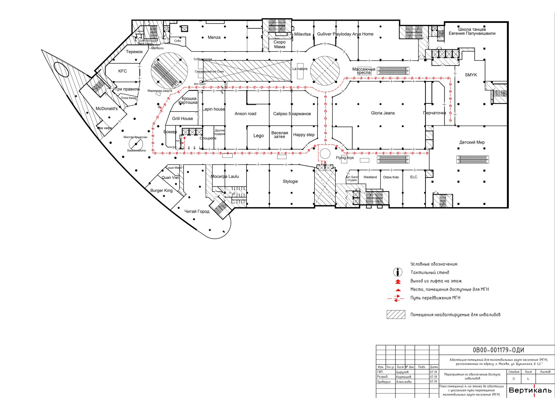
В данном проекте предусмотрены мероприятия по адаптации здания для маломобильных групп населения (МГН). На первом этаже здания будет осуществляться адаптация входной группы, которая включает площадку перед входом и тамбур. Проектом предусмотрены следующие мероприятия:

    • На путях движения МГН перед дверными проемами будут установлены тактильные предупреждающие указатели. Местоположение предупреждающих указателей "Внимание, прямо по ходу движения - дверь" будет определяться в зависимости от типа двери. Указатели будут устанавливаться согласно проекту.
    • Перед входом в здание будет установлена тактильно-визуальная табличка с наименованием учреждения и режимом работы.
    • Также перед входом в здание будет установлена тактильная пиктограмма "Доступность инвалидов всех категорий".
    • В тамбуре будет установлена тактильная мнемосхема согласно графической части проекта. Мнемосхема будет закреплена на стойке для мнемосхем.
    • На стене будет установлена антивандальная кнопка вызова сигнала, которая будет передаваться в приемное устройство вызова на постоянное место пребывания персонала.
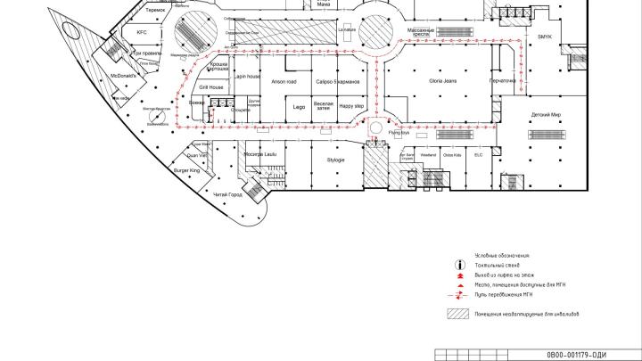
    • Для обеспечения доступа маломобильных групп населения и людей с нарушением зрения на этажи будет адаптирован лифт.
    • Эскалаторы не будут адаптироваться для использования маломобильными группами населения.
    • Туалеты для МГН будут адаптированы на 5-м этаже здания.
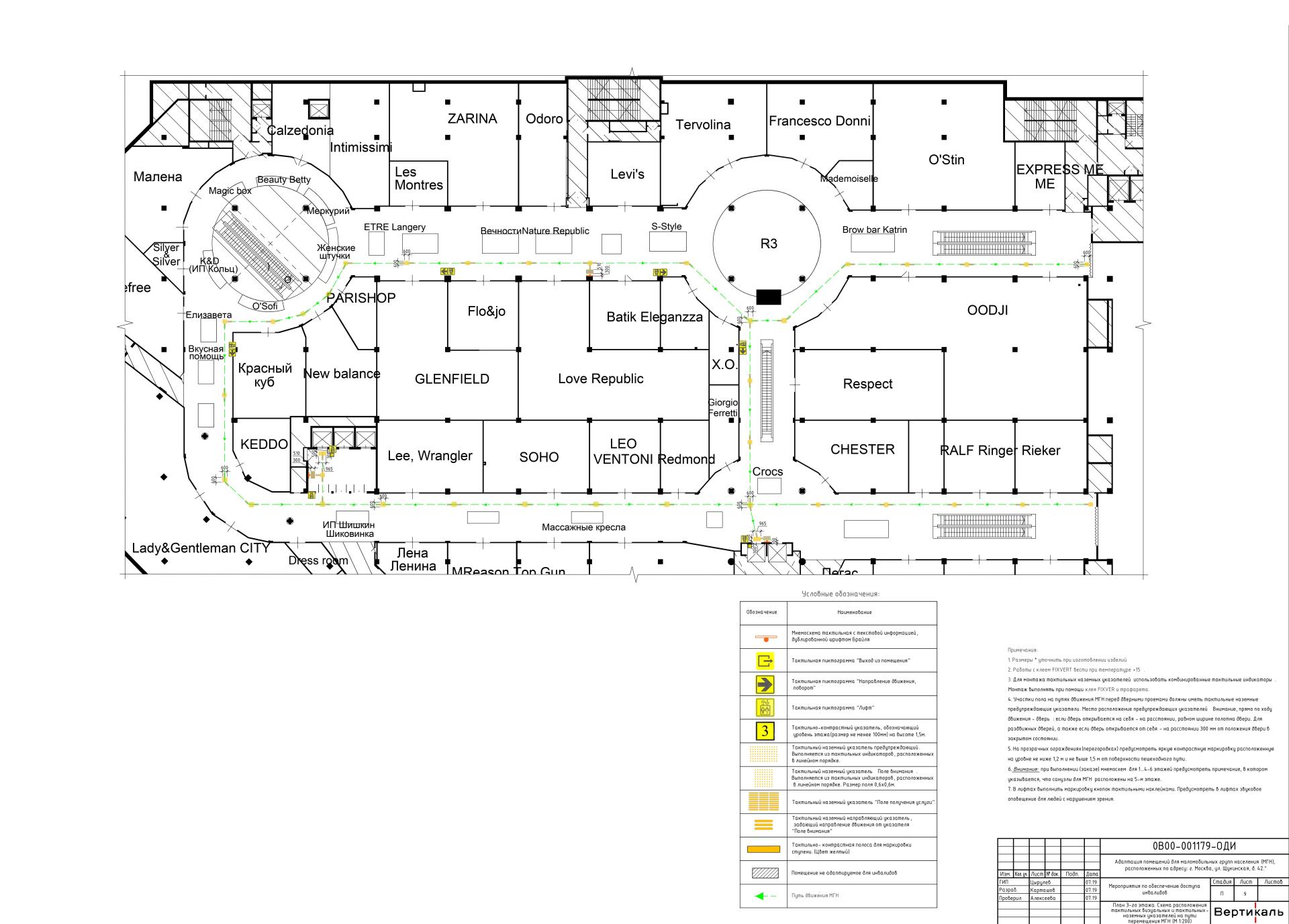
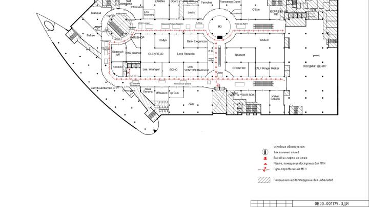
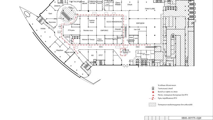
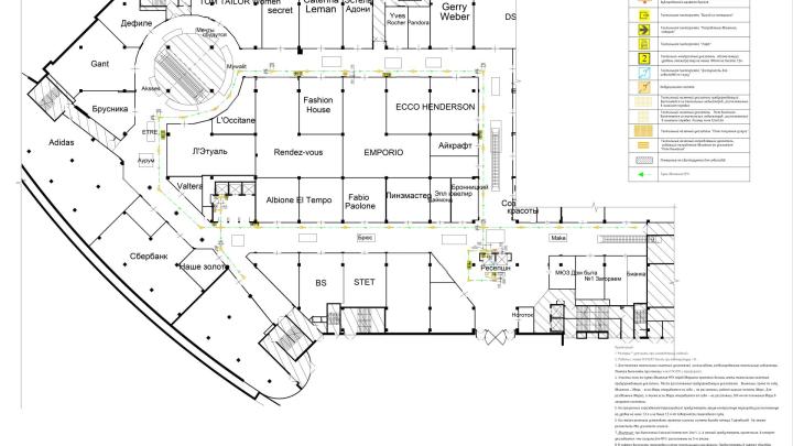
    • Пути перемещения МГН внутри здания будут оборудованы тактильно-наземными и тактильно-настенными указателями.

Тактильные наземные указатели на путях перемещения МГН:

    • Будет осуществлен монтаж тактильных напольных указателей в соответствии с графической частью проекта.
    • Перед входной дверью будут установлены предупреждающие тактильные индикаторы с шириной, соответствующей ширине дверного проема.
    • Участки пола на путях движения МГН перед дверными проемами будут иметь тактильные наземные предупреждающие указатели в зависимости от типа двери и ее положения.
    • Внутри здания на полу будут использоваться комбинированные тактильные напольные индикаторы для предупреждающих указателей.
    • Также на полу внутри здания будут использоваться комбинированные тактильные напольные индикаторы желтого цвета в виде полосы для обозначения указателя "поле получения услуги".
    • Для указателя направления на полу внутри здания также будут использоваться комбинированные тактильные напольные индикаторы желтого цвета.

Все работы будут проводиться в соответствии с графической частью проекта.

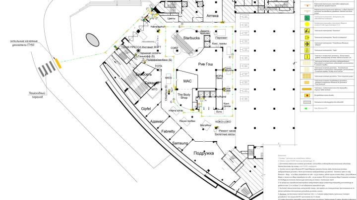
В соответствии с 59.13330.2020, на путях перемещения МГН (мест массового посещения) необходимо предусмотреть тактильно-визуальные указатели для обеспечения однозначной информации и ориентации посетителей. В проекте предусмотрены следующие тактильные настенные указатели:

  1. Тактильная полноцветная табличка (400х500 мм) с дублированием информации по системе Брайля, содержащая наименование учреждения и режим работы.
  2. Тактильная пиктограмма «Доступность для инвалидов всех категорий» (150х150 мм).
  3. Тактильная пиктограмма «Доступность для инвалидов по слуху» (150х150 мм).
  4. Тактильная пиктограмма «Банкомат» (150х150 мм).
  5. Тактильная пиктограмма «Выход из помещения».
  6. Тактильная пиктограмма «Лифт».
  7. Тактильная пиктограмма «Направление движения, поворот».
  8. Тактильная пиктограмма «Туалет для инвалидов (Ж)».
  9. Тактильная пиктограмма «Туалет для инвалидов (М)».
  10. Тактильная пиктограмма «Туалет для инвалидов».
  11. Тактильная пиктограмма «Касса».
  12. Тактильно-контрастный указатель, обозначающий уровень этажа, на высоте 1,5 метра.
  13. Тактильная мнемосхема с планом здания и назначением помещений, содержащая тактильное дублирование информации по системе Брайля (470 х 610 мм).

Также предусмотрено размещение тактильной пиктограммы «Банкомат» рядом с банкоматами, тактильной пиктограммы «Доступность для инвалидов по слуху» у стойки ресепшна, а также монтаж тактильной мнемосхемы с дублированием информации по системе Брайля для указания пути в здании. Установка указателей осуществляется на высоте 1,2-1,6 метра от уровня пешеходной поверхности.

Для усиления восприятия информации людьми с нарушениями слуха, предусмотрено использование специальных систем индукционного типа. Установка индукционной портативной петли VERT-1a на месте обслуживания МГН позволит слабослышащим получать информацию напрямую на свои слуховые аппараты. Площадь покрытия петли составляет 1,2 м² в рабочем диапазоне 1 кГц.

Для лифтов, приспособленных для МГН, проектом предусмотрена установка речевого информатора серии "Говорящий лифт" (Talking Elevator). Эта система предназначена для информационного обеспечения незрячих и слабовидящих путем передачи голосовых сообщений о номере этажа и его функциональном назначении.

Закажите проект прямо сейчас!

Выделите опечатку и нажмите Ctrl + Enter, чтобы отправить сообщение об ошибке.