Работаем по всей России

Проектирование помещений в Аэропорту города Череповец

Представленный отчет описывает проект, разработанный для обеспечения безопасного доступа маломобильных групп населения на 1-й и 2-й этажи терминала в АО "Аэропорт Череповец". Проект основывается на принципе "разумного размещения" и направлен на улучшение архитектурной среды при соблюдении всех строительных норм и правил. Разработка проекта включала использование технических спецификаций, предоставленных заказчиком, а также результаты обследования. Важно отметить, что предложенные дизайнерские решения не только учитывают потребности маломобильных групп населения, но и не ограничивают условия проживания и возможности других пользователей, находящихся в терминале.

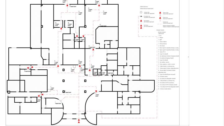
В рамках проекта был разработан комплекс мер по обеспечению безопасного, информативного и комфортного доступа маломобильных групп населения к терминалу. Для этого предусмотрены специальные парковочные места для маломобильных групп, а доступ для посетителей с мобильностью на уровне М4 осуществляется по пандусу. Пандус разработан в соответствии с применимыми строительными нормами и правилами, включает поручни, бамперы и устройства вызова помощи.

Для путешествующих в инвалидных колясках доступ к 2-му этажу обеспечивается с помощью лифта. Кроме того, установлены тактильные наземные знаки, предоставляющие безопасность и информацию для людей с нарушениями зрения, соответствующие строительным нормам и правилам.

Тактильные наземные знаки размещены перед верхними и нижними ступенями, предупреждая о лестнице, указывая на направление движения дверей, обозначая зону обслуживания и указывая путь от указателя "Поле внимания" к значимым объектам. Проект также включает установку внешнего вызывного устройства для связи с персоналом, чтобы помочь людям, которым нужна помощь при использовании пандуса.

В заключение, данный проект представляет комплекс мер, гарантирующих безопасный, информативный и комфортный доступ маломобильных групп населения к терминалу в АО "Аэропорт Череповец". Предложенные дизайнерские решения соответствуют действующим строительным нормам и правилам, не ограничивают условия проживания и не ущемляют возможности других групп пользователей, находящихся в терминале. Проект также способствует улучшению качества архитектурной среды и обеспечивает доступность объекта для всех.

Закажите проект прямо сейчас!

Выделите опечатку и нажмите Ctrl + Enter, чтобы отправить сообщение об ошибке.