Работаем по всей России

МГУУ Правительства Москвы им. Ю.М. Лужкова

Сведения о размещении объекта:

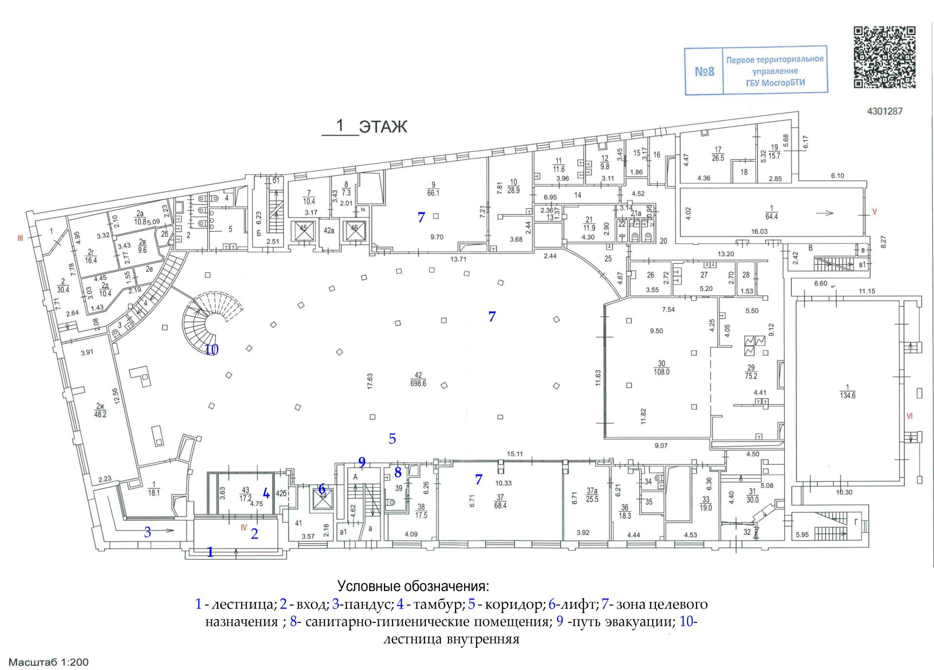
  • Здание: Отдельно стоящее здание с 4 этажами, мансардой и одним подземным этажом
  • Площадь: 10044,8 кв.м.
  • Земельный участок: Отсутствует прилегающий земельный участок
Адрес:

107045, г. Москва, ул. Сретенка, д.28

Год адаптации: 2001 год, последний капитальный ремонт не проводился
Что сделано: Входная группа и учебные помещения

Название (вид) объекта:

Московский городской университет управления Правительства Москвы имени Ю.М. Лужкова

Дата предстоящих плановых ремонтных работ: Текущий ремонт не указан, капитальный ремонт не планируется

Сведения об организации, расположенной на объекте:

Название организации (учреждения):

  • Полное юридическое наименование: «Государственное автономное образовательное учреждение высшего образования «Московский городской университет управления Правительства Москвы имени Ю.М. Лужкова»
  • Сокращенное название: «МГУУ Правительства Москвы, Университет Правительства Москвы»

Путь следования к объекту пассажирским транспортом: Для достижения объекта из метро "Сухаревская" необходимо пройти пешком 250 метров. Также имеется доступный адаптированный пассажирский транспорт до объекта.

Путь к объекту от ближайшей остановки пассажирского транспорта: Расстояние от остановки транспорта до объекта составляет 190 метров. 

Время движения пешком: 3 минуты. Присутствует выделенный от проезжей части пешеходный путь. 

Для обеспечения удобства и безопасности маломобильных групп населения (МГН) групп М1-М2 предусмотрен отдельный путь движения от входа в подземный переход, соединяющий корпус университета с Объектом, до внутренних помещений последнего.

Перед выходом из подземного перехода в помещения Объекта установлен знак "Вход в помещение" с тактильно-визуальными элементами.

После выхода из подземного перехода рядом с правой стороной двери установлена тактильная мнемосхема с текстовой информацией, дублированной системой Брайля. С противоположной стороны двери установлен знак "Выход из помещения" с тактильно-визуальными элементами.

Для инвалидов категории мобильности М3-М4 предусмотрен отдельный вход.

Рядом с входной дверью на Объект установлены знаки с указаниями направления движения и доступности для инвалидов-колясочников. Те же знаки установлены по правой боковой стене Объекта, указывая направление движения к входу на Объект.

Вход в помещение Объекта для МГН групп М3-М4 осуществляется через двупольную дверь, ширина рабочей створки составляет 0,87 м, что соответствует требованиям "разумного приспособления". На этой двери установлена тактильно-визуальная табличка размером 100х300 мм с дублированием информации по системе Брайля, включающая наименование учреждения и режим работы. Рядом с дверью также расположен знак доступности для инвалидов-колясочников. На стойке с другой стороны двери установлена антивандальная кнопка вызова персонала, которая передает сигнал на приемное устройство ТИФЛОВЫЗОВ.

Перекрестки: Нерегулируемые и регулируемые с использованием таймера. На пути следования к объекту отсутствует информация в виде акустических, тактильных или визуальных сигналов. Возникают перепады высоты на пути, однако они обустроены для обеспечения доступа инвалидов на колясках.

Организация доступности объекта для инвалидов – форма обслуживания: Информация о форме обслуживания для инвалидов отсутствует.

Закажите проект прямо сейчас!

Выделите опечатку и нажмите Ctrl + Enter, чтобы отправить сообщение об ошибке.