Работаем по всей России

Здание для обслуживания пассажиров и прилегающая территория в аэропорт «Остафьево»

Проект разработан для обеспечения доступа маломобильных групп населения в аэропорт "Остафьево" ООО Авиапредприятие "Газпром авиа", расположенный в г. Москва, поселение Рязановское. Цель проекта - обеспечить равные условия жизнедеятельности для МГН, соответствующие другим категориям населения, с применением принципа "разумного приспособления".

Проект включает комплекс мероприятий по улучшению архитектурной среды, соблюдая следующие принципы:

  1. Обеспечение досягаемости мест целевого посещения и свободного перемещения внутри здания пассажирского терминала.

  2. Обеспечение безопасности путей движения, отдыха и парковки.

  3. Обеспечение МГН полноценной и качественной информацией, необходимой для ориентации в пространстве, использования оборудования (включая самообслуживание) и других услуг.

  4. Создание удобной и комфортной среды для всех групп населения.

Исходные данные для разработки документации включают план первого этажа здания пассажирского терминала и технический паспорт здания для обслуживания пассажиров 2008 года.

Проектные решения не ограничивают условия жизнедеятельности и возможности других групп населения. После реализации предложенных мероприятий маломобильные группы населения смогут свободно перемещаться по прилегающей территории и внутренним помещениям здания. Однако следует учесть, что людям с нарушением опорно-двигательного аппарата необходимо обеспечить альтернативный проход, не требующий прохождения через металлоискатель в соответствии с соответствующими нормами.

На территории аэропорта следует оборудовать 13 специализированных машино-мест для транспортных средств инвалидов. Работы должны быть выполнены в соответствии с указанными листами и спецификацией. Места парковки для МГН должны быть оборудованы двумя антивандальными кнопками вызова персонала, установленными на стойках. Приемник сигналов системы вызова помощи ТИФЛОВЫЗОВ модели 999 должен быть размещен в диспетчерской СОП на втором этаже здания для обслуживания пассажиров.

Система ПС-999 предназначена для оповещения персонала о необходимости помощи в зоне активации кнопок вызова. Ее функционал включает автоматическую индикацию и воспроизведение заранее запрограммированного голосового сообщения на русском языке, совместно с номером активированной кнопки вызова. Система обеспечивает работоспособность на расстоянии до 100 метров и предусматривает настройку времени отображения номера кнопки на дисплее. Также предусмотрено воспроизведение автонапоминания активированного сигнала вызова помощи.

Для усиления сигнала от кнопок вызова на парковке к приемному устройству ТИФЛОВЫЗОВ установлены два ретранслятора УМ Z-0 с увеличенной мощностью передачи сигнала. Один ретранслятор установлен на стойке с антивандальной кнопкой вызова на парковке, а второй - внутри здания для обслуживания пассажиров.

Пешеходные пути на территории обустроены съездами с двух сторон проезжей части при пересечении с транспортными путями, имеющими перепад высоты более 0,015 м. Продольный уклон путей движения для инвалидов на креслах-колясках не превышает 5%, а поперечный - 2%. Устройство съездов предусматривает продольный уклон не более 1:20 (5%), около здания не более 1:12 (8%), и не более 1:10 на стесненных участках длиной до 1,0 м.

Покрытие тротуаров и съездов должно быть из твердого материала, ровным и без вибрации при движении по нему. Поверхность должна обеспечивать продольный коэффициент сцепления в заданных пределах, а при отрицательных температурах - не менее определенного значения.

Адаптация здания для обслуживания пассажиров аэропорта

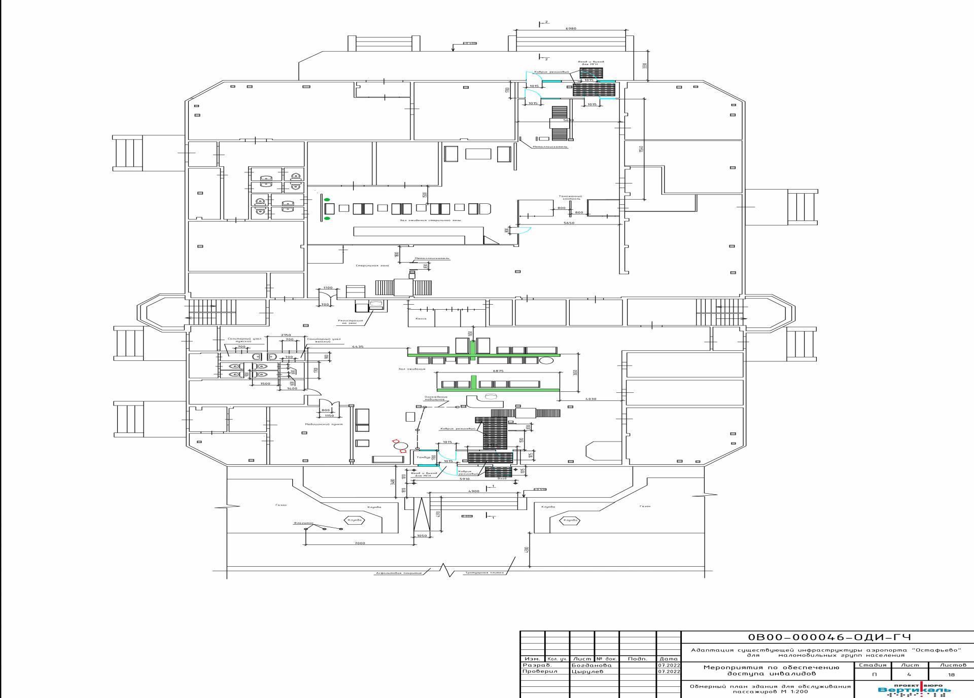
В рамках проекта будет осуществлена адаптация первого этажа здания аэропорта для обслуживания пассажиров (см. лист 7 0D00-000046-ОДИ-ГЧ). Позиции устанавливаемого оборудования указаны в спецификации на листах 14, 15, 16 и 17 0В00-000046-ОДИ-ГЧ.

Пути движения маломобильных групп населения (МГН) 3.1.1 Внутренние воздушные линии (ВВЛ) Информация о путях движения МГН представлена на листе 5 0В00-000046-ОДИ-ГЧ. При вылете из здания МГН М1-М3 проходят через рамку металлоискателя, а М4 проходит рядом с ним, согласно пунктам 6.1.9 и 8.4.14 СП 59.13330.2020. МГН М1-М4 направляются к месту отдыха или ожидания для инвалидов в зале ожидания, к кассе (при необходимости) и стойке регистрации, затем проходят в стерильную зону. Там МГН М1-М3 проходят через рамку металлоискателя, а М4 проходит рядом с ним. После этого МГН М1-М4 направляются в зал ожидания стерильной зоны и затем на выход для вылета.

Пути движения МГН при прилете МГН М1-М4 заходят в здание и проходят через дверь зала ожидания стерильной зоны, затем проходят мимо металлоискателя. После этого они проходят через зал ожидания и направляются к выходу из здания, минуя металлоискатель.

Международные воздушные линии (МВЛ) Информация о путях движения МГН представлена на листе 6 0В00-000046-ОДИ-ГЧ. При вылете из здания МГН М1-М3 проходят через рамку металлоискателя, а МГН М4 проходит рядом с ним, согласно пунктам 6.1.9 и 8.4.14 СП 59.13330.2020. МГН М1-М4 направляются к месту отдыха или ожидания для инвалидов в зале ожидания, к кассе (при необходимости) и стойке регистрации, затем проходят в стерильную зону. Там МГН М1-М3 проходят через рамку металлоискателя, а МГН М4 проходит рядом с ним. Затем МГН М1-М4 проходят через таможенный контроль, направляются в зал ожидания стерильной зоны и затем к месту отдыха или ожидания для инвалидов, после чего следуют на выход для вылета.

Входные группы на вылет и по прилету

Доступность для инвалидов-колясочников Для обеспечения доступности здания для инвалидов-колясочников будут установлены пандусы на входных группах. Будут использованы пандусы-конструкторы (позиции 34 и 35) с противоскользящим покрытием в соответствии с требованиями СП 59.13330.2020 (пункты 6.2.9-6.2.12). Пандус-конструктор является оптимальным решением для оборудования входных групп с различной проходимостью. Он имеет сборно-разборную конструкцию, состоящую из отдельных секций, что позволяет установку и демонтаж пандуса без специального инструмента и сварки. Материалы, используемые для изготовления пандуса, обладают высокой прочностью, антикоррозионными свойствами и имеют длительный срок эксплуатации.

Пандус имеет ограждения с поручнями высотой 0,9 и 0,7 метра, а расстояние между поручнями пандуса составляет 0,9-1,0 метра. Монтаж производится в соответствии с листами 11 и 12 0В00-000046-ОДИ-ГЧ. В зонах входных дверей помещения будут установлены знаки доступности для инвалидов-колясочников (позиция 1), монтаж которых указан на листе 7 0В00-000045-ОДИ-ГЧ. Ширина проемов входных дверей в просвете составляет 1,015 метра, что соответствует требованиям СП 59.13330.2020.

Эта ширина обеспечивает свободное передвижение инвалидов-колясочников на всех типах колясок. Для защиты дверных полотен установлены отбойники (позиция 45), выполненные из нержавеющей стали с толщиной 1 миллиметр на самоклеящейся основе и с радиусом скругления всех углов не менее 10 миллиметров.

Отбойники устанавливаются на двери Д1-Д6 с обеих сторон (см. лист 7 0В00-000046-ОДИ-ГЧ), а пороги на дверных проемах отсутствуют. Для оказания помощи маломобильным группам населения будут установлены кнопки вызова на стойке (позиции 26 и 27) с правой стороны от заезда на пандус. Кнопки вызова устанавливаются на высоте 0,85-1,1 метра от уровня пешеходной поверхности, и беспроводной сигнал передается через приемник сигналов системы вызова помощи ТИФЛОВЫЗОВ модель 999 (позиция 28) к месту пребывания персонала (стойке инспектора по досмотру). Для усиления сигнала от кнопки вызова из зоны прилета на приемное устройство установлен ретранслятор УМ Z-0 (позиция 44) с увеличенной мощностью передачи сигнала.

Доступность для людей, использующих дополнительную точку опоры. Согласно требованиям пункта 6.2.8 СП 59.13330.2020 на входных лестницах установлены поручни (позиции 36, 38, 39 и 41) с необходимыми характеристиками, включая дополнительный центральный разделительный поручень (позиции 37 и 40). Это обусловлено шириной маршей лестниц более 4,0 метра (см. лист 13 0В00-000046-ОДИ-ГЧ).

3.2.3 Доступность для людей с ограниченной функцией зрения

Для обеспечения безопасности людей с ограниченной функцией зрения, включая слабовидящих и тотально слепых, применяется тактильная и контрастная маркировка. В зоне входной группы на поступи краевых ступеней лестниц установлены контрастные ленты с тактильным эффектом в алюминиевом профиле и противоскользящей поверхностью. Для входной группы предусмотрены тактильно-наземные указатели, предупреждающие о препятствиях и разрешающие пересечение с осторожностью. Двери и лестницы также имеют соответствующую маркировку и расположение для облегчения ориентации лиц с ограниченной функцией зрения. Для улучшения идентификации дверного проема предусмотрена контрастная маркировка на прозрачных полотнах входных дверей.

3.2.4 Доступность для людей с ограниченной функцией слуха

В зоне входных дверей в помещение установлены знаки доступности для инвалидов с ограниченной функцией слуха.

3.2.5 Доступность для людей с когнитивными отклонениями

Информационное обеспечение зон входной группы достаточно для предоставления необходимой информации людям с когнитивными отклонениями.

3.3 Зона обслуживания пассажиров

Зона обслуживания пассажиров включает в себя зал ожидания до стерильной зоны и саму стерильную зону.

3.3.1 Доступность для инвалидов-колясочников

Инвалиды-колясочники не проходят через рамку металлоискателя. В зонах размещены пиктограммы и тактильные визуальные указатели, указывающие пути движения и доступность объекта для инвалидов на креслах-колясках. Двери оборудованы отбойниками, а их ширина достаточна для проезда инвалидной коляски на всех типах колясок.

Адаптация санитарных узлов

В соответствии с требованиями СП 59.13330.2020, все здания с общественными санитарными помещениями для посетителей должны обеспечивать доступные кабины для инвалидов или универсальные кабины. Для санитарно-бытовых помещений, используемых инвалидами, включая кресла-коляски, предусмотрены определенные размеры. Кабина с центрально расположенным унитазом должна иметь размеры 2,2 х 2,25 м, а с правым или левым расположением унитаза - 1,7 х 2,2 м.

Существующие мужские и женские санитарные узлы не соответствуют этим нормам, поэтому необходимо демонтировать перегородки и оборудовать универсальные общественные санитарные узлы, доступные для инвалидов, в том числе для пользователей кресел-колясок. Ширина двери в таких узлах составляет 0,9 м и должна открываться наружу. Монтаж оборудования следует выполнять в соответствии с требованиями, указанными в документе листа 10 0В00-000032-ОДИ-ГЧ.

На пути к санитарным узлам МГН (маршрут гражданской неподвижности) установлены тактильно-визуальные знаки, указывающие направление движения к санузлу. Также рядом с входными дверями в санитарные узлы устанавливаются пиктограммы на высоте от 1,2 до 1,6 м от уровня пола на стене со стороны дверной ручки на расстоянии не более 0,1 м от наличника в соответствии с пунктом 4.3.8.4 ГОСТ Р 52131-2019.

Перечень использованных нормативных и регламентирующих документов:

  1. СП 59.13330.2016 "Доступность зданий и сооружений для маломобильных групп населения". Актуализированная редакция СНиП 35-01-2001.
  2. СП 136.13330.2012 "Здания и сооружения. Общие положения проектирования с учетом доступности для маломобильных групп населения" (с Изменением №1).
  3. СП 138.13330.2012 "Общественные здания и сооружения, доступные маломобильным группам населения. Правила проектирования" (с Изменениями №1).
  4. ГОСТ Р 50602-93 "Кресла-Коляски. Максимальные габаритные размеры".
  5. ГОСТ Р 51261-2017 "Устройства опорные стационарные реабилитационные. Типы и технические требования".
  6. ГОСТ Р 52131-2003 "Средства отображения информации знаковые для инвалидов. Технические требования".
  7. ГОСТ Р 52875-2018 "Указатели тактильные наземные для инвалидов по зрению. Технические требования".
  8. ГОСТ 51256-2018 "Технические средства организации дорожного движения. Разметка дорожная. Классификация. Технические требования".
  9. ГОСТ 52289-2019 "Технические средства организации дорожного движения. Правила применения дорожных знаков, разметки, светофоров, дорожных ограждений и направляющих устройств".

Закажите проект прямо сейчас!

Выделите опечатку и нажмите Ctrl + Enter, чтобы отправить сообщение об ошибке.