Работаем по всей России

Пандус входной группы для объекта ДК «Строитель» в городе Ярославль

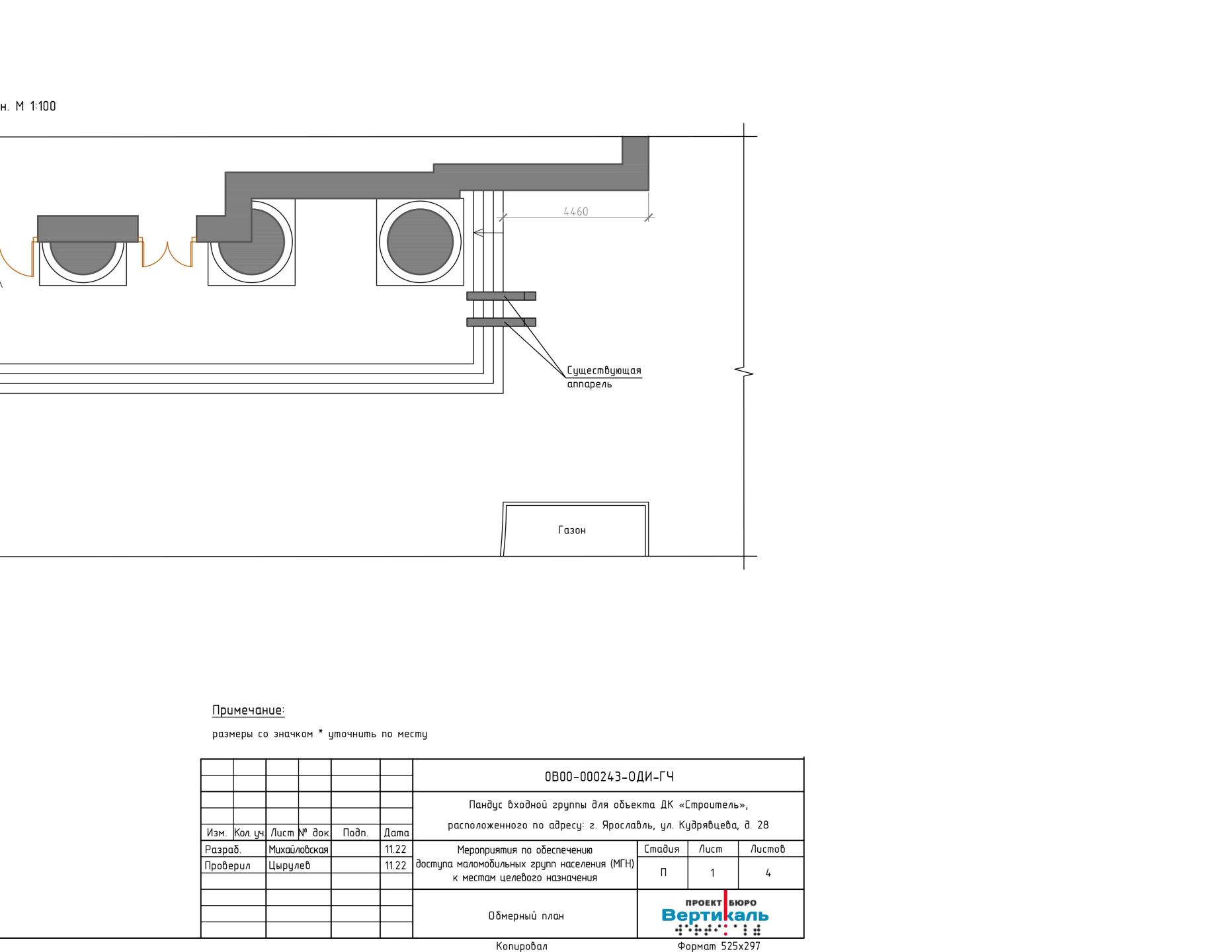
Настоящий проект представляет собой разработку пандуса-конструктора для входной группы объекта ДК «Строитель» по адресу: г. Ярославль, ул. Кудрявцева, д. 28.

Целью проекта является обеспечение беспрепятственного перемещения людей с ограниченными возможностями и маломобильных групп населения (МГН) путем применения принципа «разумного приспособления» к местам целевого назначения. Данный проект основан на техническом задании на проектирование, предоставленных заказчиком и действующих строительных норм и правил.

Проектная документация разработана на основании:

  • технического задания на проектирование;
  • исходных данных, представленных заказчиком;
  • действующих строительных норм и правил.

В проекте предусматривается комплекс мероприятий по повышению качества архитектурной среды при соблюдении:

1) досягаемости мест целевого посещения кратчайшим путем и беспрепятственного перемещения;

2) безопасности путей движения;

Данные проектные решения не ограничивают условия жизнедеятельности и не ущемляют возможности других групп населения.

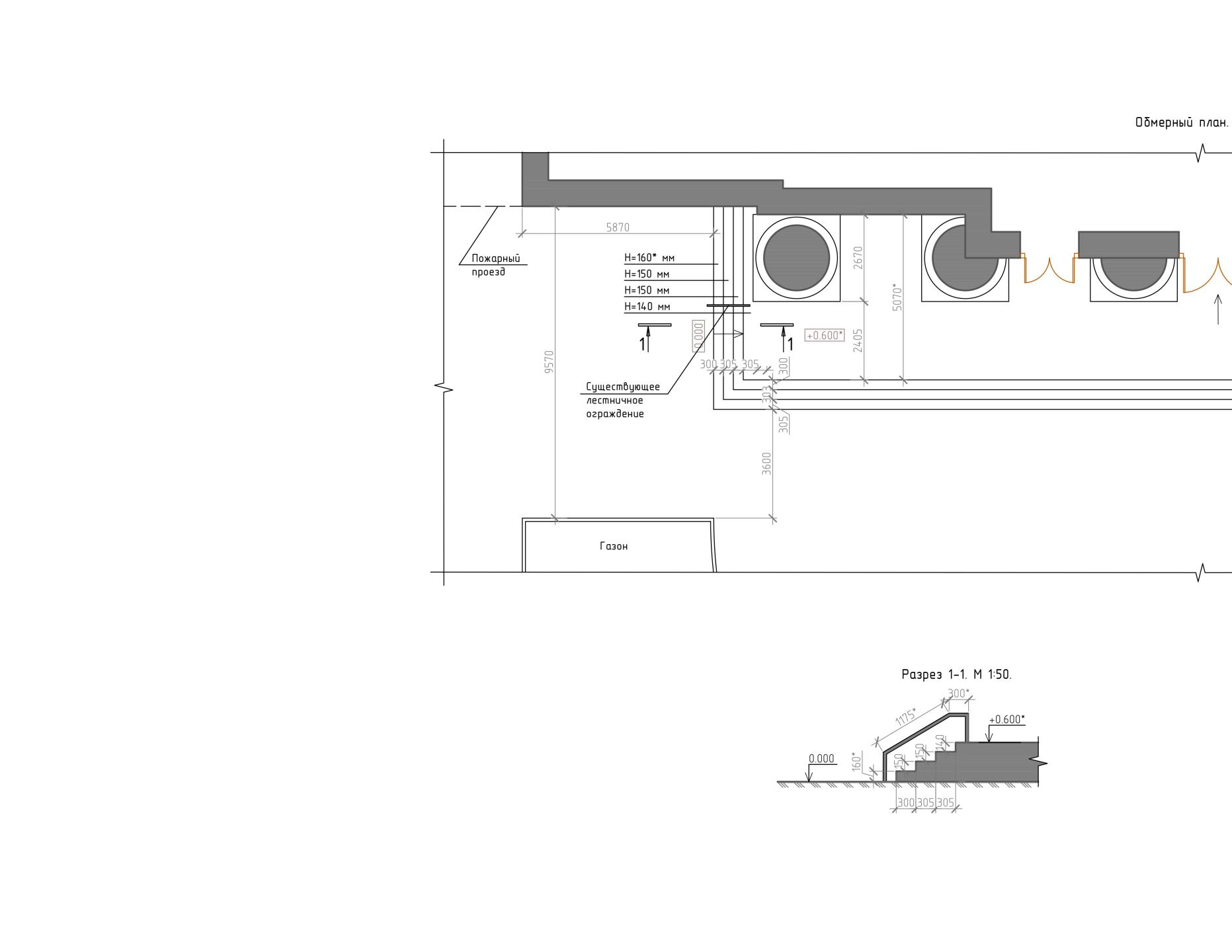
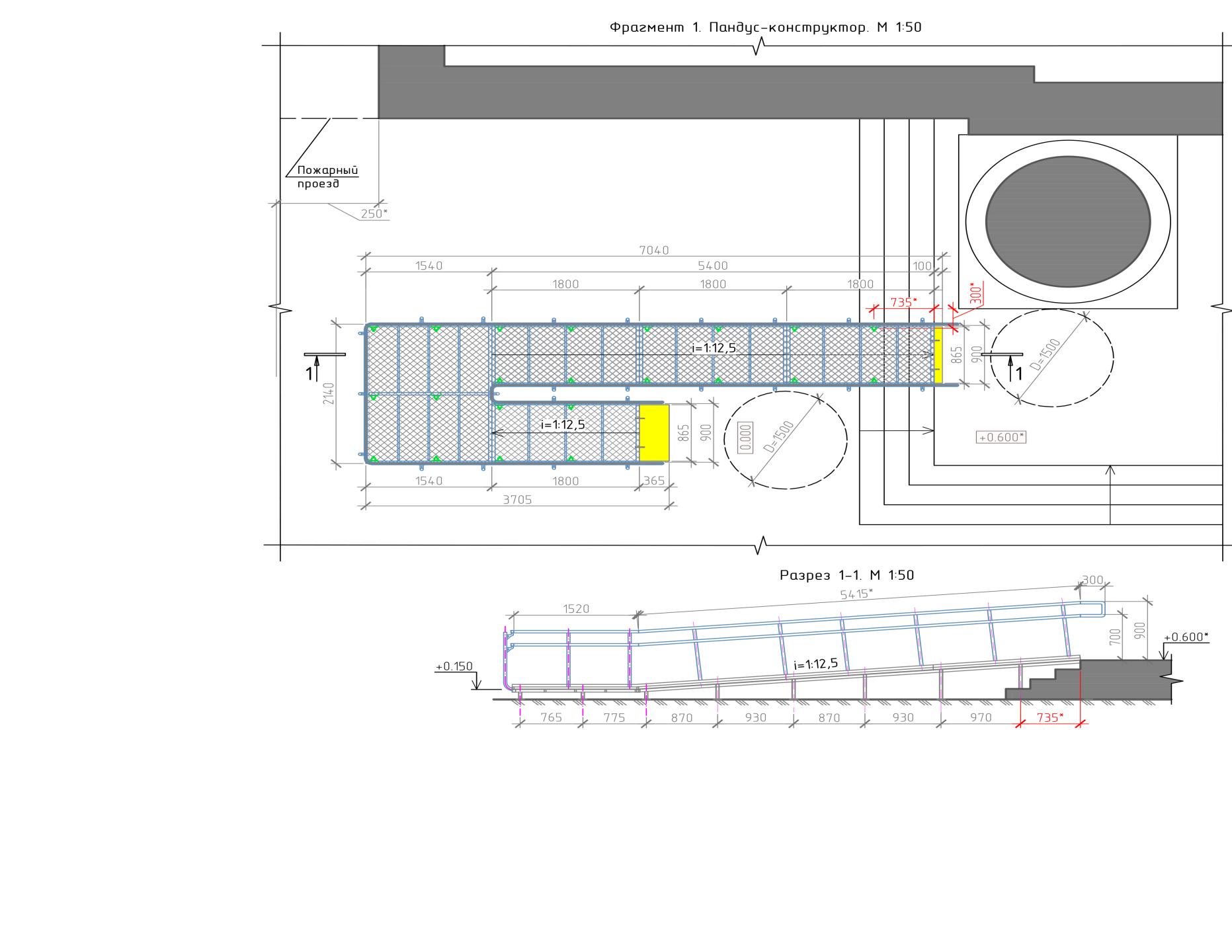
Пандусы должны иметь двухстороннее ограждение с поручнями на высоте 0,9 и 0,7 м;

верхний и нижний поручни пандуса должны находиться в одной вертикальной плоскости с границами прохожей части пандуса (краем бортика).

Ширина марша пандуса (расстояние между поручнями ограждений пандуса) с движением в одном направлении должна быть в пределах от 0,9 до 1,0 м.

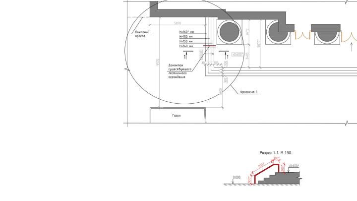
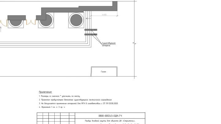
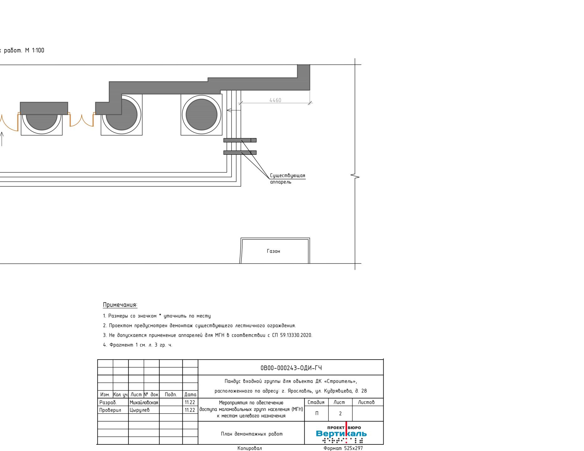
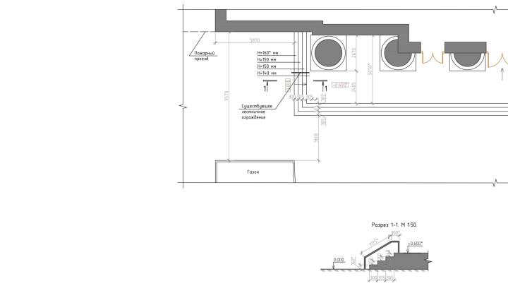
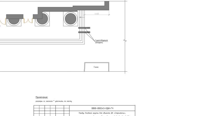
Проектом предусмотрен демонтаж существующего железобетонного пандуса, клумбы, а также устройство бетонного основания на песчаной подготовке, монтаж пандус-конструктора.

Работы по монтажу пандус-конструктора выполнить в соответствии с листами 0В00-000243-ОДИ-ГЧ.

Закажите проект прямо сейчас!

Выделите опечатку и нажмите Ctrl + Enter, чтобы отправить сообщение об ошибке.