Работаем по всей России

Адаптация помещений МБУ ДО «ДМШ» для маломобильных групп населения (МГН) г. Кувшиново

Настоящий проект разработан с целью обеспечения беспрепятственного доступа для людей с ограниченными возможностями и маломобильных групп населения (МГН) к помещениям муниципального бюджетного учреждения дополнительного образования "Детская музыкальная школа" (МБУ ДО "ДМШ") по принципу "разумного приспособления".

Проект предусматривает адаптацию эксплуатируемых помещений Объекта, включая входную группу, путь на второй этаж, санузел, "Музыкальный зал", "Класс сольфеджио и музыкальной литературы" и "Класс фортепиано". Разработка проектной документации основана на техническом задании, предоставленных данных заказчика, результатов обследования и действующих строительных норм и правил.

Проект включает комплекс мероприятий, направленных на повышение доступности помещений, безопасности путей движения и обслуживания, а также обеспечение информационной поддержки для МГН. Проектные решения не влияют на условия для других групп населения, находящихся в помещениях Объекта. Реализация проектных мероприятий позволит инвалидам групп мобильности М1-М4 свободно перемещаться от входа в здание к внутренним помещениям Объекта без препятствий.

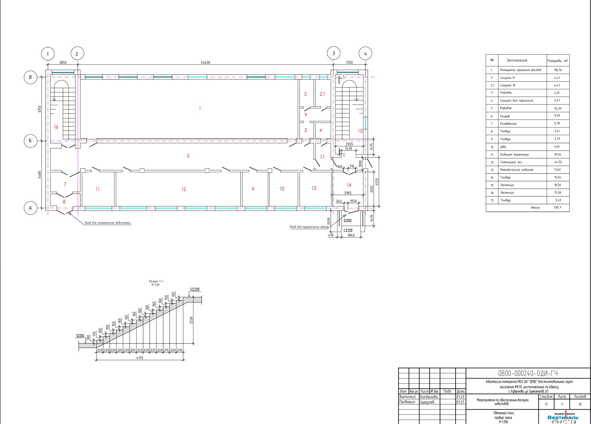
Проект разработан с целью адаптации помещений на Объекте для обеспечения безопасного, информативного и комфортного пути для маломобильных групп населения (МГН) при получении услуг. Входная группа Объекта состоит из крыльца, тамбура (помещение 14) и тамбура (помещение 17). Проект предусматривает различные мероприятия, чтобы обеспечить доступность и удобство для МГН.

Для групп М1-М3 МГН предусмотрен самостоятельный путь от входа к внутренним помещениям Объекта, в то время как для группы М4 доступ обеспечивается с помощью сопровождающего лица. Входная дверь является двупольной, и рабочая створка соответствует требованиям ширины прохода, установленным в соответствии с требованиями СП 59.13330.2020. Однако, согласно этим же требованиям, на крыльце отсутствуют технические средства информирования и ориентирования для МГН. Кроме того, декоративные перила находящиеся на крыльце не соответствуют требованиям, установленным в СП 59.13330.2020 и ГОСТ Р 51261-2022.

В рамках проекта предусмотрены следующие мероприятия для адаптации входной группы Объекта:

  • Установка тактильных визуальных указателей на путях перемещения МГН. Входная дверь будет оборудована тактильной пиктограммой модульной формы «Доступность объекта для инвалидов по зрению и по слуху, а также на креслах-колясках» размером 571х158 мм, которая будет размещена на нерабочей створке входной двери. Также будут установлены тактильные пиктограммы «Выход из помещения» размером 150х150 мм на нерабочей створке входной двери и в помещении 17. Также будет установлена тактильная пиктограмма «Вход в помещение» размером 150х150 мм на нерабочей створке входной двери из тамбура (помещение 14) в тамбур (помещение 17). Перед входом на лестничный марш будет установлена пиктограмма «Лестница» размером 150х150 мм.
  • Размещение тактильной мнемосхемы с планом и назначением помещений с использованием системы Брайля размером 470х610 мм. Тактильная мнемосхема будет размещена справа от входа с улицы в тамбур (помещение 14) на стене на высоте 1,2-1,6 м от уровня пола.
  • Установка тактильных наземных указателей на путях перемещения МГН. Будет установлен локальный предупреждающий указатель «Внимание, прямо по ходу движения – лестница» перед ступенью крыльца. Указатель будет иметь глубину от 500 до 600 мм и ширину, соответствующую ширине участка лестницы, предназначенного для движения инвалидов. Указатель будет содержать рифы типа усеченных конусов, усеченных куполов или цилиндров, расположенных в линейном порядке. Указатель будет установлен перед крыльцом на расстоянии 300 мм от него. Перед крыльцом будет также уложена дорожка из бетонных плит.

Также в проекте предусмотрено установка антивандальной кнопки вызова помощи рядом с крыльцом на отдельностоящей стойке. Сигнал с кнопки вызова будет передаваться на приемное устройство «ТИФЛОВЫЗОВ» в помещение 14 «Тамбур», где находится персонал. Установка кнопки вызова будет выполнена в соответствии с соответствующими регламентирующими документами.

Таким образом, предлагаемые мероприятия по адаптации помещений на Объекте способствуют созданию доступного и безопасного пространства для МГН, обеспечивая им возможность свободного передвижения и получения необходимых услуг.

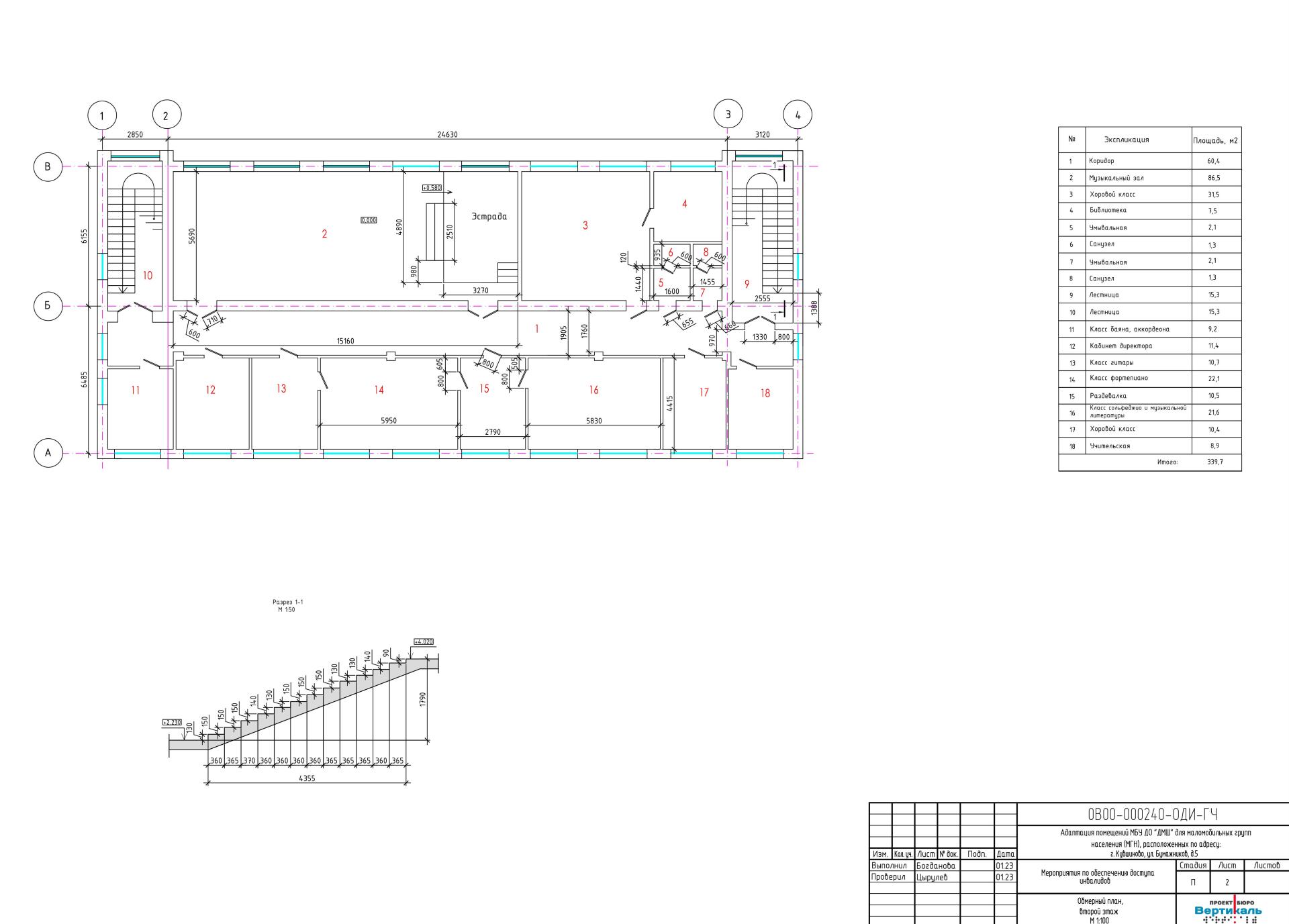
Путь движения на второй этаж:

  • Нет двери между помещением 17 "Тамбур" и помещением 15 "Лестница" на первом этаже. Есть открытый проем шириной 1,43 м.
  • Дверь между помещением 9 "Лестница" и помещением 1 "Коридор" на первом этаже двупольная с обеими рабочими створками. Ширина прохода 1330 мм.
  • Нет информационных знаков для МГН групп М1-М2 для доступа к помещениям второго этажа. Для группы М3 нет дополнительных поручней на лестничных маршах, и для группы М4 доступа нет. В проекте предусмотрены следующие меры:
    а) Приобретение гусеничного подъемника Барс УГП-130 или аналога.
    б) Монтаж дополнительных поручней на лестнице.
    в) Установка тактильных наземных указателей на путях перемещения МГН групп М1-М2.
    Указатели будут содержать рифы типа усеченных конусов, усеченных куполов или цилиндров, расположенных в линейном порядке. Будут установлены перед нижней и верхней ступенями лестницы первого и последнего пролета на расстоянии 300 мм от лестницы.
    Предупреждающий указатель "Внимание, прямо по ходу движения - лестница" не устанавливается из-за ограниченного пространства на лестничной площадке второго этажа. Установка угловых накладок противоскользящих на проступях краевых ступеней лестницы, контрастных с поверхностью ступени, цветом желтый.

Санитарно-бытовое помещение:

    • Есть женский и мужской санузлы, но отсутствует санитарно-бытовое помещение, которое можно было бы адаптировать для МГН.
    • В проекте предусмотрена перепланировка мужского и женского санузлов для создания универсального санузла, доступного как МГН, так и остальным посетителям. Размеры санузла составят 2,4х3,1 м, что соответствует требованиям СП 59.13330.2020.

В помещении "Музыкальный зал" на втором этаже используется двупольная дверь шириной 1,31 м. Рядом с дверью размещается тактильная табличка с названием помещения. Для людей с нарушениями слуха применяются индукционные системы, которые усиливают звуковой сигнал и позволяют его воспроизводить через наушники, даже при наличии преград. В "Музыкальном зале" будет установлена стационарная индукционная система VERT-135.

Места для инвалидов должны быть расположены в отдельных рядах, но не более трех в одном месте. Также предусматриваются свободные площадки и места для сопровождающих лиц. Доступ на эстраду и сцену для инвалидов на креслах-колясках должен быть обеспечен. Рядом с информационной табличкой о назначении помещения следует разместить пиктограмму о наличии индукционной петли. Работы выполняются в соответствии с проектом и указанными стандартами.

Закажите проект прямо сейчас!

Выделите опечатку и нажмите Ctrl + Enter, чтобы отправить сообщение об ошибке.