Работаем по всей России

Установка пандуса и адаптация многоквартирного здания в городе Торжок

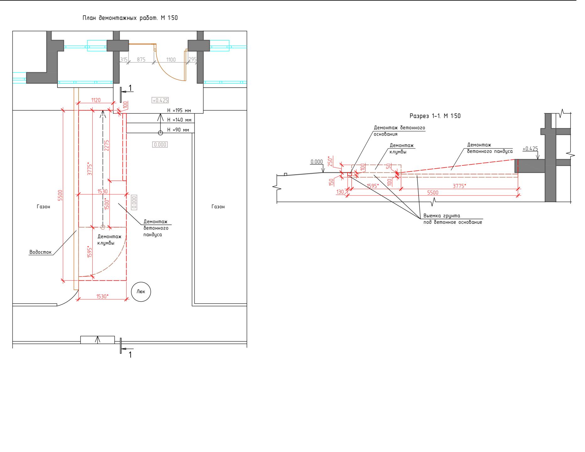
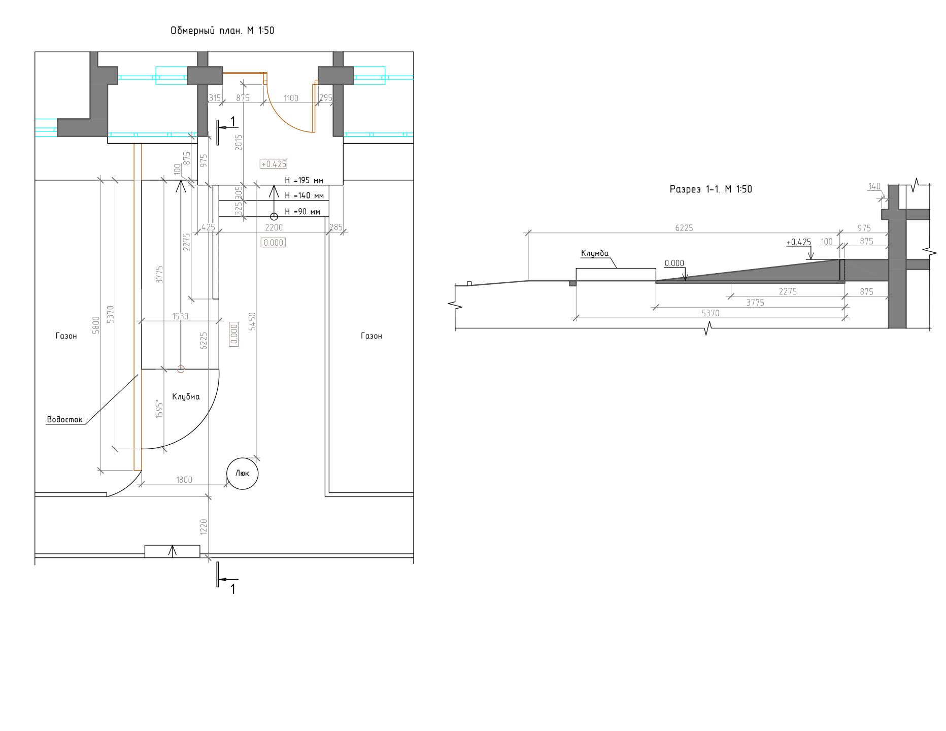
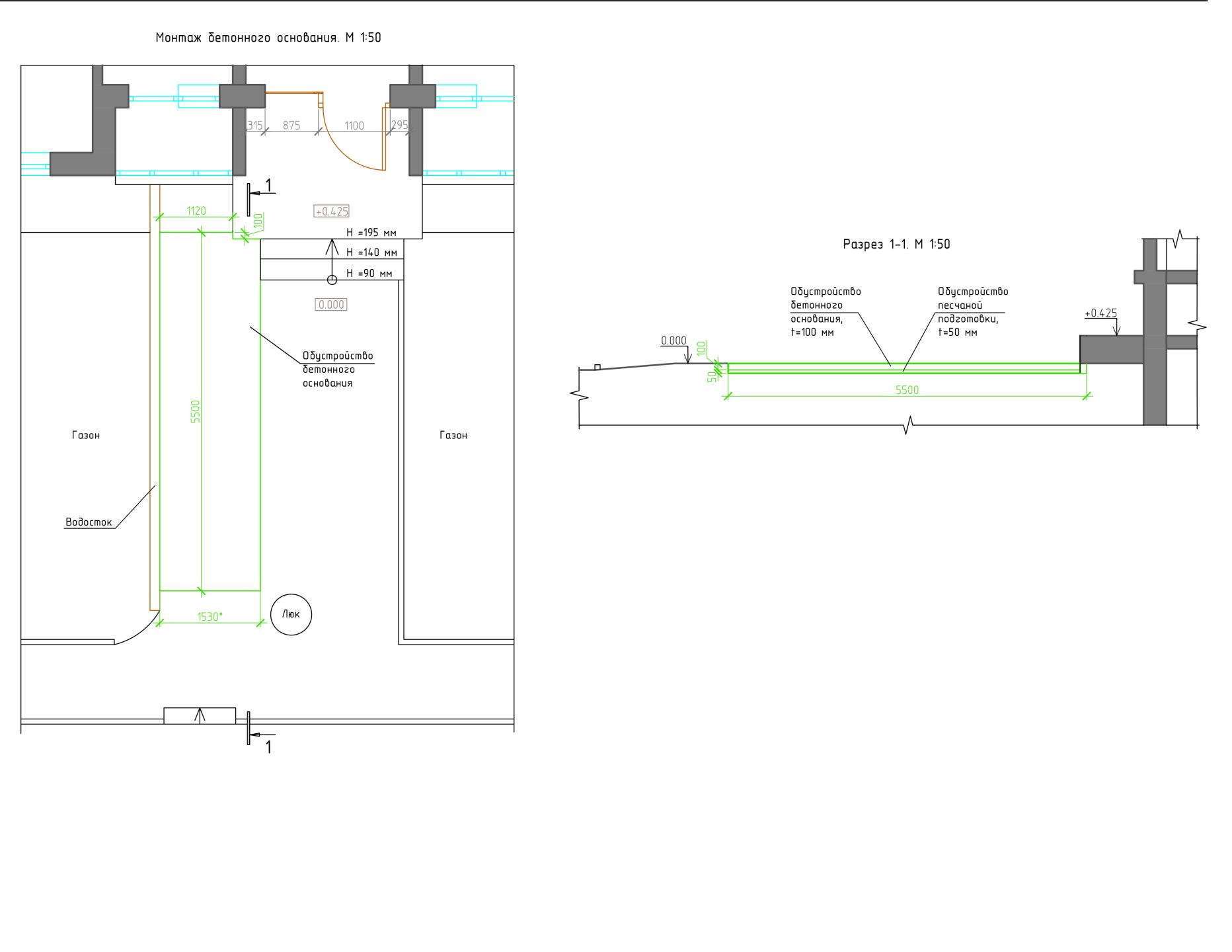
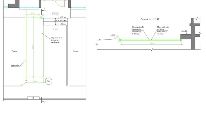
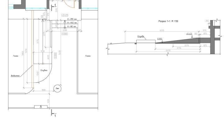
Данный проект разработан для жилого помещения, расположенного по адресу: ул. Старицкая, д.104-а, подъезд 5, г. Торжок, Тверская область. Основная цель проекта - обеспечение беспрепятственного перемещения людей с ограниченными возможностями и маломобильных групп населения (МГН) путем "разумного приспособления" к местам назначения.

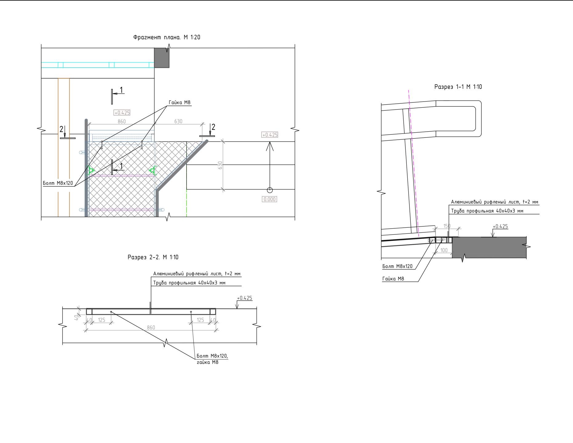
Пандус-конструктор

Пандус-конструктор должен соответствовать требованиям СП59.13330.2020: 5.1.14 Внешние лестницы для подъема МГН должны иметь пандусы при перепаде высот от 0,14 м до 6,0 м, подъемные платформы с вертикальным перемещением по ГОСТ Р 55555 при перепаде высот до 3,0 м и лифты при перепаде высот от 3,0 м и выше. Длина одного марша пандуса с учетом продольного уклона (от 1:20 до 1:16,7) не должна превышать 9,0 м.

По бокам марша пандуса должны быть установлены бортики высотой не менее 0,05 м. Пандусы должны иметь двустороннее ограждение с поручнями на высоте 0,9 м и 0,7 м; верхний и нижний поручни пандуса должны находиться в одной вертикальной плоскости с границами проходимой части пандуса (краем бортика). Ширина марша пандуса (расстояние между поручнями ограждений пандуса) при движении в одном направлении должна быть от 0,9 до 1,0 м.

Металлические решетки могут быть использованы в качестве поверхности пандуса. Размеры ячеек должны соответствовать требованиям 5.1.18. Конструкция пандуса должна выдерживать нагрузку не менее 250 кг/м2 с прогибом не более 5 мм. Максимальный размер ячеек в направлении движения для металлических решеток из просечно-вытяжного листа составляет 20 мм. Поверхность пандуса должна быть нескользкой, цветной или с текстурой, контрастной по сравнению с прилегающей поверхностью.

Перед уклонами, лестницами и пандусами следует размещать дренажные решетки водостоков, дождеприемников, водоотводных (сточных) лотков, решетки для зеленых насаждений, люки и крышки коммуникаций за пределами проходимой части пешеходных путей. Разрешается устанавливать отсекающие решетки (перпендикулярно пешеходному пути). Просветы ячеек решеток не должны превышать 13 мм. Диаметр круглых ячеек в решетках не должен превышать 18 мм. Ребра жесткости крышек люков и другие конструктивные элементы на их поверхности не должны иметь высоту более 5 мм.

Список использованных нормативных и регламентирующих документов:

  1. СП 59.13330.2020 "Доступность зданий и сооружений для маломобильных групп населения". Актуализированная редакция СНиП 35-01-2001.
  2. СП 136.13330.2012 "Здания и сооружения. Общие положения проектирования с учетом доступности для маломобильных групп населения" (с Изменениями №1).
  3. СП 138.13330.2012 "Общественные здания и сооружения, доступные маломобильным группам населения. Правила проектирования" (с Изменениями №1).
  4. ГОСТ Р 50602-93 "Кресла-Коляски. Максимальные габаритные размеры".
  5. ГОСТ Р 51261-17 "Устройства опорные стационарные реабилитационные. Типы и технические требования".

Закажите проект прямо сейчас!

Выделите опечатку и нажмите Ctrl + Enter, чтобы отправить сообщение об ошибке.