Работаем по всей России

Проект МОДИ для обеспечения беспрепятственного перемещения МГН АО "Альфа-Банк" в г. Сочи

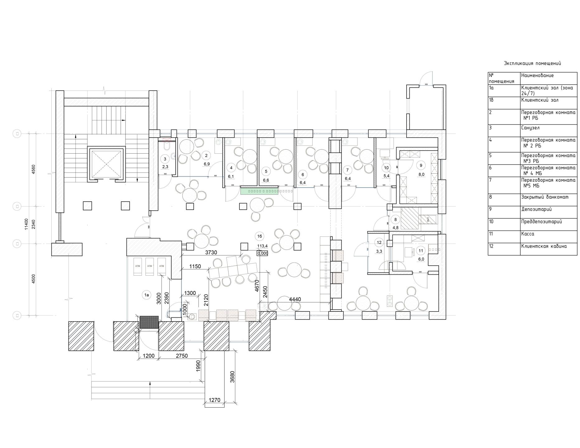
Данный проект разработан с целью обеспечения легкого доступа к помещениям банка для людей с ограниченными возможностями и маломобильных групп населения (МГН) через использование концепции "разумного приспособления". Проект предусматривает адаптацию уже существующего помещения банка, которое находится по адресу: г. Сочи, ул. Конституции СССР, д.18.

Разработка проектной документации основана на следующих источниках:

  • Техническом задании на проектирование;
  • Исходных данных, предоставленных заказчиком;
  • Результатов проведенного обследования;
  • Действующих строительных норм и правил.

В результате реализации данного проекта будет обеспечен беспрепятственный доступ людей с ограниченными возможностями и маломобильных групп населения к помещениям банка. Проект предусматривает комплекс мероприятий, включающих адаптацию помещений, повышение безопасности путей движения, предоставление полноценной информации и тактильных визуальных указателей для ориентации.

Тактильные настенные указатели будут установлены на путях перемещения МГН, а также предусмотрены тактильные визуальные таблички с информацией по системе Брайля перед входом и мнемосхема с планом помещений на стойке слева от входа. Знаки доступности для инвалидов по зрению и слуху будут размещены рядом с входом, а также обозначены помещения, где установлена индукционная петля для инвалидов по слуху. Также будет установлена тактильная пиктограмма "Банкомат" рядом с доступным банкоматом.

Заполните данные и мы перезвоним для обсуждения деталей вашего будущего проекта!

Выделите опечатку и нажмите Ctrl + Enter, чтобы отправить сообщение об ошибке.