Работаем по всей России

Проектирование раздела ОДИ для АО "Альфа-Банк" в г. Череповец

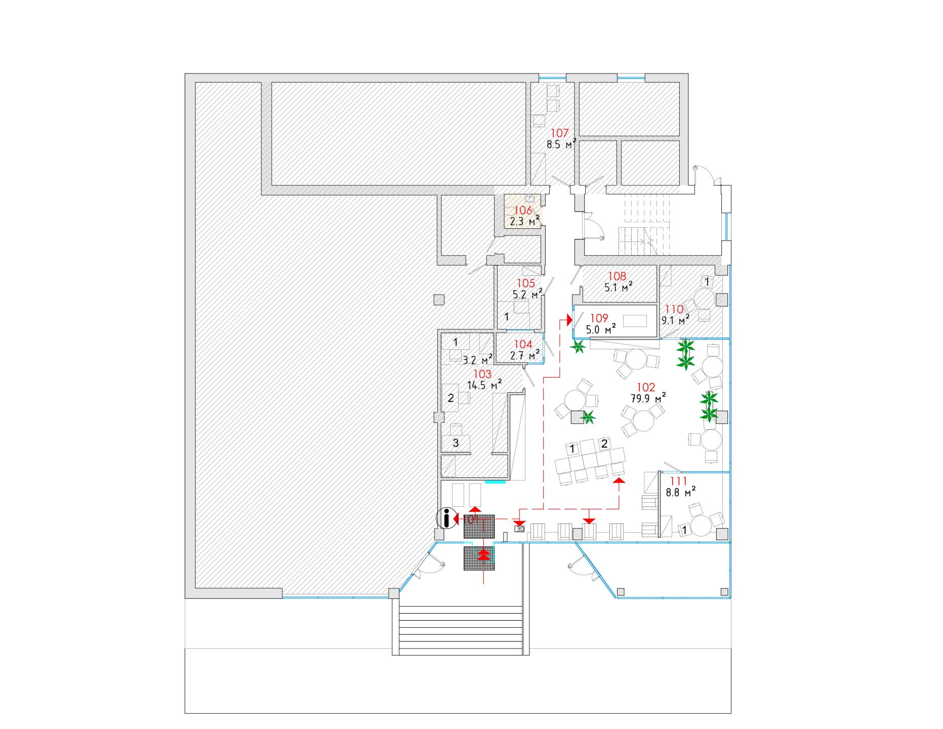
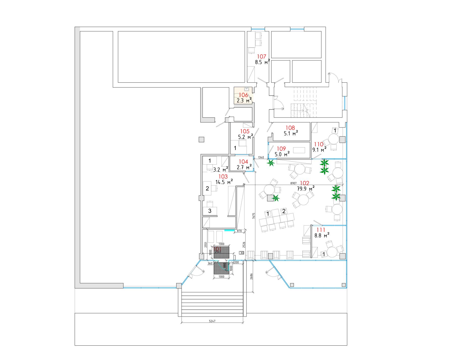
Настоящий проект разработан с целью обеспечения удобного доступа для людей с ограниченными возможностями и маломобильных групп населения (МГН) к помещениям банка. Принципом проекта является "разумное приспособление". Проект осуществляется в помещении банка, которое находится по адресу: г. Череповец, ул. Ленина, д.68.

Разработка проектной документации основывается на следующих источниках информации:

  • техническое задание на проектирование;
  • предоставленные заказчиком исходные данные;
  • результаты проведенного обследования;
  • соблюдение действующих строительных норм и правил.

Проект включает в себя комплекс мероприятий, направленных на улучшение архитектурной среды с соблюдением следующих принципов:

  1. Обеспечение доступности мест назначения для посетителей по кратчайшему пути и безбарьерного перемещения внутри помещений банка.
  2. Обеспечение безопасности путей передвижения и обслуживаемых зон.
  3. Предоставление МГН полноценной и качественной информации для ориентирования в пространстве, использования оборудования (включая самообслуживание) и получения услуг.

Проектные решения не ограничивают условия жизни других групп населения, находящихся в помещении банка. После реализации предусмотренных проектом мероприятий будет обеспечена возможность беспрепятственного перемещения лиц с ограниченной подвижностью группы М1-М3 от входа здания до внутренних помещений. Лица с ограниченной подвижностью группы М4 могут получить помощь от сотрудников банка для доступа.

Закажите проект прямо сейчас!

Выделите опечатку и нажмите Ctrl + Enter, чтобы отправить сообщение об ошибке.