Работаем по всей России

Адаптация вокзального комплекса Пермь-2 для использования МГН в городе Пермь.

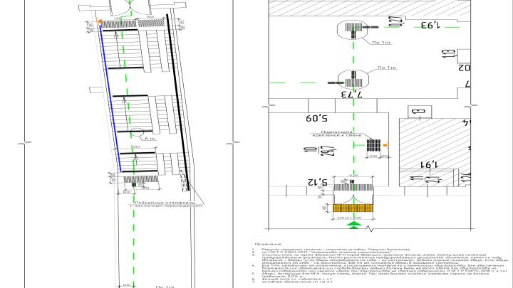
Целью данного проекта является обеспечение беспрепятственного перемещения людей с ограниченными возможностями и маломобильных групп населения на территории вокзала, с возможностью доступа к перронам. Здание вокзала расположено по адресу: г. Пермь, ул. Ленина, д.89. Проект разработан на основе технического задания, предоставленного Заказчиком, а также результатов обследования и соблюдения действующих строительных норм и правил.

В рамках проекта предусмотрены комплекс мероприятий, направленных на улучшение архитектурной среды с соблюдением следующих целей:

  1. Обеспечение доступности целевых мест посещения по кратчайшему пути и свободного перемещения на территории вокзала.
  2. Обеспечение безопасности путей движения и обслуживающих зон.
  3. Предоставление МГН полноценной и качественной информации, необходимой для ориентирования в пространстве, использования оборудования и получения услуг.

Проектные решения не ограничивают жизнедеятельность и возможности других групп населения, находящихся в здании. После реализации мероприятий, предусмотренных проектом, инвалиды смогут свободно перемещаться от главного входа здания до мест получения услуг и выхода на перроны.

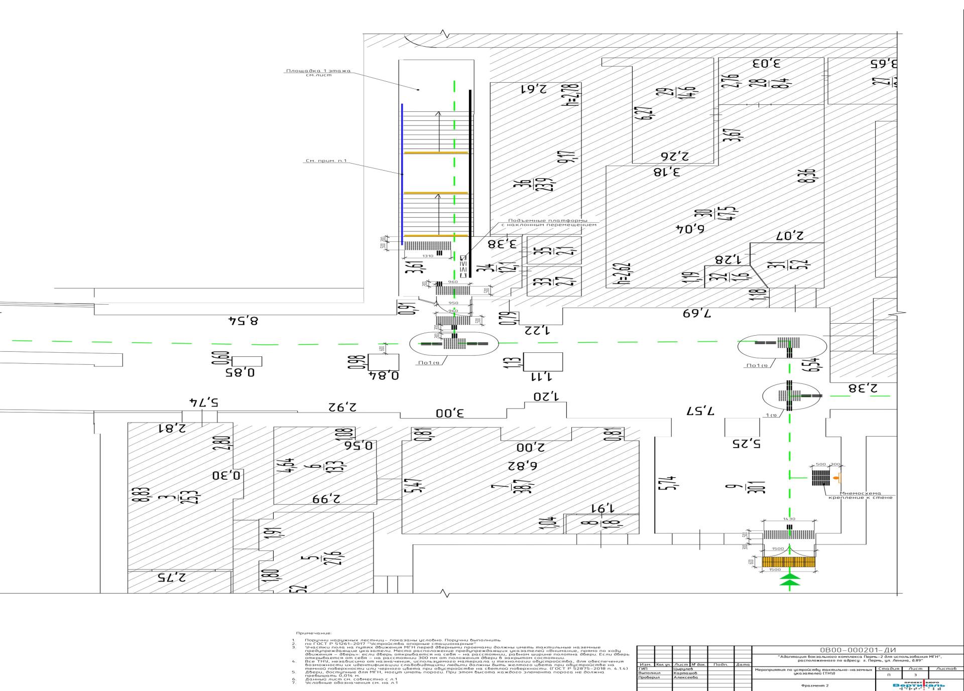
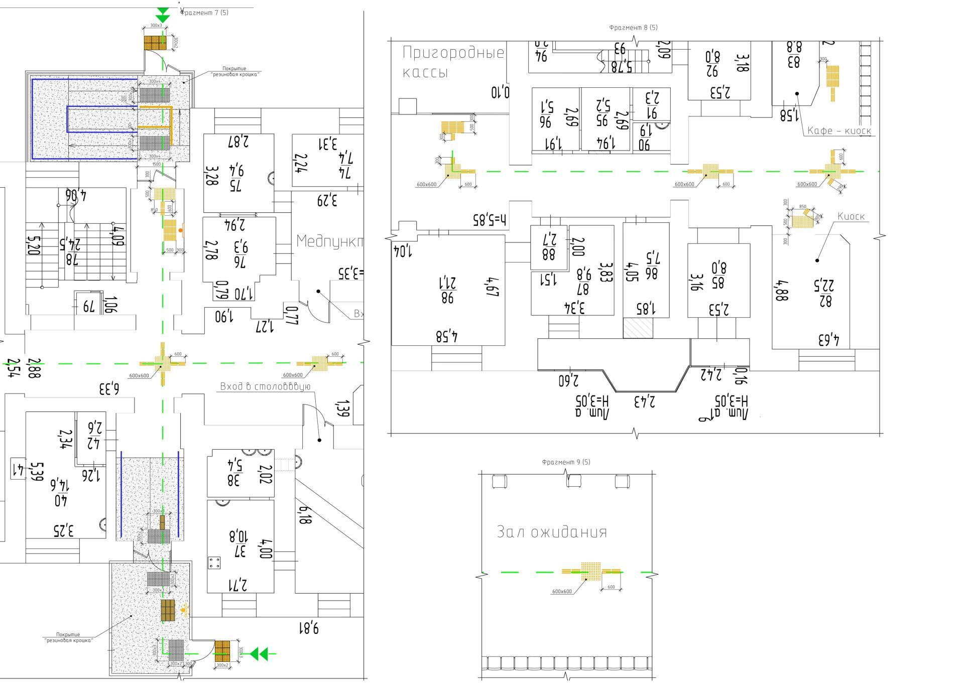
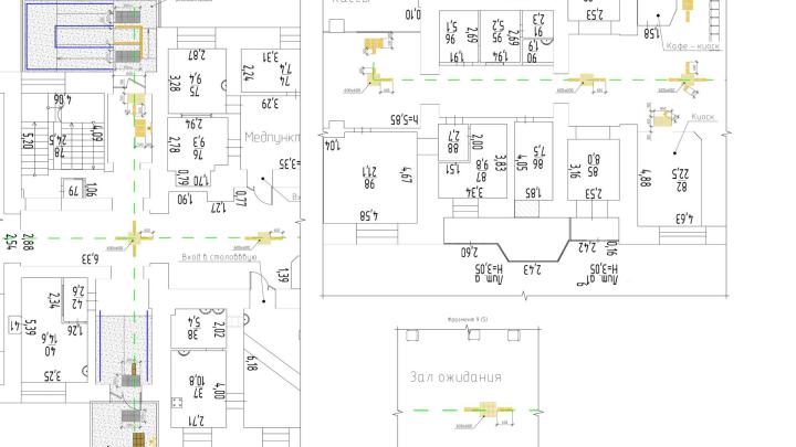
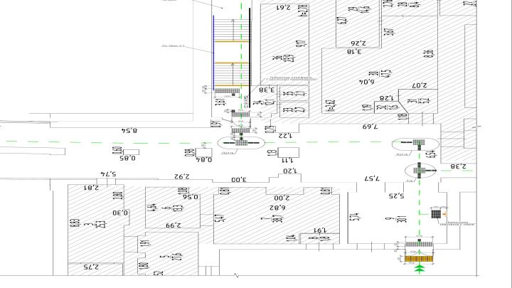
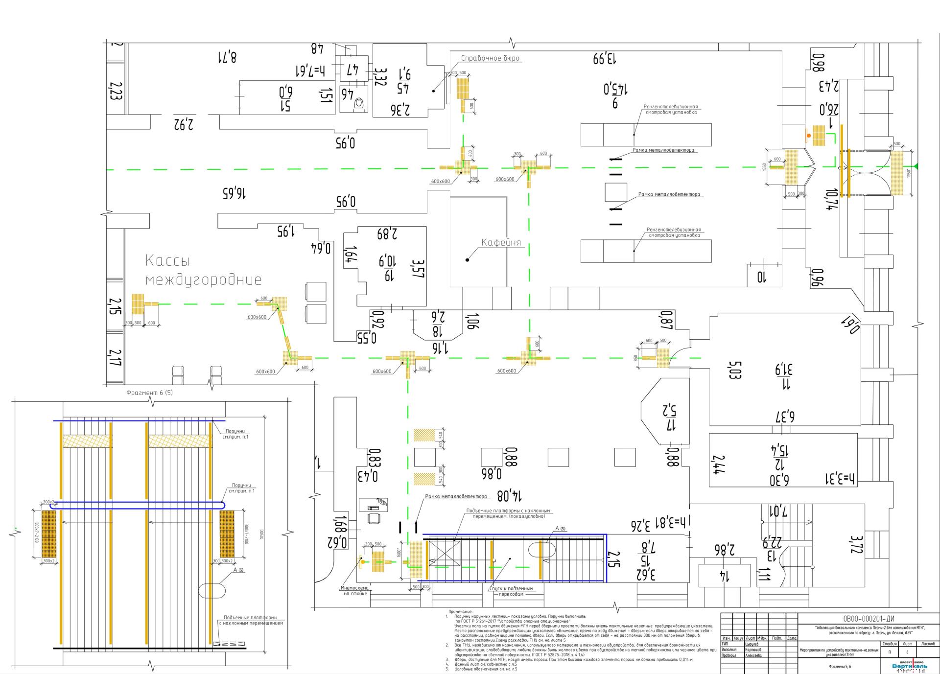
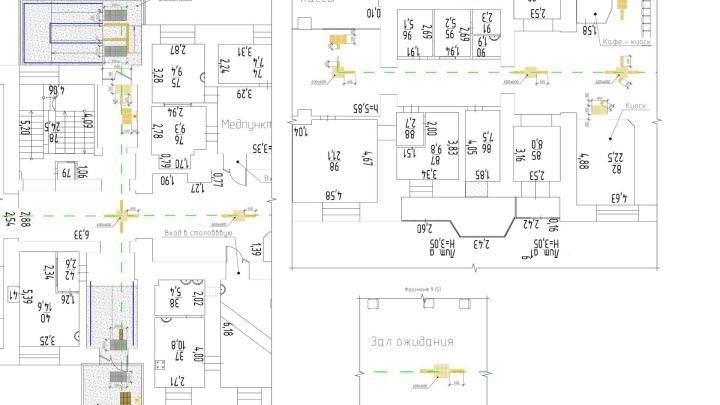
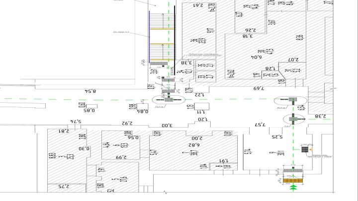
В соответствии с заданием на проектирование, в проекте предусмотрено установка тактильных наземных указателей, которые будут обозначать безопасные пути движения, места начала и изменения направления движения, а также места получения услуг для лиц с ограниченным зрением.

Для обеспечения безопасности и информированности людей с нарушением зрения, в рамках проекта планируется установка тактильных наземных указателей (ТНУ) в соответствии с ГОСТ Р 52875-2018 и СП 59.13330.2020. Следующие мероприятия предусмотрены в проекте:

  1. На нижней ступени наружной лестницы будет установлен локальный предупреждающий указатель «Внимание, прямо по ходу движения – лестница». Он будет иметь глубину 600 мм и располагаться на расстоянии 300 мм от кромки ступени на всю ширину лестницы. Указатель будет выполнен в виде тактильной плитки с линейным расположением конусных рифов.

  2. На проступях краевых ступеней лестничных маршей наружной лестницы будет нанесена контрастная полоса, отличающаяся от поверхности ступени. Ширина контрастной полосы будет составлять от 0,08 до 0,1 м, а расстояние между полосой и краем проступи будет от 0,03 до 0,04 м.

  3. Будет установлен указатель "Поле получения услуги" перед мнемосхемой. Он будет иметь эффективную глубину от 420 до 510 мм и состоять из девяти параллельных продольных рифов.

  4. Для обозначения непреодолимых препятствий или зон, закрытых для движения, будет установлен предупреждающий указатель "Внимание, по ходу движения - непреодолимое препятствие или зона, закрытая для движения". Указатель будет иметь глубину от 500 до 600 мм и рифы типа усеченных конусов, усеченных куполов и цилиндров, расположенных в шахматном порядке.

  5. Для прямолинейного встречного движения будет установлен направляющий указатель. Он будет иметь эффективную ширину от 130 до 150 мм и длину от 300 до 600 мм, а также три параллельных продольных рифа. 

    Все тактильные наземные указатели, независимо от назначения, материала и технологии их установки, будут окрашены в желтый цвет на темной поверхности или в черный цвет на светлой поверхности, чтобы обеспечить возможность их идентификации для людей со слабым зрением (в соответствии с ГОСТ Р 52875-2018 п. 4.1.4).

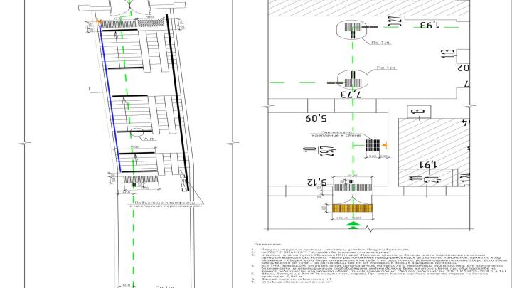
    Кроме того, для людей, передвигающихся на креслах-колясках, предусмотрено использование подъемных платформ с наклонным перемещением для обеспечения доступа в здания.

    Для людей, использующих дополнительные опоры для движения, наружные лестницы входных групп будут оборудованы поручнями в соответствии с ГОСТ Р 51261-2017. Поручни будут выполнены на двух уровнях: 900 мм и 700 мм. Конструкция и размещение поручней будут обеспечивать безопасность и удобство использования.

    Проектом не предусмотрена разработка поручней для лестниц входных групп.

Перечень использованных нормативных и регламентирующих документов включает:

  1. СП 59.13330.2020 «Доступность зданий и сооружений для маломобильных групп населения». Актуализированная редакция СНиП 35-01-2001.
  2. СП 136.13330.2012 «Здания и сооружения. Общие положения проектирования с учетом доступности для маломобильных групп населения» (с изменениями №1).
  3. СП 138.13330.2012 «Общественные здания и сооружения, доступные маломобильным группам населения. Правила проектирования» (с изменениями №1).
  4. ГОСТ Р 50602-93 «Кресла-коляски. Максимальные габаритные размеры».
  5. ГОСТ Р 51261-17 «Устройства опорные стационарные реабилитационные. Типы и технические требования».
  6. ГОСТ Р 52131-2019 «Средства отображения информации знаковые для инвалидов. Технические требования».

Закажите проект прямо сейчас!

Выделите опечатку и нажмите Ctrl + Enter, чтобы отправить сообщение об ошибке.