Работаем по всей России

Адаптация помещений АО "Альфа-Банк" в городе Тольятти 2 отделения

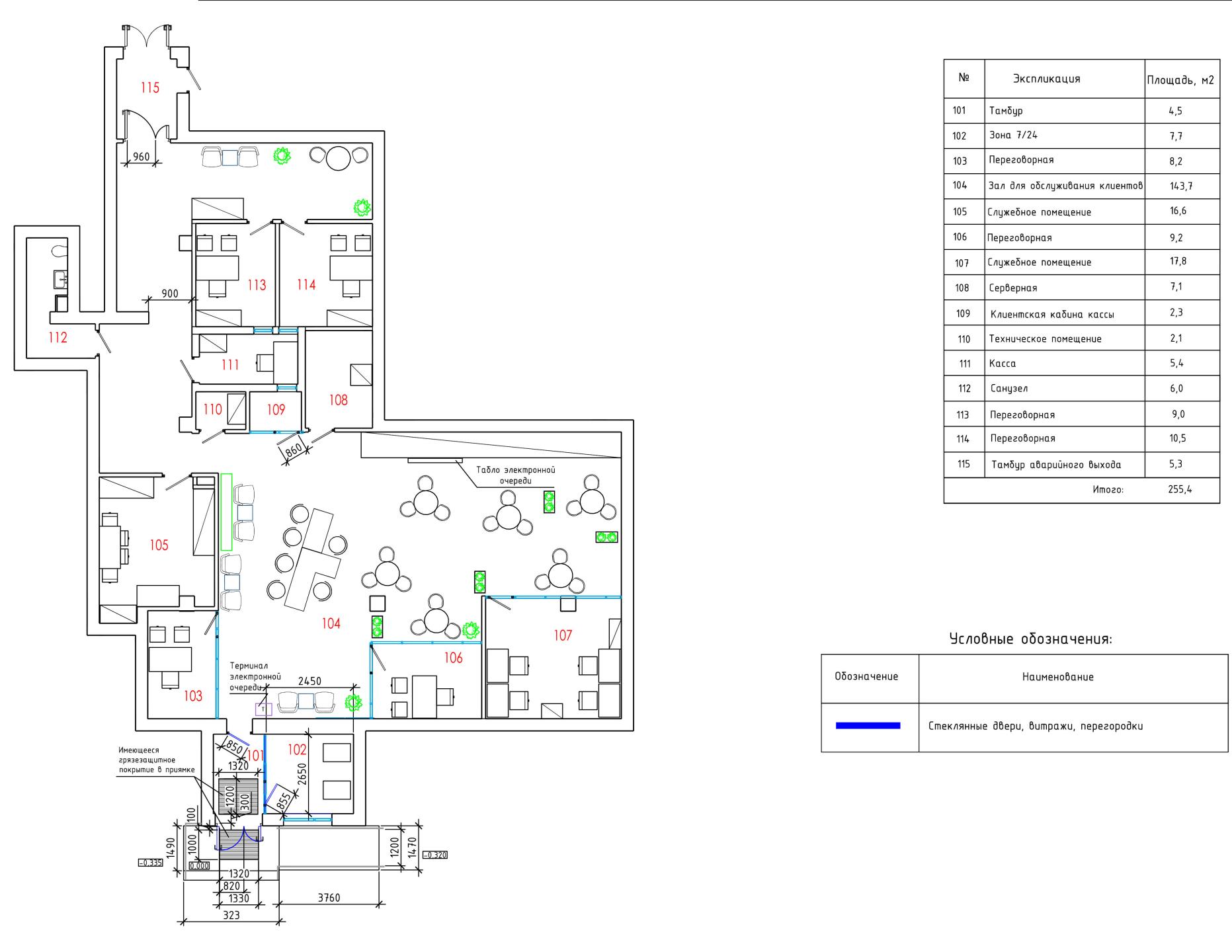
Предлагаемый проект разработан с целью обеспечения беспрепятственного доступа для людей с ограниченными возможностями и маломобильных групп населения к помещениям банка, расположенным по адресу: г. Тольятти, ул. Тополиная, д. 8а. Проектная документация основывается на техническом задании на проектирование, предоставленных заказчиком и результатам обследования, а также учитывает действующие строительные нормы и правила.

В рамках проекта предусмотрены следующие мероприятия:

  1. Обеспечение досягаемости мест целевого посещения внутри помещений банка и беспрепятственного перемещения внутри помещений.
  2. Обеспечение безопасности путей движения и мест обслуживания.
  3. Предоставление МГН полноценной и качественной информации для ориентирования в пространстве, использования оборудования и получения услуг.

Проектом предусмотрено установка тактильных визуальных указателей на путях перемещения МГН. Эти указатели включают:

  • Тактильную визуальную табличку с информацией на системе Брайля (100х300 мм) на входной двери банка.
  • Тактильную мнемосхему с планом помещений на системе Брайля (470 х 610 мм) в помещении тамбура.
  • Знаки доступности объекта для инвалидов, передвигающихся на креслах-колясках, по слуху и по зрению (150х150 мм) рядом со входом на объект. Эти три знака объединены в модуль.
  • Знак обозначения помещения с индукционной петлей для инвалидов по слуху (150х150 мм) перед входом в соответствующее помещение или рядом с зоной, где установлена индукционная петля.
  • Тактильную пиктограмму "Банкомат" (150 х 150 мм) вблизи доступного банкомата.
  • Знак обозначения места кратковременного отдыха или ожидания для инвалидов (150х150 мм) рядом со специально выделенными зонами отдыха инвалидов.
  • Знак "Обозначение помещения" у кассы и закрытого банкомата.

Проект разработан с учетом потребностей людей с ограниченными возможностями и маломобильных групп населения, с целью обеспечения им беспрепятственного доступа к помещениям банка. В рамках проекта предусмотрены различные мероприятия, такие как установка тактильных визуальных указателей, обеспечение безопасности путей движения и предоставление информации для ориентирования в пространстве. Это позволит людям с ограниченными возможностями комфортно и безопасно посещать банк, пользуясь его услугами.

Закажите проект прямо сейчас!

Выделите опечатку и нажмите Ctrl + Enter, чтобы отправить сообщение об ошибке.