Работаем по всей России

Адаптация помещений АО "Альфа-Банк" в городе Тамбов

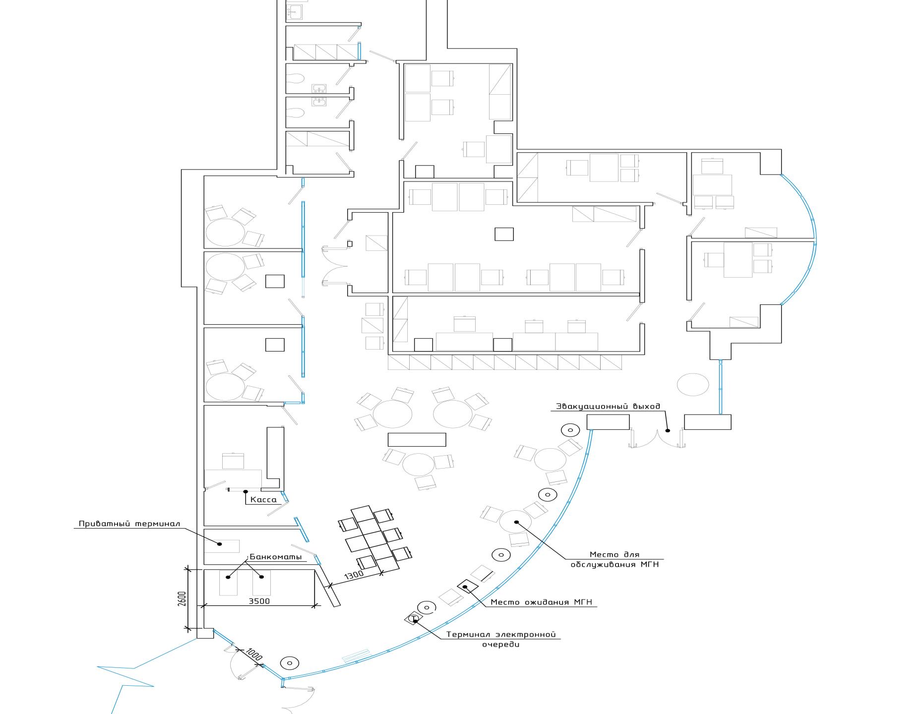
Целью данного проекта является обеспечение беспрепятственного доступа к помещениям банка для людей с ограниченными возможностями и маломобильных групп населения. Проектная документация была разработана на основе технического задания, предоставленных исходных данных, результатов обследования и соблюдения действующих строительных норм и правил.

Проект включает комплекс мероприятий, направленных на повышение качества архитектурной среды с учетом доступности и безопасности. Основные принципы проекта включают досягаемость целевых мест посещения, беспрепятственное перемещение внутри помещений банка, обеспечение безопасности путей движения и мест обслуживания, а также предоставление полноценной и качественной информации для ориентирования в пространстве и получения услуг.

Важно отметить, что данные проектные решения не ограничивают условия жизнедеятельности и не ущемляют возможности других групп населения, находящихся в помещении банка. После реализации предусмотренных мероприятий, инвалиды групп мобильности М1-М4 смогут свободно перемещаться от входа здания к внутренним помещениям, обеспечивая безбарьерное следование. Этот проект направлен на создание доступной и инклюзивной среды в банковском учреждении, где люди с ограниченными возможностями и маломобильные группы населения могут без проблем получать необходимые услуги и ощущать комфорт.

Закажите проект прямо сейчас!

Выделите опечатку и нажмите Ctrl + Enter, чтобы отправить сообщение об ошибке.