Работаем по всей России

Адаптация помещений АО "Альфа-Банк" в городе Санкт-Петербург 4 отделения

Город Санкт-Петербург, проспект Ленинский, дом 130/6, литера А, проспект Коломяжский, дом 15, корпус 2, литера А, проспект Тореза, дом 9, литера А, проспект Стачек, дом 47, литера Е. Настоящий проект разработан для обеспечения безбарьерного доступа для людей с ограниченными возможностями и маломобильных групп населения (МГН) в помещения банка по принципу "разумного приспособления". Проект предусматривает адаптацию эксплуатируемого помещения банка, расположенного по адресу: город Санкт-Петербург, проспект Ленинский, дом 130/6, литера А.

Разработка проектной документации основана на следующих источниках:

  • техническом задании на проектирование;
  • исходных данных, предоставленных заказчиком;
  • результаты обследования;
  • соблюдении действующих строительных норм и правил.

Проект включает комплекс мероприятий по улучшению архитектурной среды с соблюдением следующих условий:

  1. доступности мест назначения кратчайшим путем и свободного перемещения внутри помещений банка;
  2. безопасности путей движения и обслуживаемых зон;
  3. предоставления полноценной и качественной информации МГН, позволяющей ориентироваться в пространстве, использовать оборудование (включая самообслуживание) и получать услуги.

Данные проектные решения не ограничивают условия жизнедеятельности и возможности других групп населения, находящихся в помещении банка.

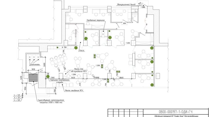
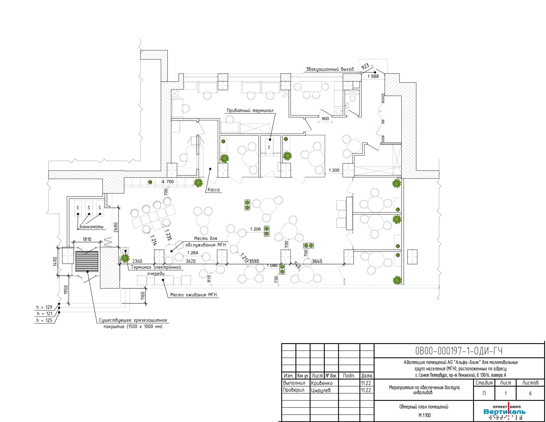
После реализации мероприятий, предусмотренных проектом, инвалиды с разными уровнями подвижности (М1-М4) смогут свободно перемещаться от входа здания до внутренних помещений. Для обеспечения навигации МГН предусмотрены тактильные настенные указатели на путях перемещения.

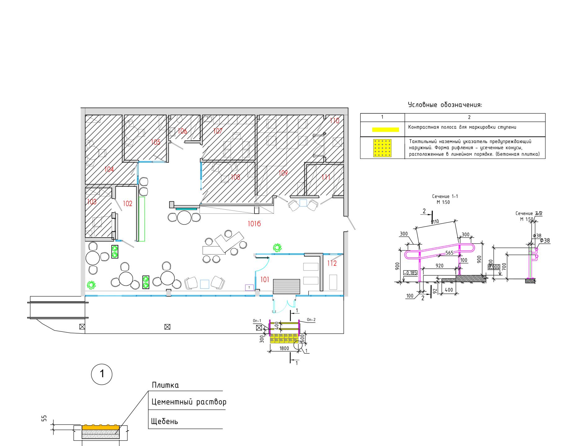
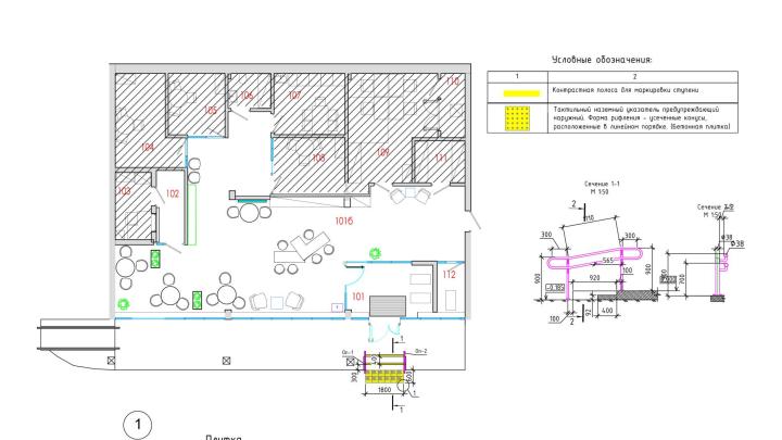
В соответствии с требованиями СП 59.13330.2020, технические средства информирования, ориентирования и сигнализации в местах массового посещения должны обеспечивать посетителям возможность однозначной информации о объектах и местах посещения, размещении и функциях элементов, ассортименте и характере предоставляемых услуг, а также обеспечивать надежную ориентацию в пространстве. В проекте предусмотрены тактильные визуальные указатели на путях перемещения МГН, включая знаки доступности входа для инвалидов, обозначения помещений с индукционными петлями для слабослышащих, тактильные пиктограммы "Банкомат" и знаки обозначения мест отдыха для инвалидов.

Согласно ГОСТ Р 52131-2019, знак доступности объекта для инвалидов со зрительными ограничениями должен быть тактильно-визуальным и размещаться перед входом в здание или помещение, рядом с входной дверью, на высоте 1,3 м от уровня поверхности. Если имеется информационная табличка с названием и режимом работы объекта, знак устанавливается после таблички на том же уровне.

Согласно СП 59.13330.2020, прозрачные полотна дверей и ограждения (перегородки) должны иметь яркую контрастную маркировку в цвете банка в виде корпоративных эмблем и логотипов. Тактильные визуальные указатели устанавливаются на высоте 1,3 м от уровня пешеходной поверхности в соответствии с указаниями листа 3 группы частей 0В00-000197-1–ОДИ.

Отметим, что установка тактильных наземных указателей перед лестницей на поверхности тротуара не рекомендуется из-за ограниченной ширины тротуара, что может ввести слабовидящих людей в заблуждение и представлять дополнительную опасность. Также не требуется установка тактильных указателей на наружных входных площадках, тамбурах эвакуационных выходов и перед внутренней дверью тамбура в данном банковском отделении.

Из представленной информации можно сделать следующие выводы:

  1. Банковское отделение было спроектировано с учетом потребностей людей с ограниченными возможностями и маломобильных групп населения.
  2. Для обеспечения доступности и ориентации в пространстве в отделении были установлены тактильные визуальные указатели, информационные знаки и пиктограммы.
  3. Знак доступности для инвалидов со зрительными ограничениями размещается перед входом в здание или помещение, на высоте 1,3 м от уровня поверхности.
  4. Прозрачные полотна дверей и ограждения имеют контрастную маркировку в цвете банка, чтобы обеспечить ясную видимость.
  5. Не рекомендуется устанавливать тактильные указатели перед лестницей на тротуаре из-за ограниченной ширины тротуара.
  6. Для обслуживания людей с дефектом слуха в отделении установлена портативная индукционная петля.

В целом, эти меры и установки призваны создать доступную и комфортную среду для всех посетителей банковского отделения, учитывая различные ограничения и потребности.

Закажите проект прямо сейчас!

Выделите опечатку и нажмите Ctrl + Enter, чтобы отправить сообщение об ошибке.