Работаем по всей России

Адаптация помещений АО "Альфа-Банк" в городе Серпухов

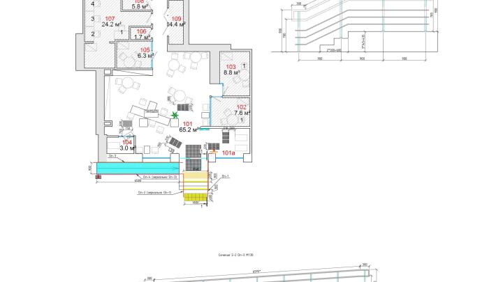
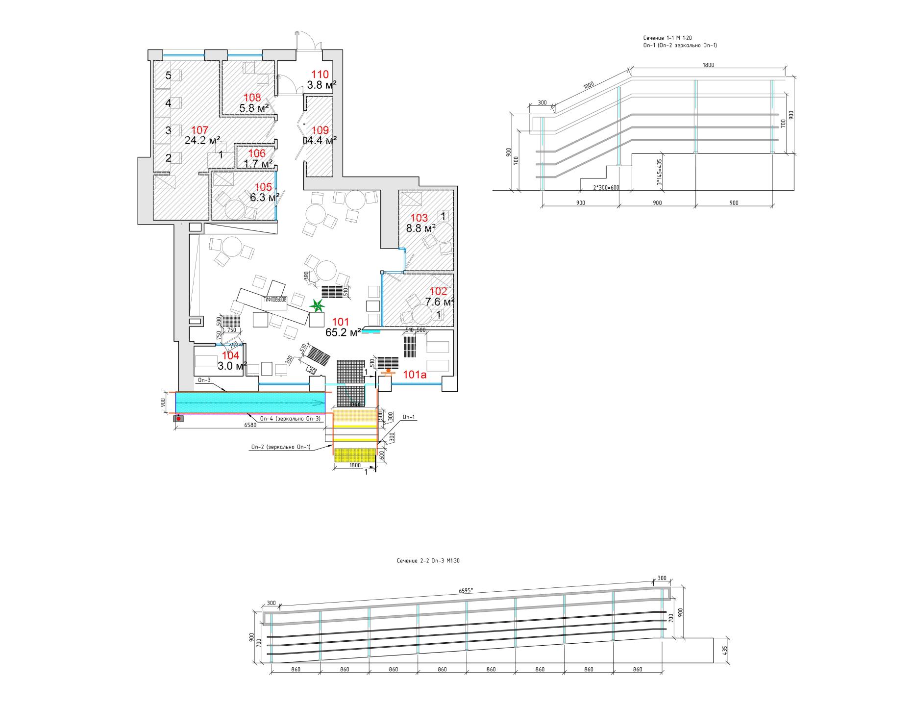
Изложенное введение описывает цели и основные принципы проекта, направленного на обеспечение беспрепятственного доступа к помещениям банка для людей с ограниченными возможностями и маломобильных групп населения. Проектная документация разработана на основе технического задания, предоставленных данных заказчика, результатов обследования и действующих строительных норм и правил.

В проекте предусмотрены меры, направленные на повышение качества архитектурной среды с учетом достижимости целевых мест посещения, безопасности путей движения и обслуживания, а также предоставления полноценной и качественной информации для маломобильных групп населения.

Проект разработан для обеспечения беспрепятственного доступа людей с ограниченными возможностями и маломобильных групп населения к помещениям банка. Включает меры по повышению доступности, безопасности и информированию, в том числе установку тактильных указателей и знаков доступности. Реализация проекта обеспечивает легкое перемещение инвалидов и улучшение условий обслуживания для всех клиентов.

Закажите проект прямо сейчас!

Выделите опечатку и нажмите Ctrl + Enter, чтобы отправить сообщение об ошибке.