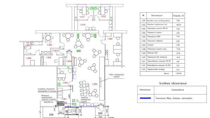
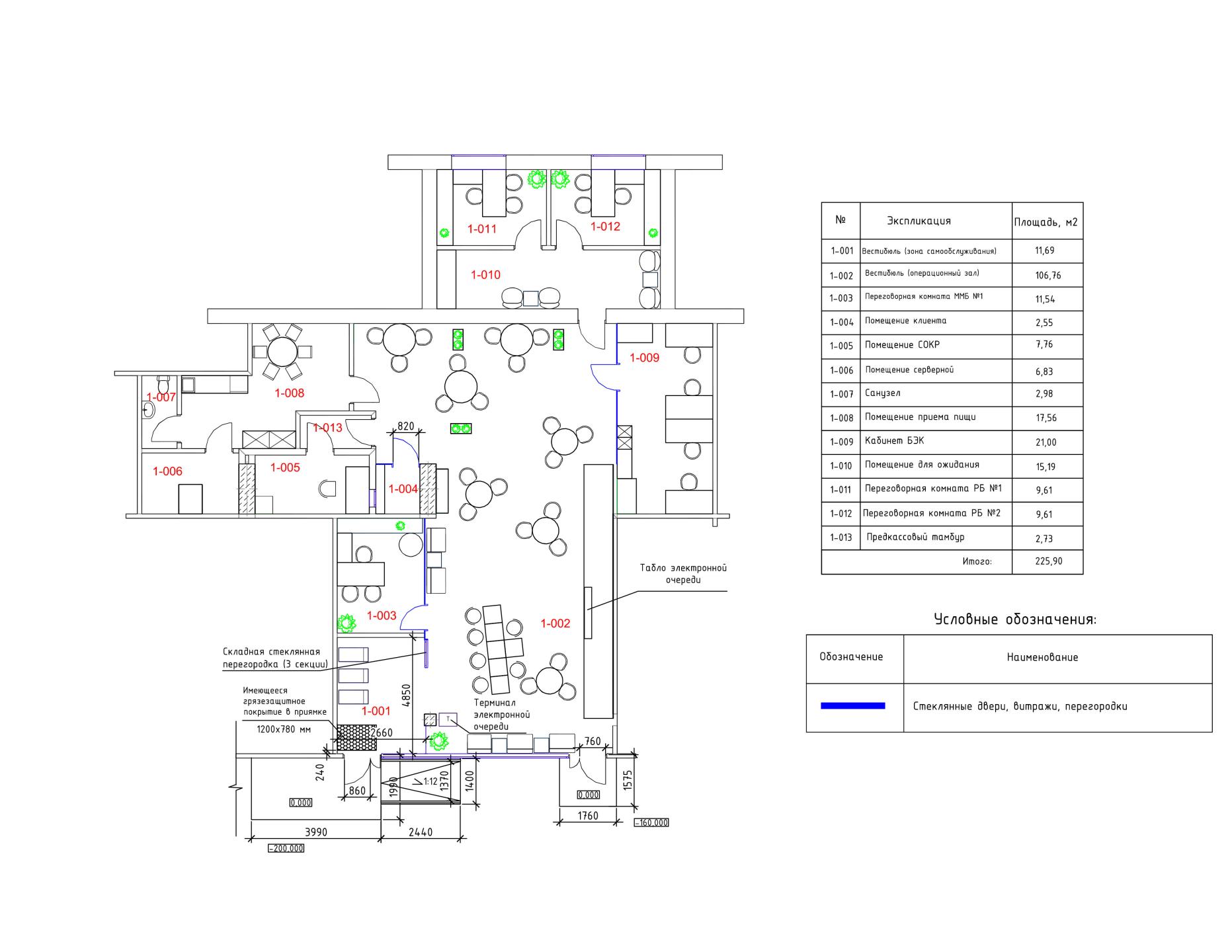
Адаптация помещений АО "Альфа-Банк" в городе Ростов-на-Дону 2 отделения
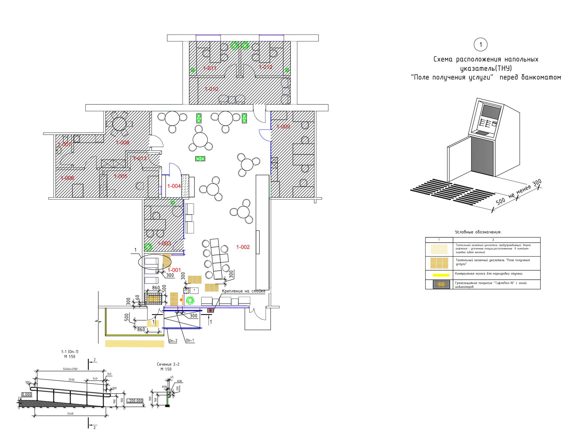
В соответствии с последними требованиями из СП 59.13330.2020, технические средства информирования, ориентирования и сигнализации в местах массового посещения должны обеспечивать ясную и однозначную информацию для посетителей о различных объектах и местах посещения, а также об ассортименте предоставляемых услуг и общем ориентировании в пространстве.
Все эти меры направлены на создание доступной среды для инвалидов и людей с ограниченными возможностями, обеспечивая им возможность свободного перемещения и использования общественных пространств и помещений.
 
