Работаем по всей России

Адаптация помещений АО "Альфа-Банк" в городе Псков

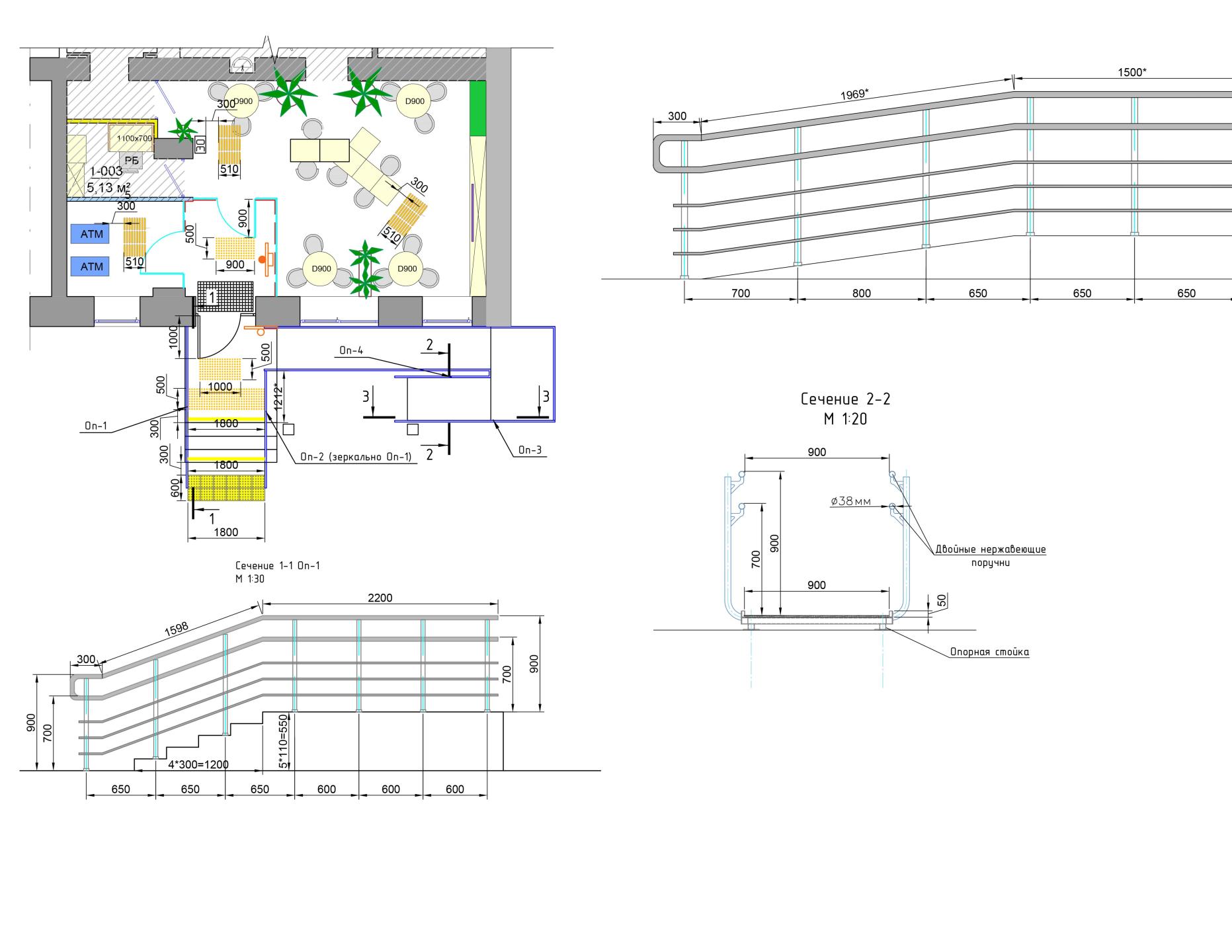
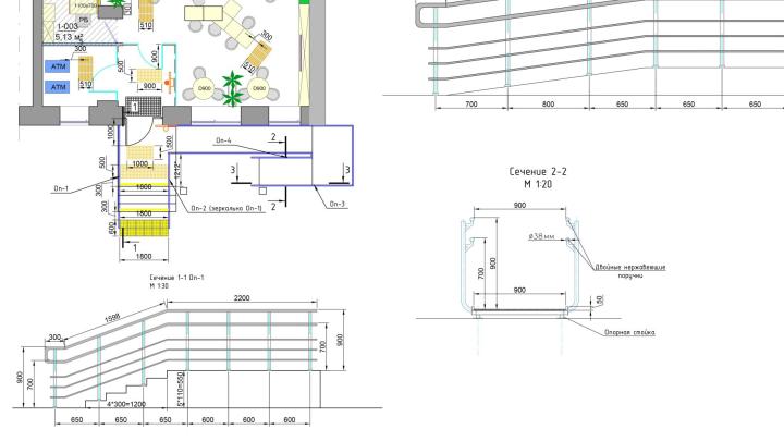
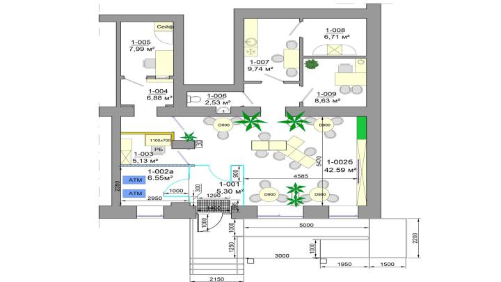
На основании технического задания на проектирование, представленных заказчиком и результатов обследования, настоящий проект разработан с целью обеспечения беспрепятственного доступа к помещениям банка для людей с ограниченными возможностями и маломобильных групп населения (МГН). Эксплуатируемое помещение банка, расположенное по адресу: г. Псков, пр-т Рижский, д.16, будет адаптировано в соответствии с принципом "разумного приспособления". Проектная документация разработана с учетом действующих строительных норм и правил.

Важно отметить, что данные проектные решения не ограничивают условия жизнедеятельности и не ущемляют возможности других групп населения, находящихся в помещении банка.

После реализации мероприятий, предусмотренных проектом, будет обеспечиваться возможность безбарьерного следования инвалидов групп мобильности М1-М4 от входа здания к внутренним помещениям. Таким образом, проект направлен на создание условий для равных возможностей и комфортного обслуживания всех посетителей банка, включая людей с ограниченными возможностями и маломобильных групп населения.

Закажите проект прямо сейчас!

Выделите опечатку и нажмите Ctrl + Enter, чтобы отправить сообщение об ошибке.