Работаем по всей России

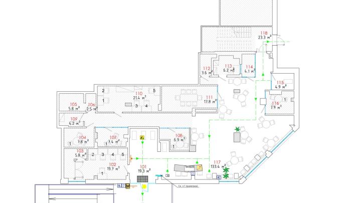
Адаптация помещений АО "Альфа-Банк" в городе Подольск

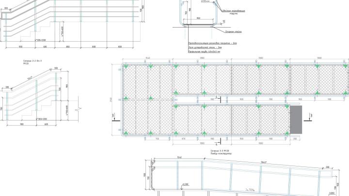
Локальный предупреждающий указатель «внимание, прямо по ходу движения – лестница». Указатель глубиной от 500 до 600 мм и шириной, равной ширине участка лестницы, разрешенного для движения инвалидов. Рифы типа усеченных конусов,

усеченных куполов, цилиндров, расположенных в линейном порядке. Располагается на расстоянии 300 мм от кромки проступи нижней ступени лестничного марша.

Выполняется высокопрочной бетонной плиткой желтого цвета с линейным расположением конусных рифов. Располагается перед нижней ступенью крыльца на расстоянии 300мм.

Вход в помещения банка необходимо оборудовать пандусом для создания комфортного и беспрепятственного пути движения для МГН и инвалидов, передвигающихся на креслах-колясках. При этом необходимо провести работы по расширению входной площадки согласно требованиям СП 59.13330.2020

Закажите проект прямо сейчас!

Выделите опечатку и нажмите Ctrl + Enter, чтобы отправить сообщение об ошибке.