Работаем по всей России

Адаптация помещений АО "Альфа-Банк" в город Пермь 2 отделения

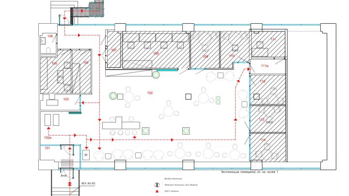
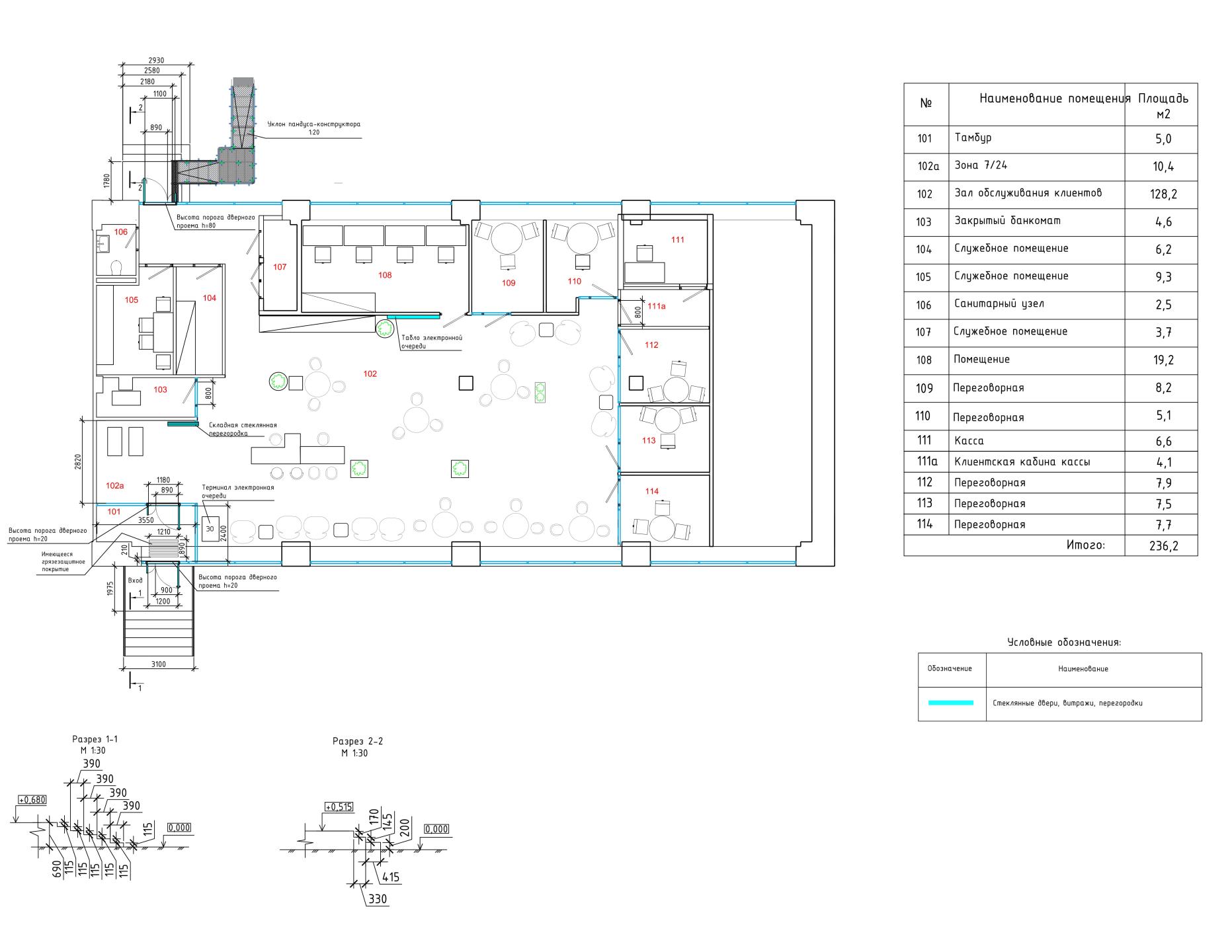
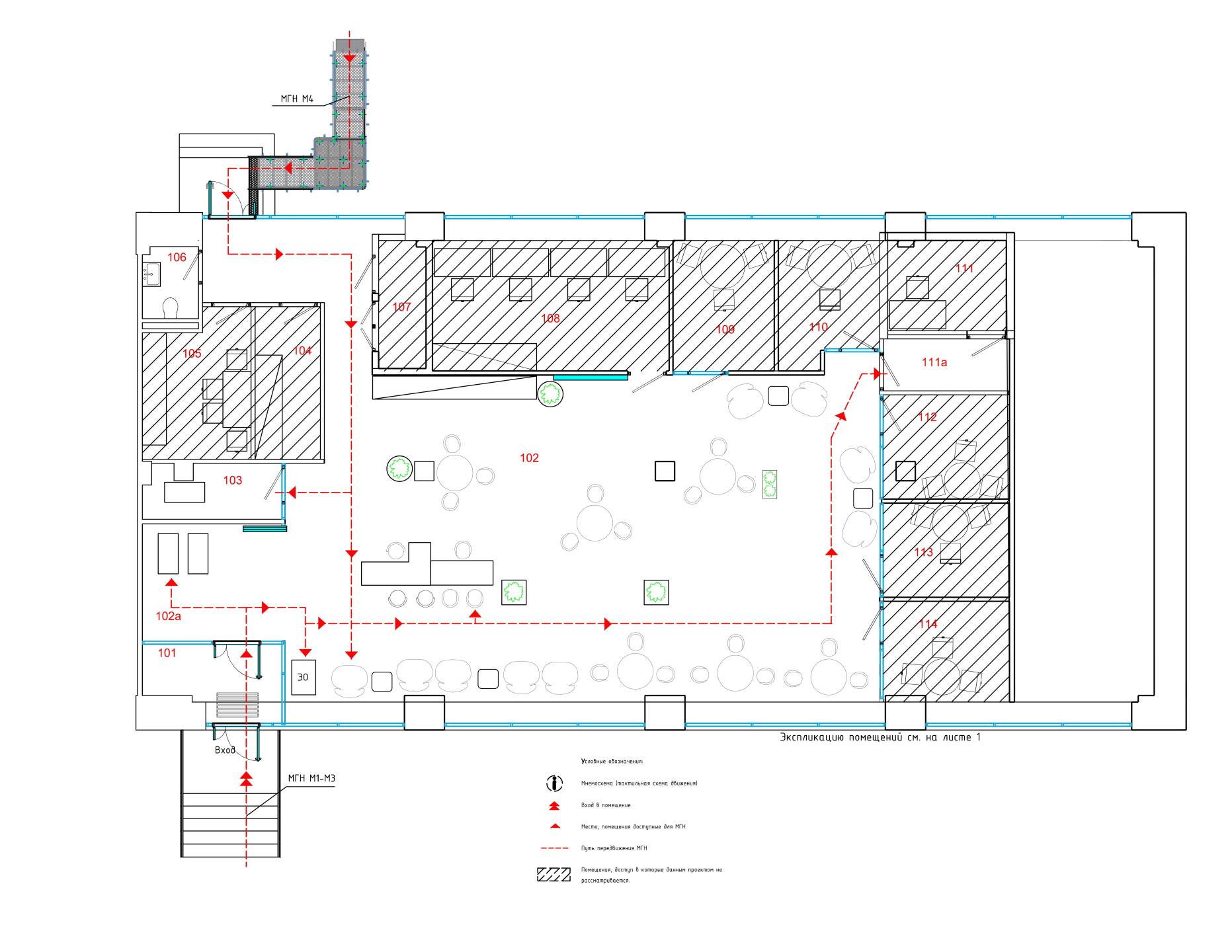
Настоящий проект разработан в целях обеспечения беспрепятственного доступа к помещениям банка для людей с ограниченными возможностями и маломобильных групп населения (МГН) по принципу «разумного приспособления». Адаптируется эксплуатируемое помещение банка, расположенное по адресу: г. Пермь, ул. Советская, д. 45. и пр-т им. газеты Красноярский рабочий, д. 199.

Проектная документация разработана на основании:

  •  технического задания на проектирование;
  •  исходных данных, представленных заказчиком;
  •  результатах обследования;
  •  действующих строительных норм и правил.

Закажите проект прямо сейчас!

Выделите опечатку и нажмите Ctrl + Enter, чтобы отправить сообщение об ошибке.