Работаем по всей России

Адаптация помещений АО "Альфа-Банк" в городе Оренбург

Проект разработан с целью обеспечения беспрепятственного доступа для людей с ограниченными возможностями и маломобильных групп населения в банковские помещения. Он предусматривает применение принципа "разумного приспособления" для адаптации существующего банковского помещения, расположенного по адресу: г. Оренбург, ул. Салмышская, д. 37.

В проекте уделяется внимание нескольким аспектам, включая досягаемость мест целевого посещения, безопасность путей движения и мест обслуживания, а также предоставление полноценной и качественной информации людям с ограниченными возможностями. Эти решения не ограничивают условия жизнедеятельности и не ущемляют возможности других групп населения, находящихся в помещении банка.

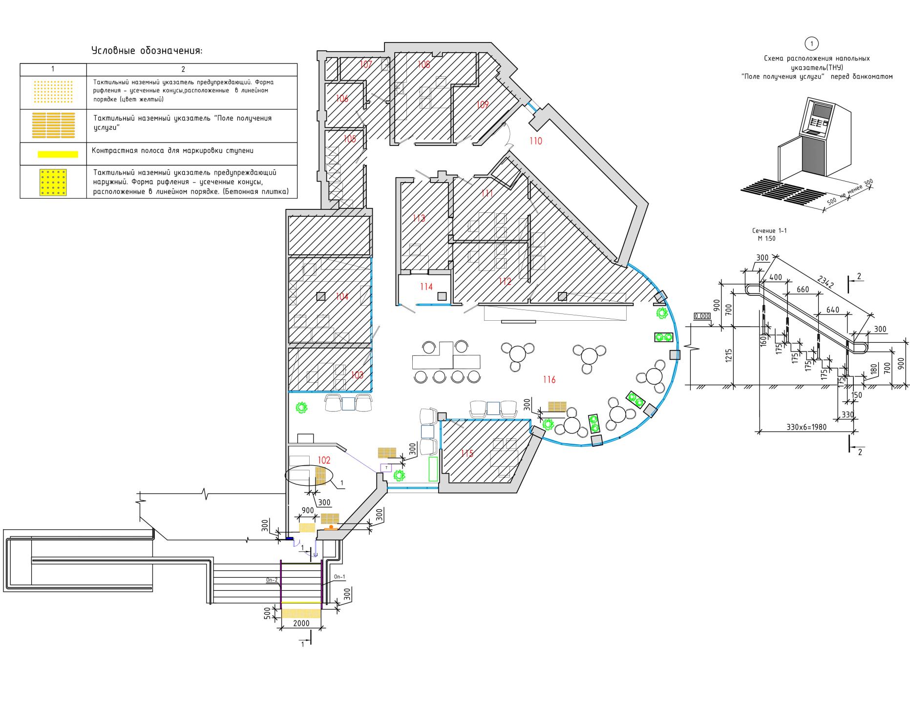
В рамках проекта предусмотрены следующие мероприятия по адаптации для людей с нарушением зрения:

Тактильные настенные указатели на путях перемещения МГН:

  • Тактильная визуальная табличка с дублированием информации по системе Брайля (100х300 мм) с указанием наименования учреждения и режимом работы.
  • Тактильная мнемосхема с планом и назначением помещений с дублированием информации тактильным плоскопечатным способом по системе Брайля (470 х 610 мм).
  • Знак доступности объекта для инвалидов, передвигающихся на креслах-колясках (150х150 мм).
  • Знак доступности объекта для инвалидов по слуху (150х150 мм).
  • Знак доступности объекта для инвалидов по зрению (150х200 мм). Эти три знака объединены в модуль.
  • Знак обозначения помещения с индукционной петлей для инвалидов по слуху (150х150 мм).
  • Тактильная пиктограмма "Банкомат" (150 х 150 мм).
  • Знак обозначения места кратковременного отдыха или ожидания для инвалидов (150х150 мм).
  • Знак "Фактический уровень уклона" (располагается при заезде на пандус.

Проект адаптации банковского помещения в г. Оренбурге, ул. Салмышская, д. 37, для людей с ограниченными возможностями и маломобильных групп населения, включает ряд мероприятий, направленных на обеспечение их безопасного и комфортного доступа. Для людей с нарушением зрения предусмотрены тактильные настенные указатели, содержащие информацию в системе Брайля, включая наименование учреждения, план помещений, знаки доступности и другую необходимую информацию.

Также предусмотрены знаки обозначения помещений с индукционной петлей для инвалидов по слуху, тактильная пиктограмма "Банкомат", знаки обозначения мест отдыха и ожидания, а также знак "Фактический уровень уклона" при заезде на пандус. Эти меры помогут обеспечить барьерную среду и улучшить доступность банковского обслуживания для всех групп населения.

Закажите проект прямо сейчас!

Выделите опечатку и нажмите Ctrl + Enter, чтобы отправить сообщение об ошибке.