Работаем по всей России

Адаптация помещений АО "Альфа-Банк" в городе Омск

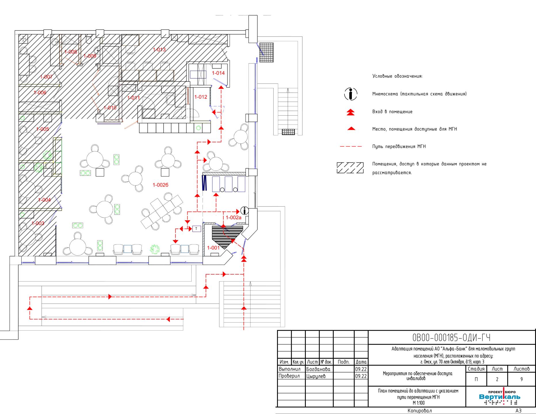
В проекте предусмотрены меры, направленные на повышение качества архитектурной среды с учетом досягаемости мест целевого посещения, безопасности путей движения и своевременного предоставления информации МГН. Реализация этих мероприятий позволит обеспечить возможность безбарьерного перемещения инвалидов по зданию банка.

Для обеспечения информирования и ориентации МГН в пространстве предусмотрены тактильные визуальные указатели, включая таблички, мнемосхемы, знаки доступности, пиктограммы и другие элементы. Установка таких указателей осуществляется на определенной высоте и в соответствии с требованиями стандартов безопасности.

Также проект включает монтаж тактильных наземных указателей на путях перемещения МГН. Эти указатели предупреждают о наличии дверей и указывают на поле получения услуги. Они выполняются в определенных размерах и цвете, с учетом требований безопасности и доступности.

В проекте также предусмотрена установка накладок противоскользящих на проступях ступеней крыльца банка, чтобы обеспечить безопасность при подъеме и спуске по ступеням.

Монтаж указанных тактильных элементов осуществляется с использованием соответствующих технологий и материалов в соответствии с проектной документацией.

Общие указания по монтажу тактильных визуальных указателей и наземных указателей содержатся на соответствующих листах проекта.

Проект разработан для обеспечения беспрепятственного доступа МГН к помещениям банка. Включает тактильные указатели с информацией в системе Брайля, знаки доступности для различных групп инвалидов, тактильные наземные указатели на путях перемещения, противоскользящие накладки на ступенях, контрастную маркировку на дверях и другие меры. Проект стремится повысить досягаемость, безопасность и информированность МГН, создавая более доступную и инклюзивную среду в банковских помещениях.

Закажите проект прямо сейчас!

Выделите опечатку и нажмите Ctrl + Enter, чтобы отправить сообщение об ошибке.