Работаем по всей России

Адаптация помещений АО "Альфа-Банк" в городе Новокузнецк

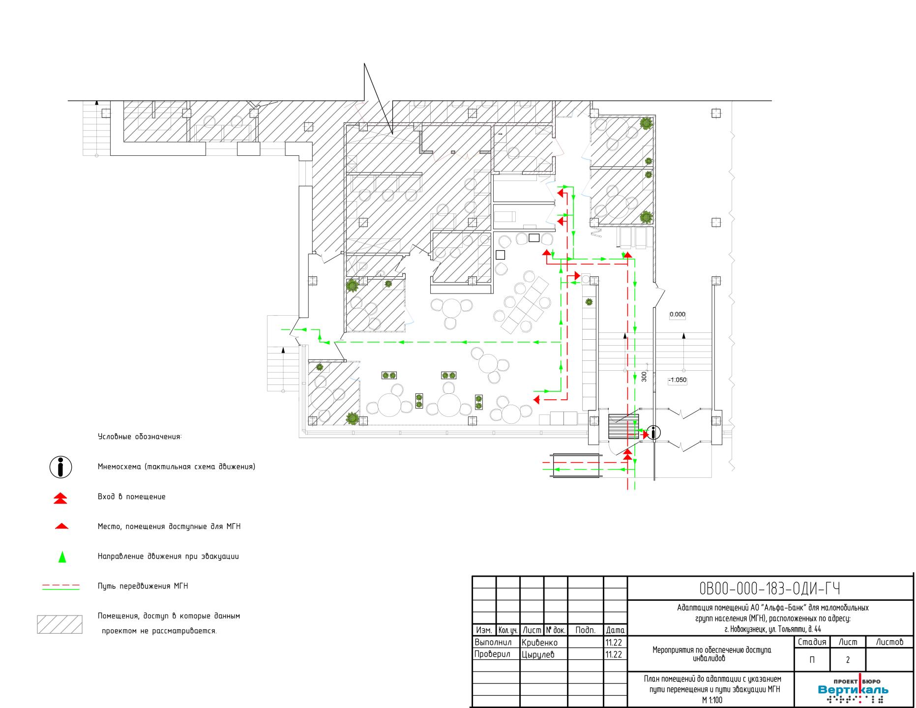
В данном проекте основным намерением является обеспечение удобного доступа для лиц с ограниченными возможностями и маломобильных групп населения (МГН) к помещениям банка. Проект предусматривает адаптацию уже функционирующего банковского помещения, расположенного по адресу: г. Новокузнецк, ул. Тольятти, д. 44.

Основой для разработки проектной документации послужили следующие источники:

  • техническое задание на проектирование;
  • предоставленные заказчиком исходные данные;
  • результаты проведенного обследования;
  • действующие строительные нормы и правила.

Проект предусматривает комплекс мероприятий, направленных на улучшение архитектурной среды с соблюдением следующих критериев:

  1. Обеспечение простого доступа до целевых мест по кратчайшему пути и свободного перемещения внутри помещений банка.
  2. Гарантированная безопасность путей передвижения и обслуживающих зон.
  3. Своевременное предоставление полноценной и качественной информации МГН, позволяющей ориентироваться в пространстве, использовать оборудование (включая самообслуживающие устройства), получать услуги и т.д.

Проект разработан для обеспечения беспрепятственного доступа к банковскому помещению для людей с ограниченными возможностями и маломобильных групп населения. Предусмотрены меры, такие как улучшение архитектурной среды, безопасность путей движения и предоставление информации для ориентирования. Проект не влияет на условия других групп населения в помещении банка. В итоге, после реализации проекта, инвалиды смогут свободно перемещаться внутри помещений банка, а также получать необходимую информацию и услуги.

Закажите проект прямо сейчас!

Выделите опечатку и нажмите Ctrl + Enter, чтобы отправить сообщение об ошибке.