Работаем по всей России

Адаптация помещений АО "Альфа-Банк" в городе Набережные Челны

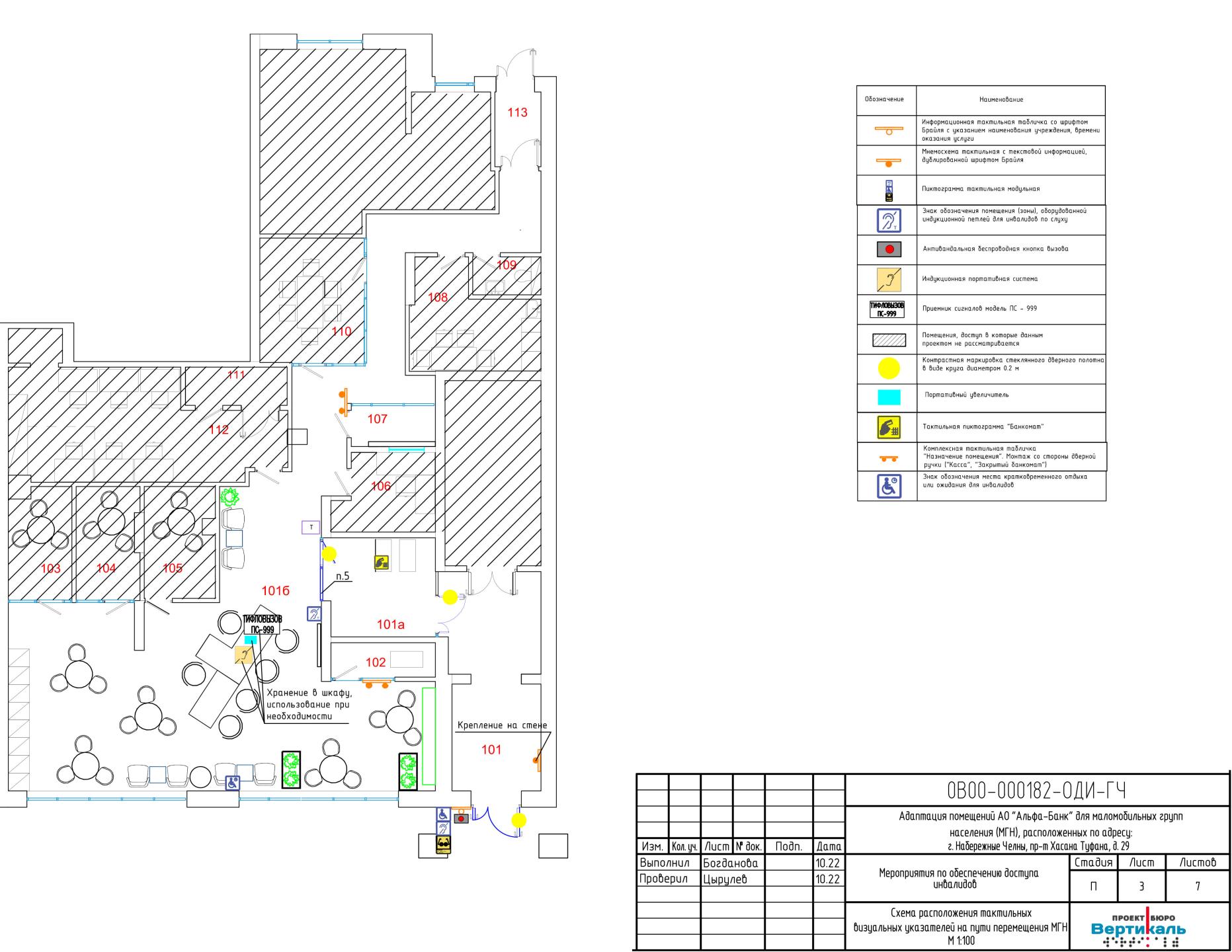
Данный проект разработан с целью обеспечения легкого доступа к помещениям банка для людей с ограниченными возможностями и маломобильных групп населения (МГН) на основе концепции "разумного приспособления". Проект осуществляется в отношении существующего помещения банка, которое находится по адресу: г. Набережные Челны, пр-т Хасана Туфана, д. 29б.

Разработка проектной документации основана на следующих исходных данных:

  • техническом задании на проектирование;
  • предоставленной заказчиком информации;
  • результатов проведенного обследования;
  • требованиях действующих строительных норм и правил.

В рамках проекта предусмотрены комплексные мероприятия по улучшению качества архитектурной среды с соблюдением следующих аспектов:

  1. Обеспечение доступности мест назначения по кратчайшему пути и безбарьерного перемещения внутри помещений банка.
  2. Обеспечение безопасности путей передвижения и обслуживающих зон.
  3. Предоставление полноценной и качественной информации, необходимой МГН для ориентации в пространстве, использования оборудования (включая самообслуживание), получения услуг и других возможностей.

После реализации предусмотренных проектом мероприятий инвалиды групп мобильности М1-М4 смогут свободно передвигаться от входа в здание до внутренних помещений. Для облегчения ориентации МГН на путях перемещения будут установлены тактильные настенные указатели.

Закажите проект прямо сейчас!

Выделите опечатку и нажмите Ctrl + Enter, чтобы отправить сообщение об ошибке.