Работаем по всей России

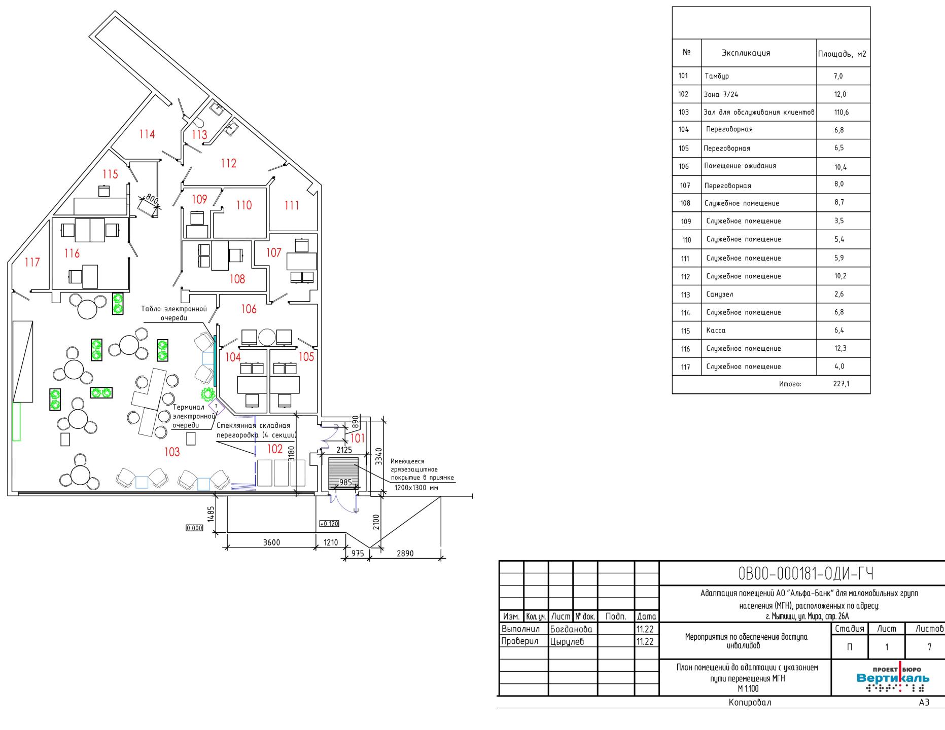
Адаптация помещений АО "Альфа-Банк" в городе Мытищи

В соответствии с СП 59.13330.2020 "Технические средства информирования, ориентирования и сигнализации в местах массового посещения", в проекте предусмотрены тактильные настенные указатели на путях перемещения МГН, которые обеспечивают посетителям объекта доступную и однозначную информацию о размещении и функциональных элементах, а также обеспечивают надежную ориентацию в пространстве.

В рамках проекта предусмотрены следующие тактильные визуальные указатели:

  1. Тактильная визуальная табличка с дублированием информации по системе Брайля размером 100х300 мм. Табличка устанавливается на нерабочей створке входной двери на высоте от 1,2 м до 1,6 м от уровня крыльца и на 100 мм от окантовки створки со стороны дверной ручки на рабочей створке.

  2. Тактильная мнемосхема с планом и назначением помещений размером 470х610 мм, дублирующая информацию тактильным плоскопечатным способом по системе Брайля. Мнемосхема размещается в тамбуре на стене с правой стороны.

  3. Знак доступности объекта для инвалидов, передвигающихся на креслах-колясках, размером 150х150 мм. Располагается рядом со входом на объект.

  4. Знак доступности объекта для инвалидов по слуху, размером 150х150 мм. Располагается рядом со входом на объект.

  5. Знак доступности объекта для инвалидов по зрению, размером 150х200 мм. Располагается рядом со входом на объект. Эти три знака объединены в модуль.

  6. Знак обозначения помещения (зоны), оборудованной индукционной петлей для инвалидов по слуху, размером 150х150 мм. Располагается перед входом в помещение или рядом с зоной, в которых установлена индукционная петля для инвалидов по слуху.

  7. Тактильная пиктограмма "Банкомат" размером 150х150 мм. Располагается в непосредственной близости с доступным банкоматом.

  8. Знак обозначения места кратковременного отдыха или ожидания для инвалидов, размером 150х150 мм. Располагается рядом со специально выделенными зонами общественных пространств и помещениями, оборудованными для кратковременного отдыха инвалидов.

  9. Пиктограмма с дублированием информации по системе Брайля на специальной наклонной площадке "Кнопка вызова персонала для оказания ситуационной помощи".

  10. Знак "Выход", располагается у эвакуационного выхода со стороны дверной ручки рабочей створки двери.

Тактильные визуальные указатели монтируются на высоте 1,2-1,6 м от уровня пешеходной поверхности в соответствии с проектом.

Кроме того, в соответствии с пунктом 6.1.6 СП 59.13330.2020, входные двери, доступные для инвалидов и МГН, должны быть хорошо опознаваемы и иметь знак, указывающий на доступность здания. В проекте предусмотрена контрастная маркировка на прозрачных рабочих створках входной двери и двери из тамбура в зону 7/24 в форме круга диаметром 0,2 м, расположенная на двух уровнях - 0,9 м и 1,4 м. Также предусмотрена контрастная маркировка на прозрачных секциях складной перегородки, отделяющей зону 7/24 от зала обслуживания клиентов, в форме прямоугольника высотой не менее 0,1 м и шириной не менее 0,2 м. Расположение контрастной маркировки предусматривается на двух уровнях: 0,90-1,0 м и 1,3-1,4 м. Ручка входной двери из металла с белым покрытием заменяется рекомендуемой ручкой красного цвета, что соответствует требованиям СП 59.13330.29020. То же самое относится к ручке двери из тамбура в зону 7/24.

Проект предусматривает использование тактильных настенных указателей на путях перемещения в МГН для обеспечения посетителям объекта надежной ориентации и получения информации о местах и объектах посещения. Указатели различных типов, такие как таблички, мнемосхемы, знаки доступности и пиктограммы, установлены с учетом требований по размерам и расположению. Контрастная маркировка и тактильные предупреждающие указатели также предусмотрены для обеспечения хорошей видимости и опознаваемости дверей и перегородок. В целом, предложенные тактильные настенные указатели соответствуют требованиям и позволят посетителям удобно и безопасно перемещаться по объекту.

Закажите проект прямо сейчас!

Выделите опечатку и нажмите Ctrl + Enter, чтобы отправить сообщение об ошибке.