Адаптация помещений АО "Альфа-Банк" в город Москва 5 отделений
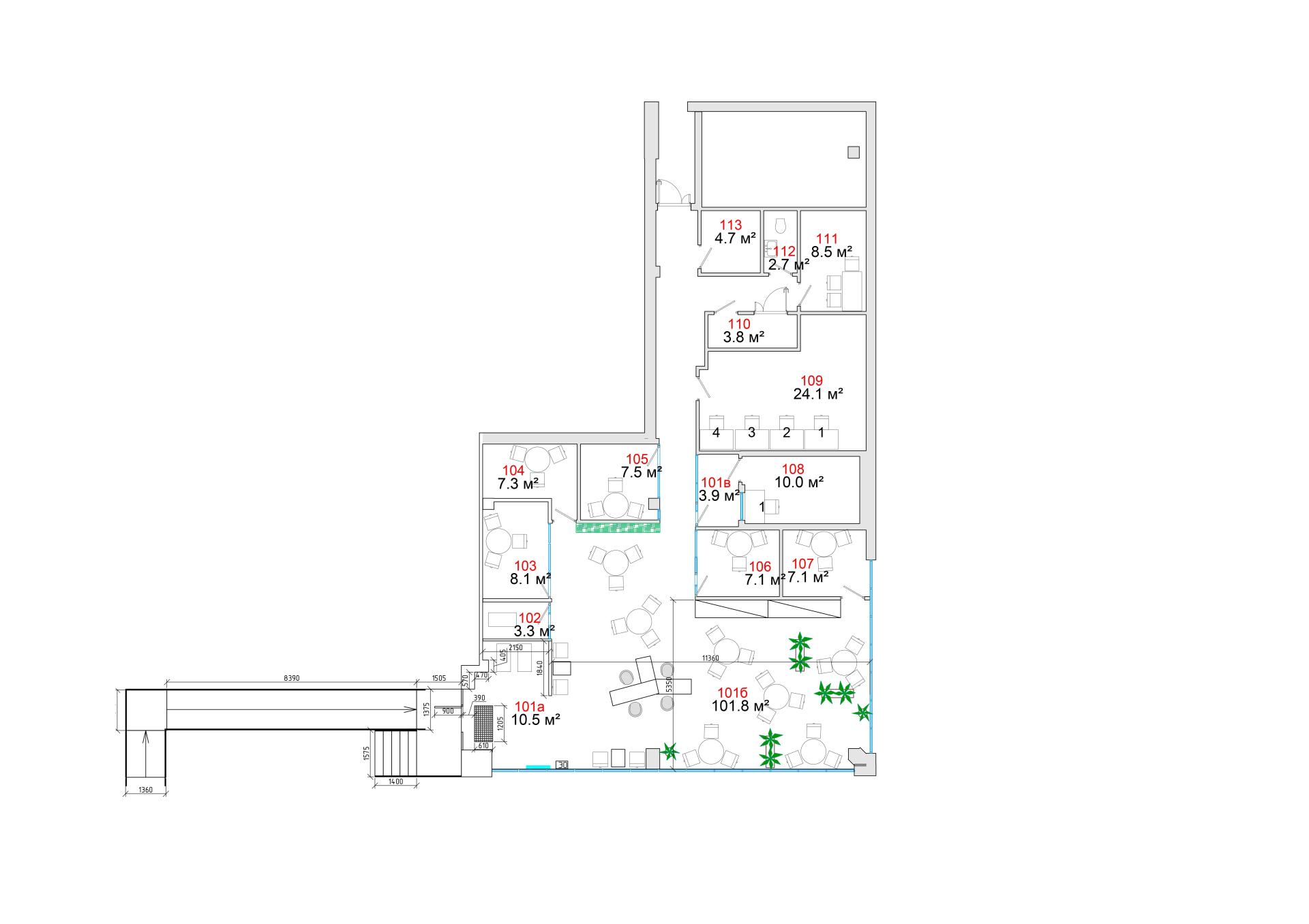
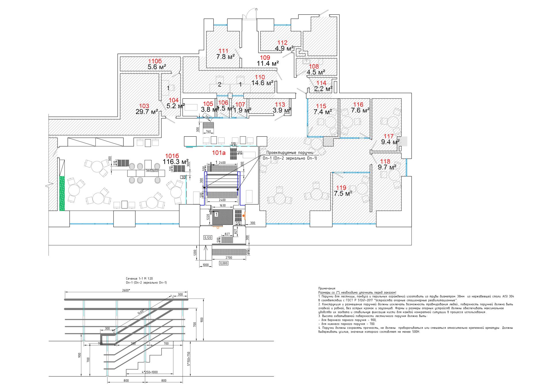
Представленный проект разработан с целью обеспечения беспрепятственного доступа к помещениям банка для людей с ограниченными возможностями и маломобильных групп населения (МГН) по принципу "разумного приспособления". Проектирование и адаптация эксплуатируемых помещений банка выполняется для нескольких адресов в г. Москва, включая ул. Генерала Белова, д.35, ул. Тверская, д28, к.1, пр-т Лермонтовский, д.10, к.1, ул. Лескова, д.3Г, ш. Хорошевское, д.35, к1.
В проектной документации учитываются техническое задание на проектирование, исходные данные, предоставленные заказчиком, результаты обследования и соблюдаются действующие строительные нормы и правила.
Проект предусматривает комплекс мероприятий, направленных на повышение качества архитектурной среды, с учетом следующих аспектов:
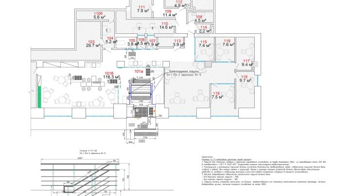
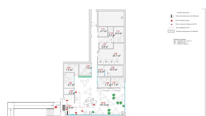
- Обеспечение досягаемости целевых мест посещения кратчайшим путем и беспрепятственного перемещения внутри помещений банка.
- Обеспечение безопасности путей движения и мест обслуживания.
- Предоставление МГН полноценной и качественной информации для ориентирования в пространстве, использования оборудования (включая самообслуживание) и получения услуг.
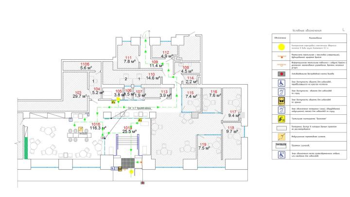
В соответствии с СП 59.13330.2020 "Технические средства информирования, ориентирования и сигнализации в местах массового посещения", проект предусматривает установку тактильных настенных указателей на путях перемещения МГН. Эти указатели предназначены для обеспечения посетителям объекта однозначной информации о местах посещения, размещении функциональных элементов, ассортименте услуг и обеспечения надежной ориентации в пространстве.
Согласно проекту, предусмотрены следующие тактильные визуальные указатели:
- 
Тактильная визуальная табличка с дублированием информации по системе Брайля размером 100х300 мм. Она содержит наименование учреждения и режим работы. Табличка устанавливается перед входной дверью со стороны дверной ручки (рабочей створки). 
- 
Тактильная мнемосхема с планом и назначением помещений размером 470 х 610 мм. Информация на мнемосхеме также дублируется тактильным плоскопечатным способом по системе Брайля. Мнемосхема размещается на стене. 
- 
Знак доступности объекта для инвалидов по зрению размером 150х200 мм. Располагается рядом со входом на объект. 
- 
Знак доступности объекта для инвалидов по слуху размером 150х150 мм. Располагается рядом со входом на объект. 
- 
Знак обозначения помещения (зоны), оборудованной индукционной петлей для инвалидов по слуху размером 150х150 мм. Располагается перед входом в помещение или рядом с зоной, где установлена индукционная петля для инвалидов по слуху. 
- 
Тактильная пиктограмма "Банкомат" размером 150 х 150 мм. Располагается непосредственно рядом с доступным банкоматом. 
В проекте разработана концепция обеспечения беспрепятственного доступа к помещениям банка для людей с ограниченными возможностями и маломобильных групп населения на принципе "разумного приспособления". Проект предусматривает комплекс мероприятий, направленных на повышение качества архитектурной среды и обеспечение безбарьерного перемещения МГН внутри банка.
Особое внимание уделено использованию тактильных настенных указателей на путях перемещения МГН. Установка тактильных визуальных указателей, таких как таблички и мнемосхемы с дублированием информации по системе Брайля, а также знаков доступности и пиктограмм, позволит инвалидам и лицам с ограниченными возможностями получать необходимую информацию и легко ориентироваться в пространстве банка.
Проект разработан с учетом действующих строительных норм и правил, а также рекомендаций, изложенных в СП 59.13330.2020 "Технические средства информирования, ориентирования и сигнализации в местах массового посещения". Тактильные настенные указатели на путях перемещения МГН являются эффективным средством обеспечения доступности и улучшения условий перемещения для лиц с ограниченными возможностями.
Реализация предложенных мероприятий по установке тактильных визуальных указателей в соответствии с проектной документацией значительно повысит уровень доступности и комфорта для инвалидов и лиц с ограниченными возможностями при посещении банка. Эти меры способствуют созданию более инклюзивной и дружественной среды, соответствующей потребностям различных групп населения.
 
 
 
 
 
 
 
 
 
