Работаем по всей России

Адаптация помещений АО "Альфа-Банк" в городе Липецк 2 отделения

Инструктаж по обеспечению доступности для инвалидов представляет собой процесс ознакомления персонала с основными принципами и требованиями, направленными на обеспечение равных возможностей и удобства использования объектов и услуг инвалидами. Этот инструктаж включает обучение персонала специфическим навыкам и знаниям, необходимым для обслуживания людей с различными ограничениями, а также предоставления им поддержки и помощи при необходимости.

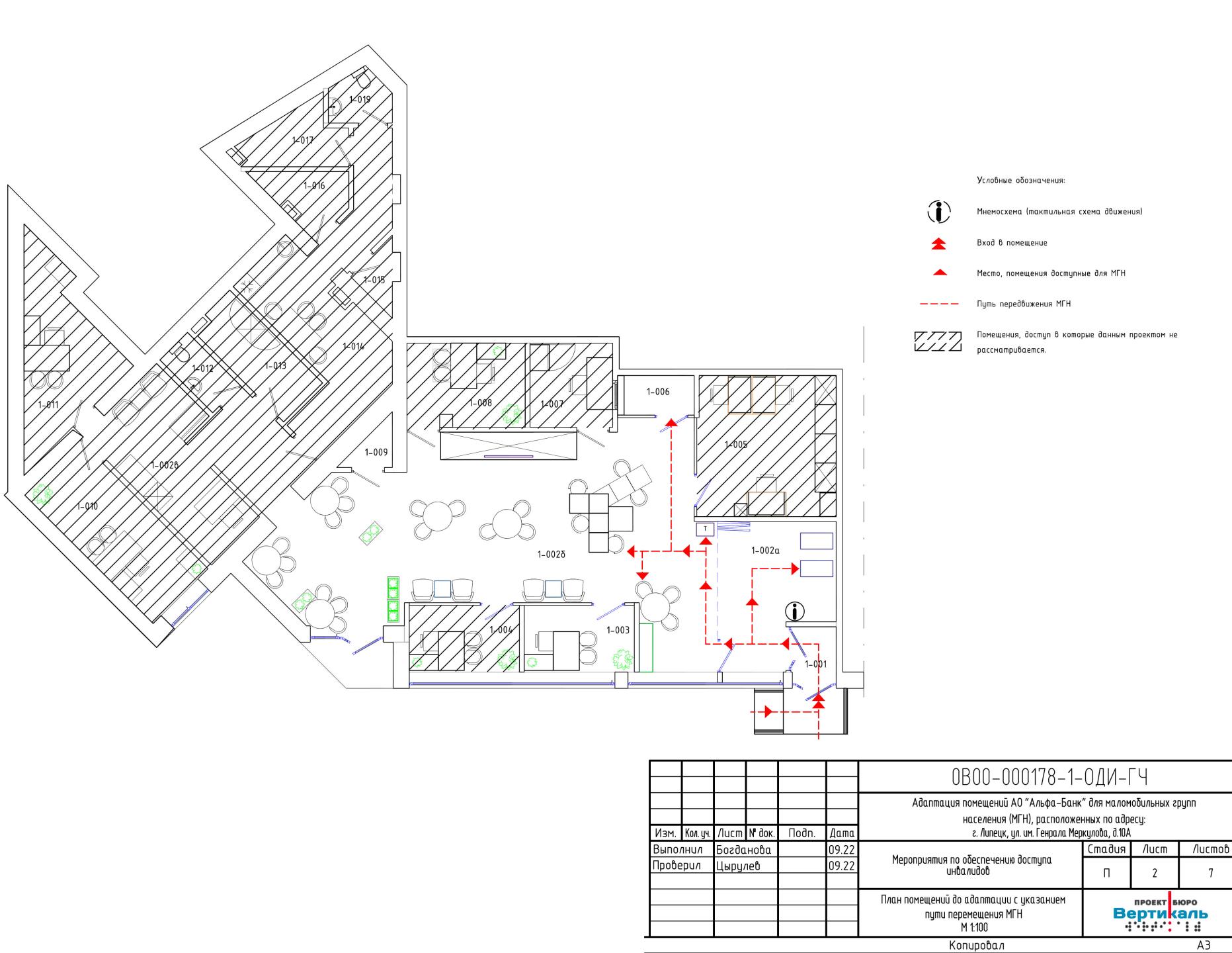
Дорожная карта обеспечения доступности для инвалидов является планом действий, разработанным с целью пошагового реализации мер по созданию барьеров доступности для инвалидов. Эта карта включает в себя оценку текущего состояния доступности объектов и услуг, установление приоритетных областей для внесения изменений, разработку конкретных мероприятий и контроль за их выполнением. Дорожная карта служит основой для планирования и реализации мер, направленных на обеспечение равных возможностей и удобства использования объектов и услуг инвалидами.

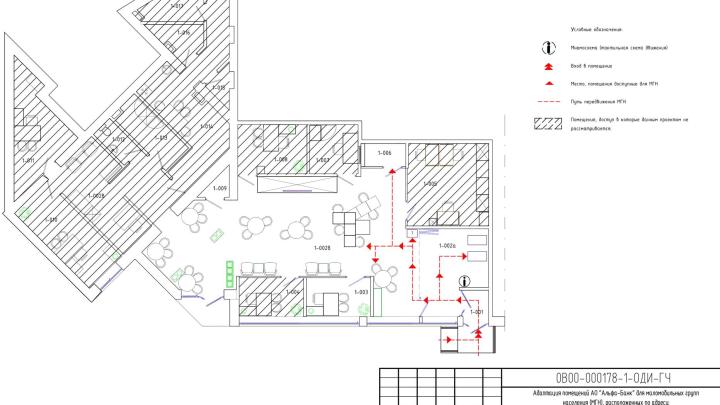
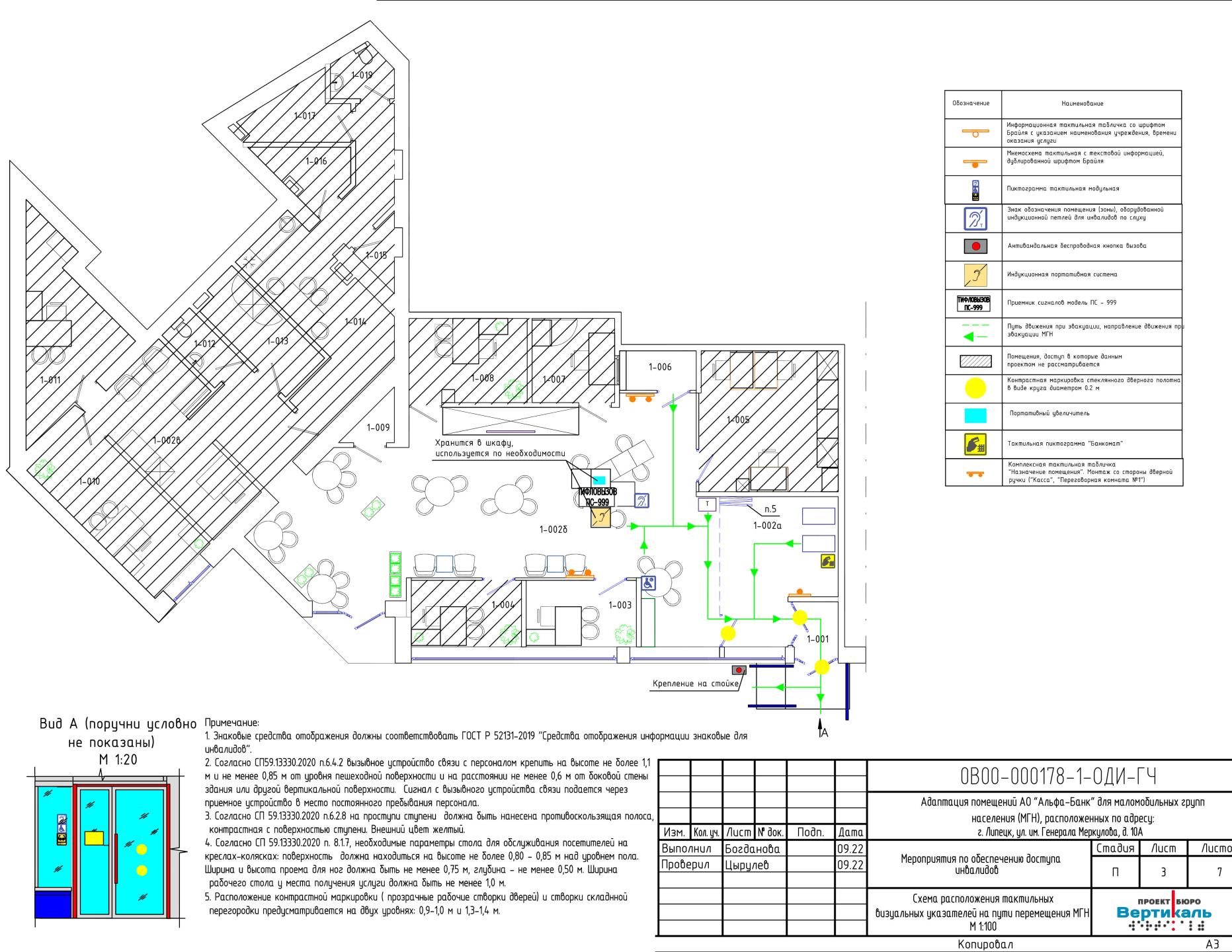
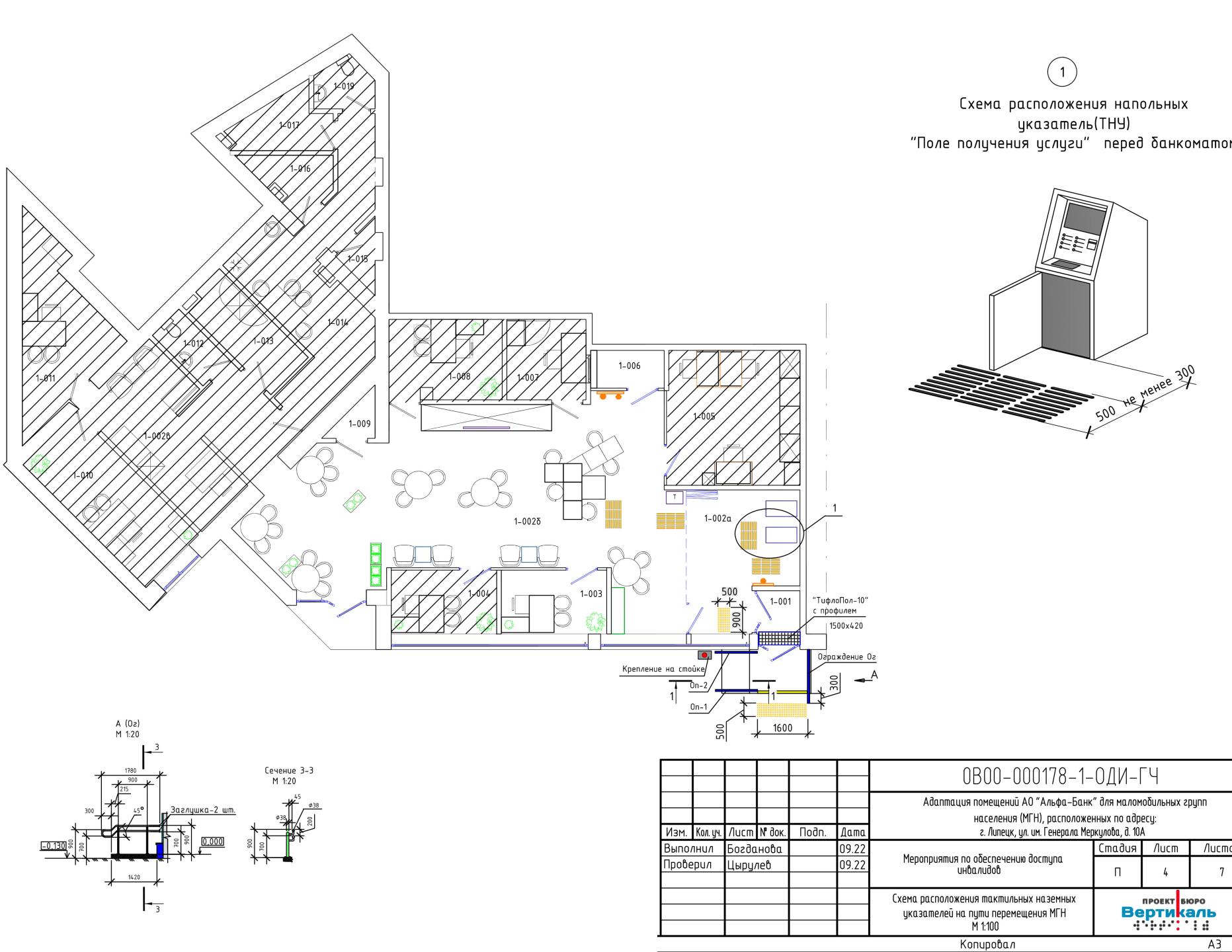
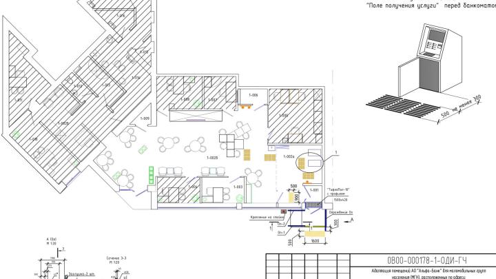
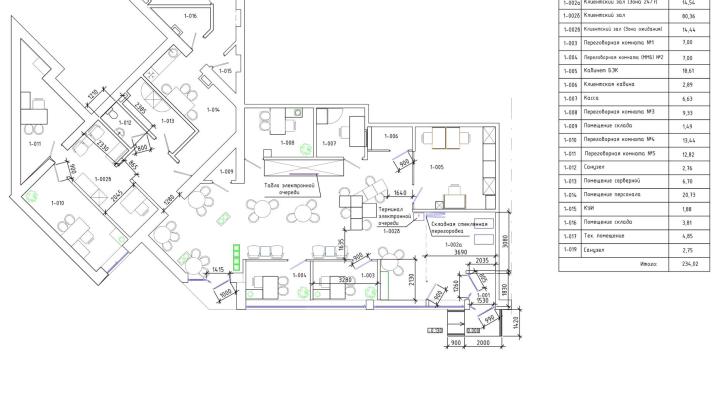
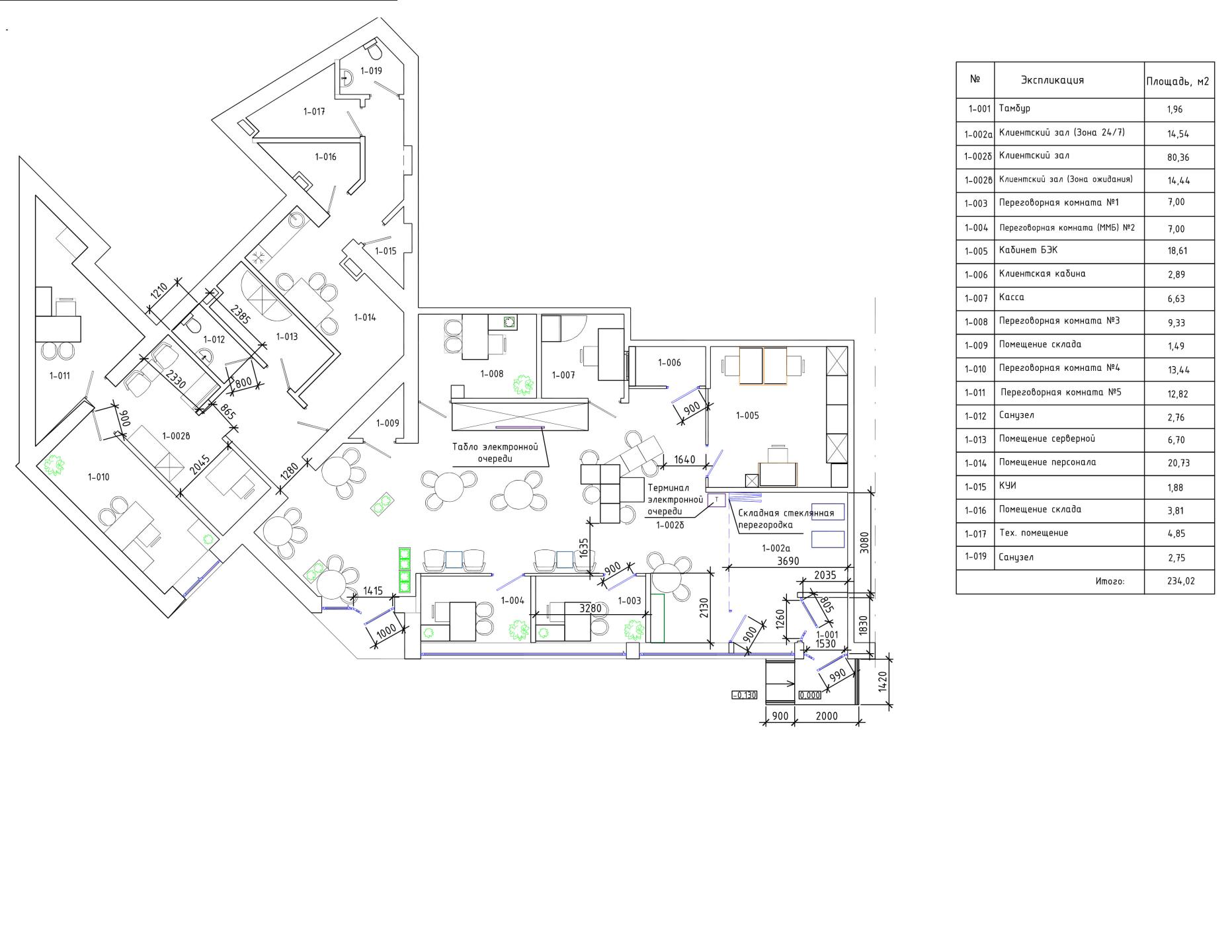
Обеспечение доступности объектов и услуг для инвалидов включает в себя принятие мер по устранению архитектурных, коммуникационных, информационных и других барьеров, которые могут препятствовать полноценному использованию объектов и услуг людьми с ограниченными возможностями. Это может включать установку специального оборудования, реконструкцию помещений, обучение персонала, предоставление альтернативных форм коммуникации и другие меры, направленные на обеспечение равного доступа к объектам и услугам для всех людей, включая инвалидов.

Закажите проект прямо сейчас!

Выделите опечатку и нажмите Ctrl + Enter, чтобы отправить сообщение об ошибке.