Работаем по всей России

Адаптация помещений АО "Альфа-Банк" в городе Красноярск

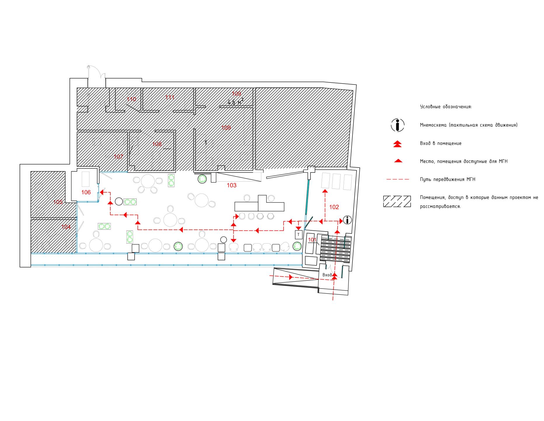
Данный проект был разработан с целью обеспечить беспрепятственный доступ для людей с ограниченными возможностями и маломобильных групп населения (МГН) в помещения банка на проспекте имени газеты "Красноярский рабочий", 199, город Красноярск. Проектная документация основывается на следующих исходных данных: техническом задании на проектирование, предоставленных заказчиком, результатах обследования и действующих строительных нормах и правилах.

В рамках проекта предусмотрен комплекс мероприятий, направленных на улучшение архитектурной среды с соблюдением следующих принципов:

  1. обеспечение доступности целевых мест по кратчайшему пути и свободного перемещения внутри помещений банка;
  2. обеспечение безопасности путей движения и обслуживающих зон;
  3. предоставление полноценной и качественной информации МГН, необходимой для ориентации в пространстве, использования оборудования (включая самообслуживание), получения услуг и т.д.

Проектные решения не ограничивают условия для других групп населения, находящихся в помещении банка. После реализации предложенных мероприятий будет обеспечена возможность беспрепятственного перемещения инвалидов групп мобильности М1-М4 от входа в здание до внутренних помещений. Также будут установлены тактильные настенные указатели для направления МГН.

Мероприятия для людей с дефектом слуха требуют специальных индукционных систем для улучшения восприятия информации. Индукционные системы используют магнитное поле для передачи звукового сигнала и обеспечивают ясное воспроизведение звуков с помощью наушников. Установка портативной индукционной петли VERT-1a на рабочем столе обеспечивает покрытие площадью 1,2 м2 в диапазоне 1 кГц. Индукционные системы предназначены для использования внутри помещений и требуют обслуживания квалифицированным персоналом. При использовании системы слабослышащим необходимо переключить свой слуховой аппарат в режим индукционной катушки "Т".

Закажите проект прямо сейчас!

Выделите опечатку и нажмите Ctrl + Enter, чтобы отправить сообщение об ошибке.