Работаем по всей России

Адаптация помещений АО «Альфа-Банк» в г. Краснодар

Этот проект разработан для обеспечения беспрепятственного доступа к помещениям банка для людей с ограниченными возможностями и маломобильных групп населения.

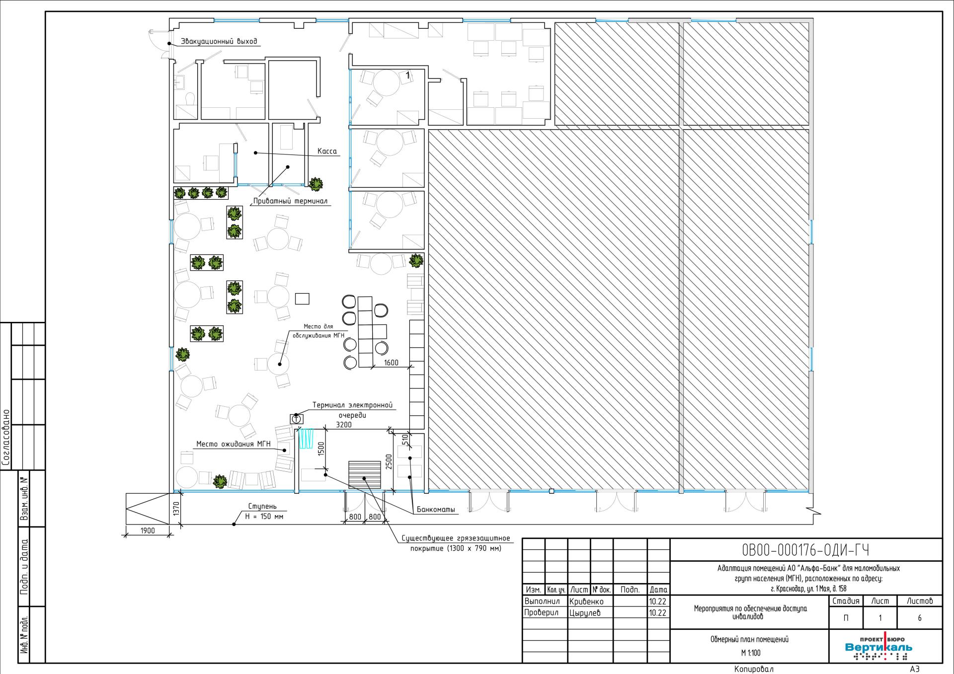
Проект предусматривает адаптацию эксплуатируемого помещения банка в городе Краснодаре. В основе проектной документации лежат техническое задание на проектирование, предоставленные заказчиком и результаты обследования, а также действующие строительные нормы и правила.

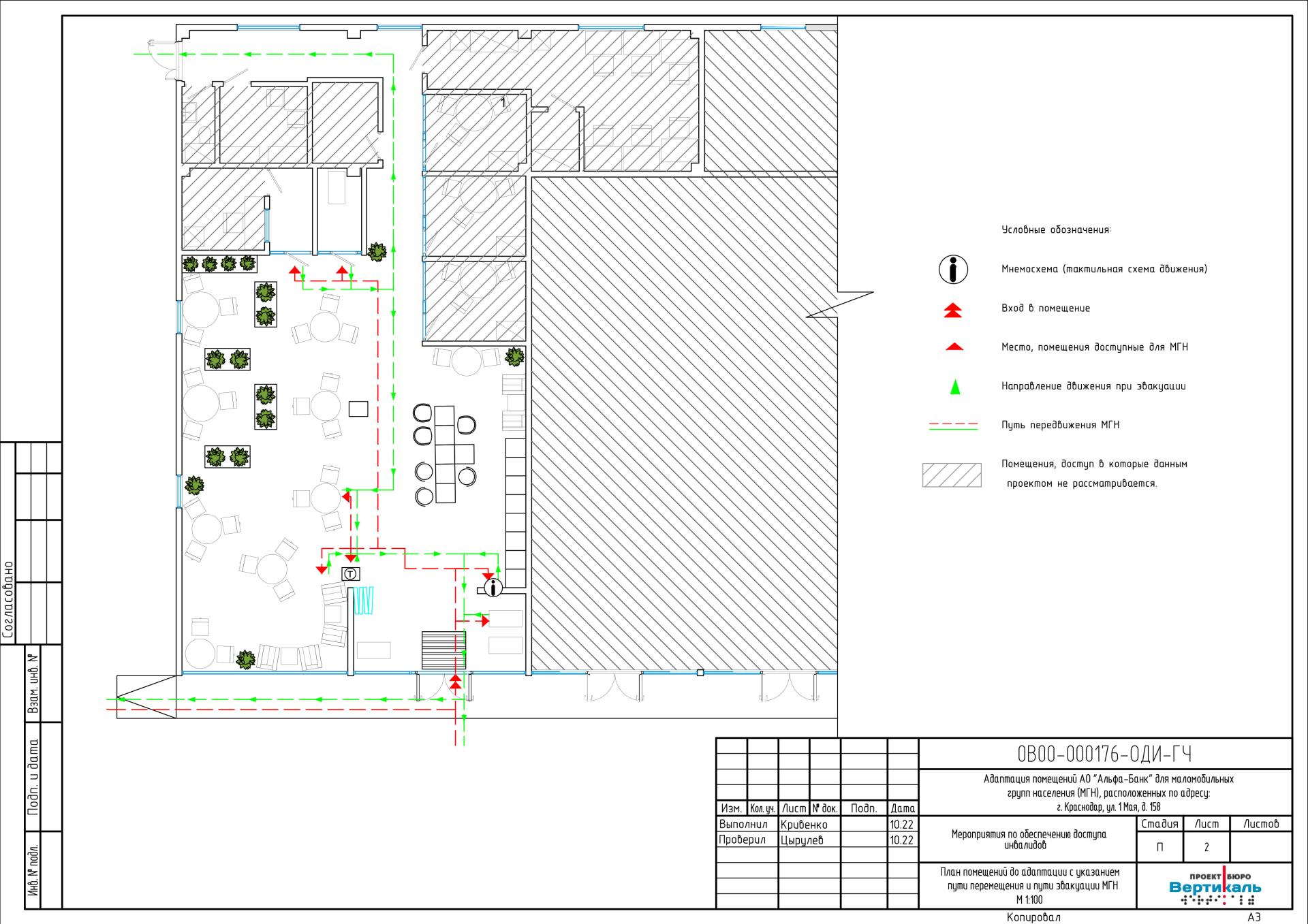
Проект включает комплекс мероприятий, направленных на обеспечение кратчайшего пути до целевых мест посещения и беспрепятственного перемещения внутри помещений банка, безопасности путей движения и мест обслуживания, а также предоставление полноценной и качественной информации, необходимой для ориентирования и использования оборудования.

Проектные решения не ограничивают условия жизнедеятельности и возможности других групп населения. После реализации проекта инвалиды групп мобильности М1-М4 смогут безбарьерно перемещаться от входа здания к внутренним помещениям банка.

В данном проекте предусмотрены мероприятия по адаптации помещений банка для людей с нарушением зрения. Одним из таких мероприятий является установка тактильных настенных указателей на путях перемещения маломобильных групп населения (МГН). В соответствии с требованиями СП 59.13330.2020, технические средства информирования и ориентирования в местах массового посещения должны обеспечивать посетителям возможность получения однозначной информации о объектах, местах посещения, размещении функциональных элементов, а также об ассортименте услуг и ориентации в пространстве.

Проектом предусмотрены следующие тактильные настенные указатели:

  1. Тактильная визуальная табличка с дублированием информации в системе Брайля размером 100x300 мм, содержащая наименование учреждения и режим работы. Она устанавливается перед входной дверью со стороны дверной ручки.
  2. Тактильная мнемосхема с планом помещений и их назначением, также содержащая информацию в системе Брайля размером 470x610 мм. Мнемосхема размещается на стене.
  3. Знак "Доступность входа для инвалидов" категорий М1-М4.
  4. Знак обозначения помещения с индукционной петлей для инвалидов по слуху размером 150x150 мм. Он размещается перед входом в соответствующее помещение или рядом с зоной, где установлена индукционная петля для инвалидов по слуху.
  5. Тактильная пиктограмма "Банкомат" размером 150x150 мм, размещаемая рядом с доступным банкоматом.
  6. Знак обозначения места кратковременного отдыха или ожидания для инвалидов размером 150x150 мм, располагаемый рядом со специально выделенными зонами отдыха.

Согласно ГОСТ Р 52131-2019, знак доступности объекта для инвалидов по зрению должен быть тактильно-визуальным и устанавливаться перед входом в здание или помещение, рядом с входной дверью, на стене со стороны дверной ручки, на расстоянии 0,1 м от наличника. Если присутствует информационная табличка с названием и режимом работы объекта, знак размещается после нее на том же уровне. Высота нижнего края тактильно-визуальных указателей и табличек должна составлять 1,3 м от уровня поверхности.

Закажите проект прямо сейчас!

Выделите опечатку и нажмите Ctrl + Enter, чтобы отправить сообщение об ошибке.