Работаем по всей России

Адаптация помещений АО «Альфа-Банк» в г. Кострома

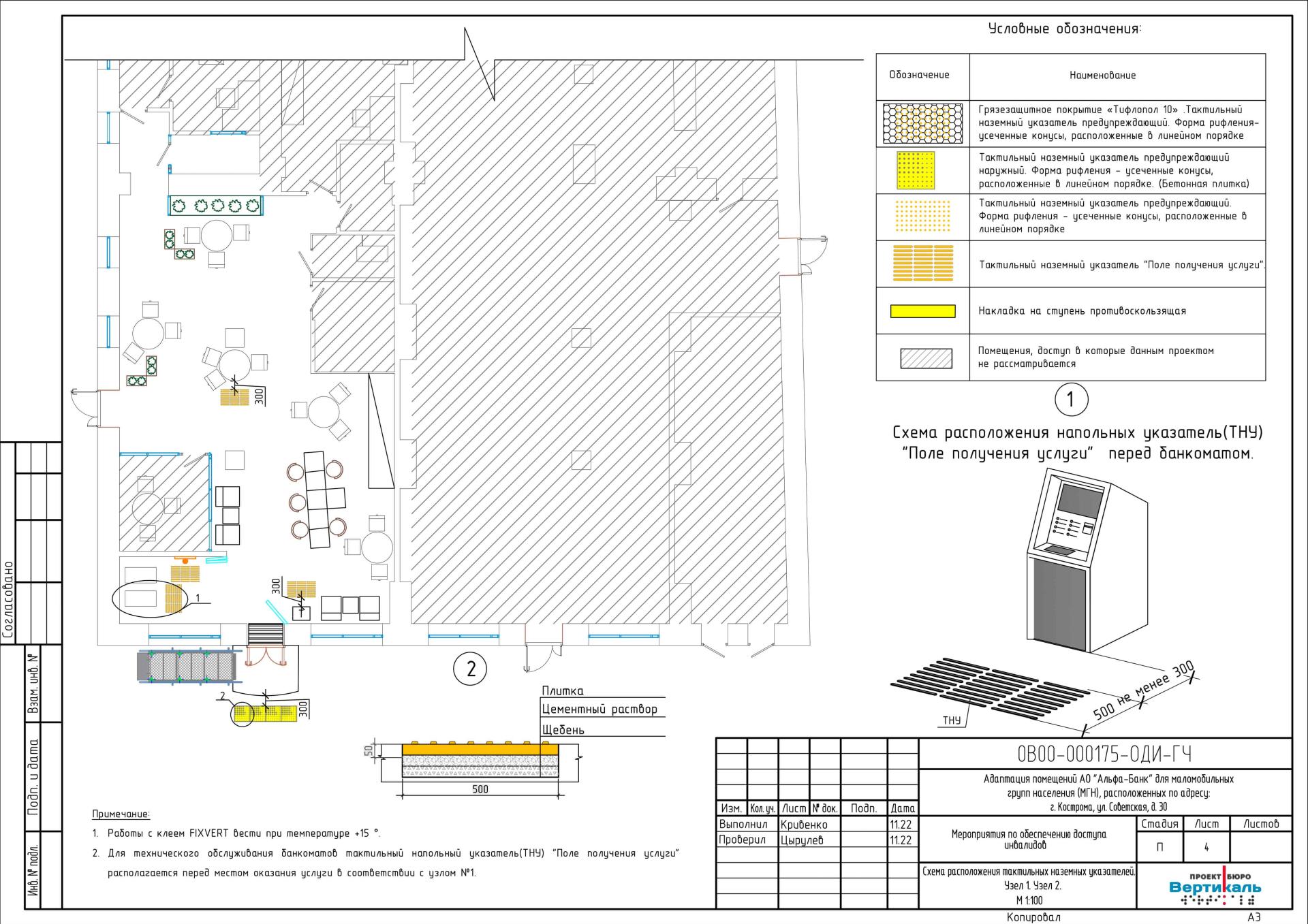
Данный проект разрабатывается с целью обеспечения беспрепятственного доступа для людей с ограниченными возможностями и маломобильных групп населения (МГН) в банковском помещении по адресу: г. Кострома, ул. Советская, д. 30. Мы стремимся осуществить эту адаптацию на основе принципа "разумного приспособления", что означает, что помещение будет преобразовано и настроено таким образом, чтобы удовлетворить потребности и обеспечить удобство пользователей с ограниченными возможностями.

Проектная документация для данного проекта была разработана на основании технического задания на проектирование, предоставленных заказчиком и результатов обследования, а также действующих строительных норм и правил. В проекте были предусмотрены меры для улучшения качества архитектурной среды, при этом обеспечивая досягаемость мест целевого посещения кратчайшим путем, безопасность путей движения, а также мест обслуживания, и своевременное получение МГН полноценной и качественной информации, позволяющей ориентироваться в пространстве, использовать оборудование и получать услуги и т.д. Принятые проектные решения не ограничивают условия жизнедеятельности и не ущемляют возможности других групп населения, находящихся в помещении банка. После реализации проектных мероприятий будет обеспечиваться возможность безбарьерного следования инвалидов групп мобильности М1-М4 от входа здания к внутренним помещениям.

Данное здание относится к объекту культурного наследия на основании Приказа №89 от 24.08.2018 года об утверждении предмета охраны объекта культурного наследия регионального значения, расположенного по адресу: Костромская область, г. Кострома, ул. Советская, д. 30.

Для адаптации входной группы данного отделения банка, пандус должен быть установлен с уклоном 1:20 и с поручнями на высоте 0,9 и 0,7 м, с расстоянием между поручнями пандуса в пределах 0,9-1,0 м, а также с противоскользящим покрытием в соответствии с требованиями СП 59.13330.2020. Размеры входной группы составляют 2,10 х 1,62 м, а размеры входных дверей – 0,7 м каждая створка. Для доступа в отделение инвалида на кресле-коляске, необходимо открыть обе двери, поскольку замена входных дверей на новые шириной 0,9 м не возможна, так как здание относится к предметам охраны культурного наследия.

Закажите проект прямо сейчас!

Выделите опечатку и нажмите Ctrl + Enter, чтобы отправить сообщение об ошибке.