Работаем по всей России

Адаптация помещений АО "Альфа-Банк" в г. Киров

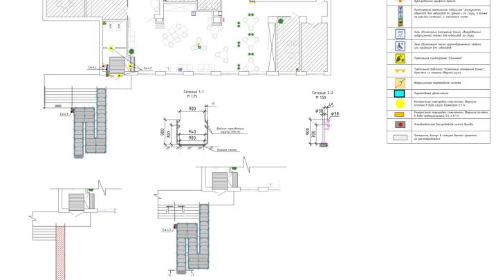
Для обеспечения безопасности и удобства перемещения маломобильных групп населения (МГН), в данном проекте предусмотрены тактильные наземные указатели (ТНУ) на путях перемещения. Они служат предупреждающими знаками и помогают МГН ориентироваться и избегать препятствий. 

Вот основные характеристики указателей, предусмотренных в проекте:

  1. Локальный предупреждающий указатель «Внимание, прямо по ходу движения – лестница»:

    • Глубина указателя: от 500 до 600 мм.
    • Ширина указателя: равна ширине участка лестницы, разрешенного для движения инвалидов.
    • Тип рифления: усеченные конусы, усеченные купола, цилиндры, расположенные в линейном порядке.
    • Расположение: перед нижней ступенью крыльца на расстоянии 300 мм.
    • Покрытие перед нижней ступенью: бетонная плитка желтого цвета.
  2. Предупреждающий указатель «Внимание, прямо по ходу движения – дверь»:

    • Глубина указателя: от 500 до 600 мм.
    • Ширина указателя: равна ширине дверного проема.
    • Тип рифления: усеченные конусы, расположенные в линейном порядке.
    • Расположение:
      • Если дверь открывается на себя: на расстоянии, равном ширине полотна двери.
      • Для раздвижных дверей и дверей, открывающихся от себя: на расстоянии 300 мм от положения двери в закрытом состоянии.
    • Цвет указателя: желтый.
  3. Указатель "Поле получения услуги":

    • Эффективная глубина указателя: от 420 до 510 мм.
    • Тип рифления: девять параллельных продольных рифов.
    • Использование комбинированных тактильных индикаторов.
    • Цвет указателя: желтый.
    • Место расположения: банкомат, терминал электронной очереди и зона обслуживания МГН.

В заключение, проект предусматривает внедрение тактильных наземных указателей, предупреждающих препятствия на путях перемещения в МГН. Эти указатели включают предупреждающие знаки для лестниц, дверей и полей получения услуги. Различные типы рифлений и яркий желтый цвет помогают обеспечить доступность и безопасность для лиц с ограниченными возможностями.

Наконец, важно отметить, что в проекте не предусмотрена адаптация санузла для МГН, так как предполагается, что обслуживание инвалидов в данном отделении не превышает 45 минут. В целом, данный проект направлен на обеспечение доступности и удобства для людей с ограниченными возможностями, создавая условия для самостоятельного и безопасного перемещения и получения услуг в МГН.

Закажите проект прямо сейчас!

Выделите опечатку и нажмите Ctrl + Enter, чтобы отправить сообщение об ошибке.