Работаем по всей России

Адаптация помещений АО "Альфа-Банк" в г. Калининград

Мы специализируемся на проектировании доступной среды для инвалидов, стремясь создать равные возможности для всех пользователей. Наша команда экспертов учитывает физические, аудиальные, зрительные и когнитивные потребности инвалидов при разработке проектов. Мы внедряем инновационные технологии и материалы, чтобы создать безбарьерное окружение, удобное и безопасное для всех.

В рамках проекта предусмотрены комплексные мероприятия по повышению качества архитектурной среды, при соблюдении следующих принципов:

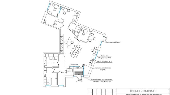
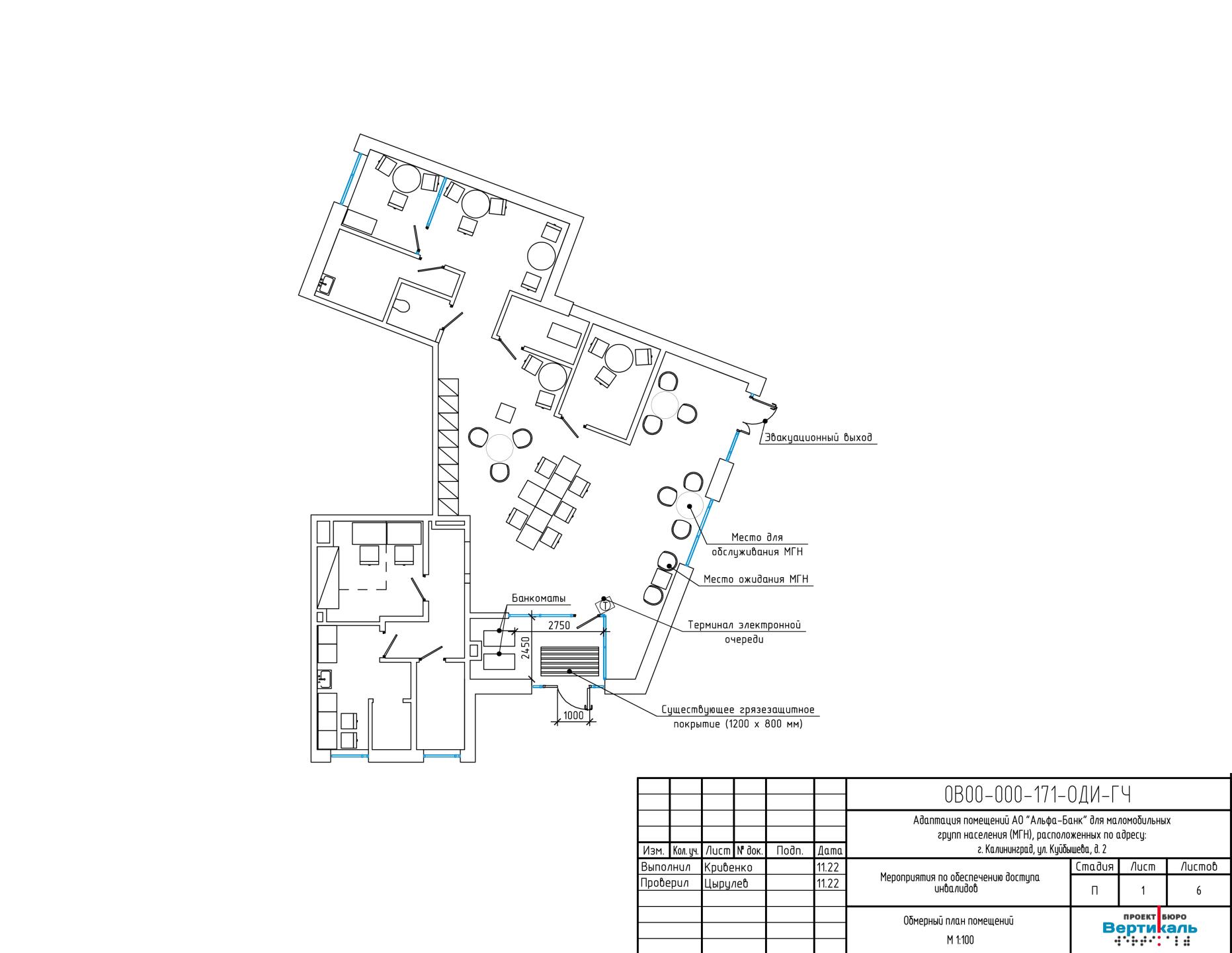
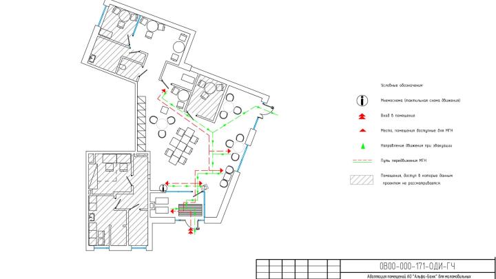
  1. Досягаемость мест целевого посещения кратчайшим путем и обеспечение беспрепятственного перемещения внутри помещений банка.

  2. Обеспечение безопасности путей движения и мест обслуживания.

  3. Предоставление полноценной и качественной информации маломобильным группам населения, позволяющей им ориентироваться в пространстве, использовать оборудование (в том числе для самообслуживания) и получать необходимые услуги.

Важно отметить, что данные проектные решения не ограничивают условия жизнедеятельности и возможности других групп населения, находящихся в помещении банка.

После реализации мероприятий, предусмотренных проектом, будет обеспечиваться возможность безбарьерного передвижения инвалидов групп мобильности М1-М4 от входа здания к внутренним помещениям.

Закажите проект прямо сейчас!

Выделите опечатку и нажмите Ctrl + Enter, чтобы отправить сообщение об ошибке.