Работаем по всей России

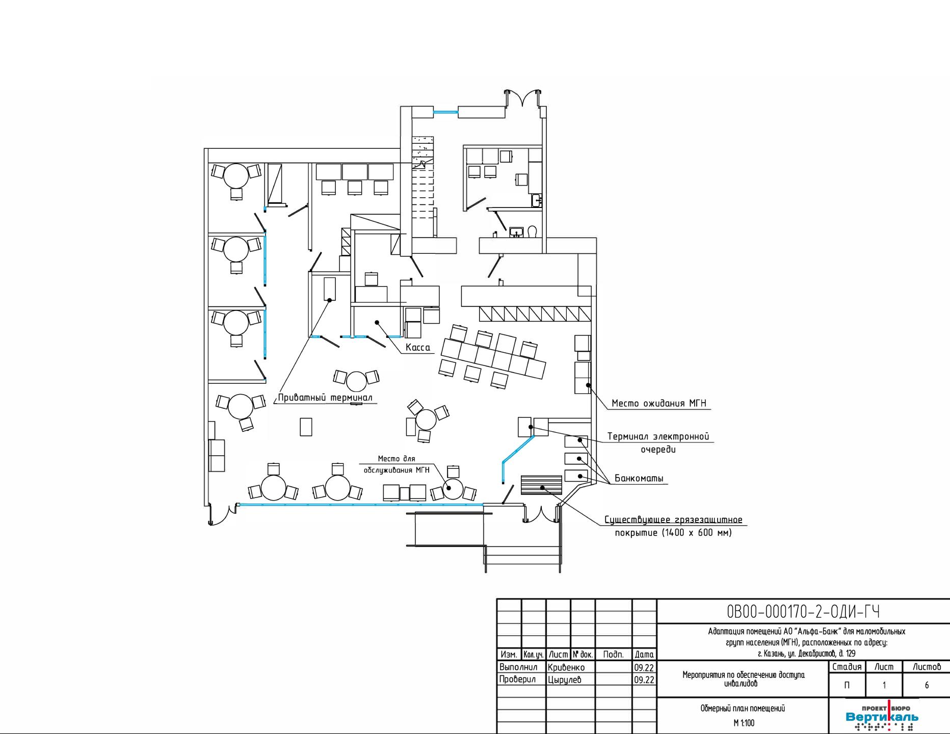
Адаптация помещений АО "Альфа-Банк" в г. Казань

Мы предлагаем услуги по проектированию объектов ОДИ (Обеспечение Доступности Инфраструктуры), которые направлены на создание барьеров в доступе для людей с ограниченными возможностями. Наша команда профессионалов занимается разработкой проектов, которые обеспечивают удобство и комфорт использования объектов для всех пользователей.

Раздел ОДИ является важной частью проектирования, когда речь идет о создании инфраструктуры, такой как торговые центры, офисные здания, общественные учреждения или жилые комплексы. Наша цель - обеспечить доступность и равные возможности для всех, независимо от их физических способностей.

Мы разрабатываем проекты, которые включают в себя широкие двери, подходящие для колясок и инвалидных кресел, а также рациональное использование пространства внутри зданий. Мы также предлагаем решения, учитывающие потребности людей с разными видами ограничений, включая тактильные и визуальные указатели, аудио-системы для информирования и специально оборудованные санузлы.

Наши проекты разрабатываются с учетом норм и стандартов, включая МГН (Межотраслевые государственные нормы), регулирующие проектирование и строительство. Мы обеспечиваем соответствие наших проектов требованиям нормативных документов и стремимся к превосходству в области доступности и инклюзии.

Для получения конкретной информации о стоимости разработки проекта ОДИ и ознакомления с образцами и примерами наших работ, свяжитесь с нами для проведения индивидуальной консультации. Мы готовы помочь вам создать доступную среду, учитывая потребности инвалидов и обеспечивая комфорт и безопасность для всех пользователей.

Закажите проект прямо сейчас!

Выделите опечатку и нажмите Ctrl + Enter, чтобы отправить сообщение об ошибке.