Работаем по всей России

Адаптация помещений АО "Альфа-Банк" в г. Йошкар-Ола

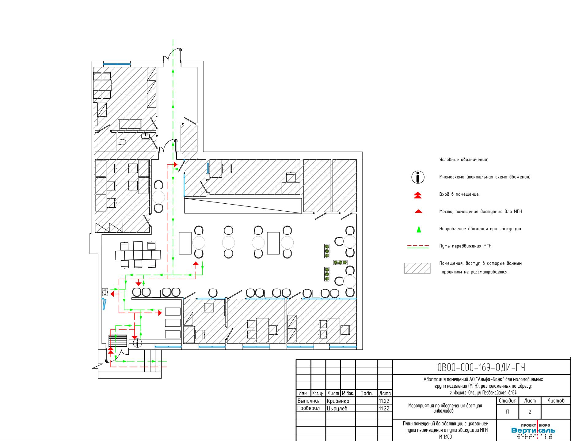
Проектирование ОДИ (объектов доступной инфраструктуры) является процессом разработки и создания объектов, которые обеспечивают доступность и удобство использования для людей с ограниченными возможностями. Раздел ОДИ в проектной документации представляет собой совокупность технических решений, требований и нормативов, которые учитываются при проектировании объектов, чтобы обеспечить их доступность.

В рамках проекта предусмотрены тактильные визуальные указатели на путях перемещения для маломобильных групп населения.

Это включает:

  • Тактильно-визуальную табличку с дублированием информации по системе Брайля (100х300 мм) с указанием наименования учреждения и режима работы, установленную перед входной дверью со стороны дверной ручки (рабочей створки).
  • Тактильную мнемосхему с планом и назначением помещений, также дублирующую информацию в тактильном плоскопечатном способе по системе Брайля (470 х 610 мм). Тактильную мнемосхему следует разместить на стене.
  • Знак "Доступность входа для инвалидов" категорий М1-М4.
  • Знак обозначения помещений (зон), оборудованных индукционной петлей для инвалидов по слуху (150х150 мм). Он должен быть расположен перед входом в помещение или рядом с зоной, где установлена индукционная петля для инвалидов по слуху.
  • Тактильную пиктограмму "Банкомат" (150 х 150 мм), располагаемую рядом с доступным банкоматом.
  • Знак обозначения места кратковременного отдыха или ожидания для инвалидов (150х150 мм). Он должен быть размещен рядом со специально выделенными зонами общественных пространств и помещений для кратковременного отдыха инвалидов.

В целом, эти меры способствуют обеспечению доступности банковских помещений для людей с ограниченными возможностями и маломобильных групп населения, позволяя им перемещаться и ориентироваться в пространстве банка без препятствий.

Закажите проект прямо сейчас!

Выделите опечатку и нажмите Ctrl + Enter, чтобы отправить сообщение об ошибке.