Работаем по всей России

Адаптация помещений АО "Альфа-Банк" в городе Екатеринбург 2 отделения

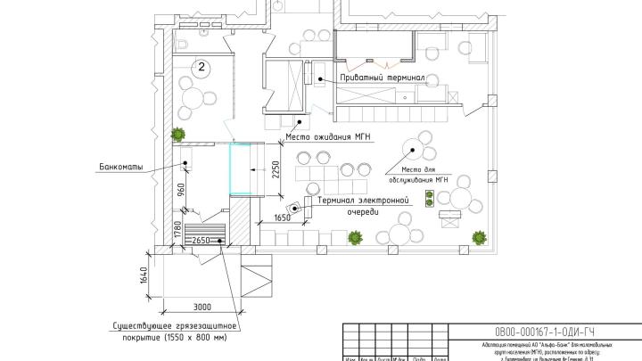
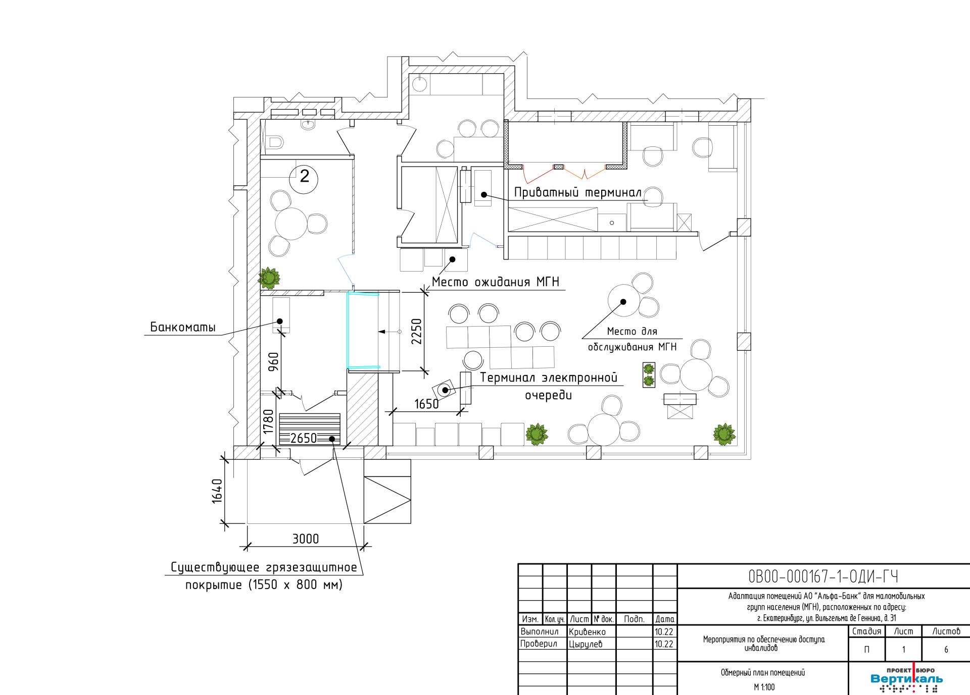
Настоящий проект разработан с целью обеспечения безбарьерного доступа для людей с ограниченными возможностями и маломобильных групп населения (МГН) в помещения банка.

Проект основан на принципе "разумного приспособления" и применяется для адаптации существующего банковского помещения, расположенного по адресу: г. Екатеринбург, ул. Белореченская, д. 12А  и ул. Вильгельма де Геннина, д. 31

Разработка проектной документации основана на следующих источниках информации: техническое задание на проектирование; исходные данные, предоставленные заказчиком; результаты обследования помещения; соблюдение действующих строительных норм и правил.

Проект включает комплекс мероприятий, направленных на улучшение архитектурной среды с соблюдением следующих принципов: Обеспечение доступности места назначения по кратчайшему пути и свободного перемещения внутри банковских помещений. Обеспечение безопасности маршрутов движения и областей обслуживания. Предоставление МГН полноценной и качественной информации для ориентации в пространстве, использования оборудования (включая самообслуживание), получения услуг и т.д.

Проектные решения не ограничивают условия жизнедеятельности других групп населения, находящихся в банковских помещениях.

Закажите проект прямо сейчас!

Выделите опечатку и нажмите Ctrl + Enter, чтобы отправить сообщение об ошибке.