Работаем по всей России

Адаптация помещений АО "Альфа-Банк" для маломобильных групп населения в городе Волгоград 2 отделения

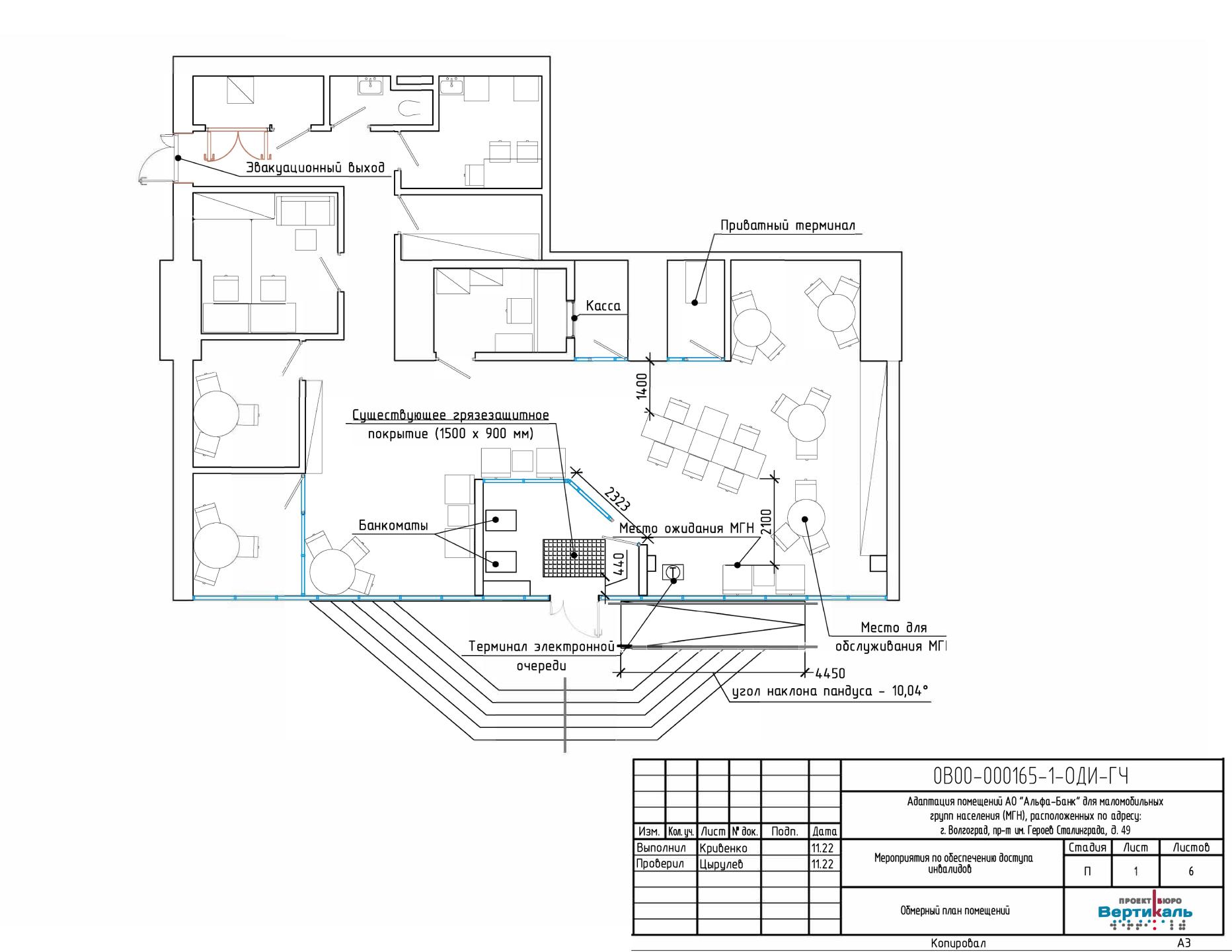
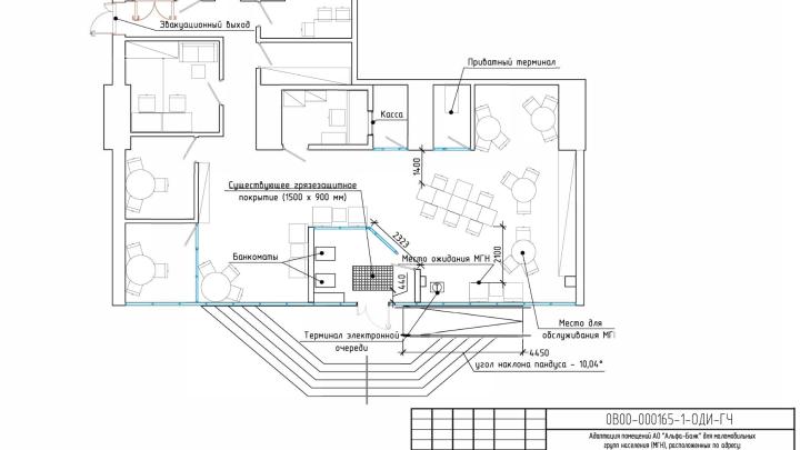
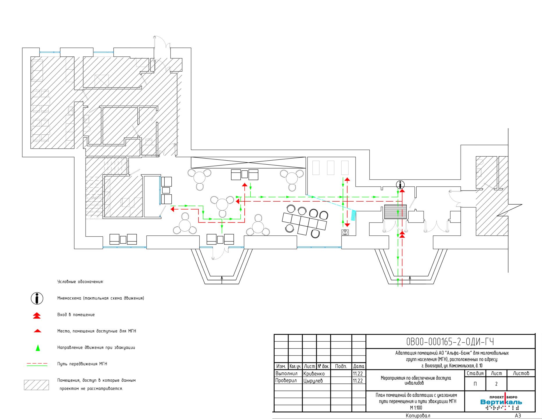
Целью данного проекта является обеспечение свободного доступа к помещениям банка для людей с ограниченными возможностями и маломобильных групп населения (МГН) через использование принципа "разумного приспособления". Проект предусматривает адаптацию существующего банковского помещения, расположенного по адресу: г. Волгоград, пр-т им. Героев Сталинграда, д. 49. и ул. Комсомольская д. 10

Разработка проектной документации основана на следующих источниках информации: техническом задании на проектирование; исходных данных, предоставленных заказчиком; результаты проведенного обследования; действующих строительных нормах и правилах.

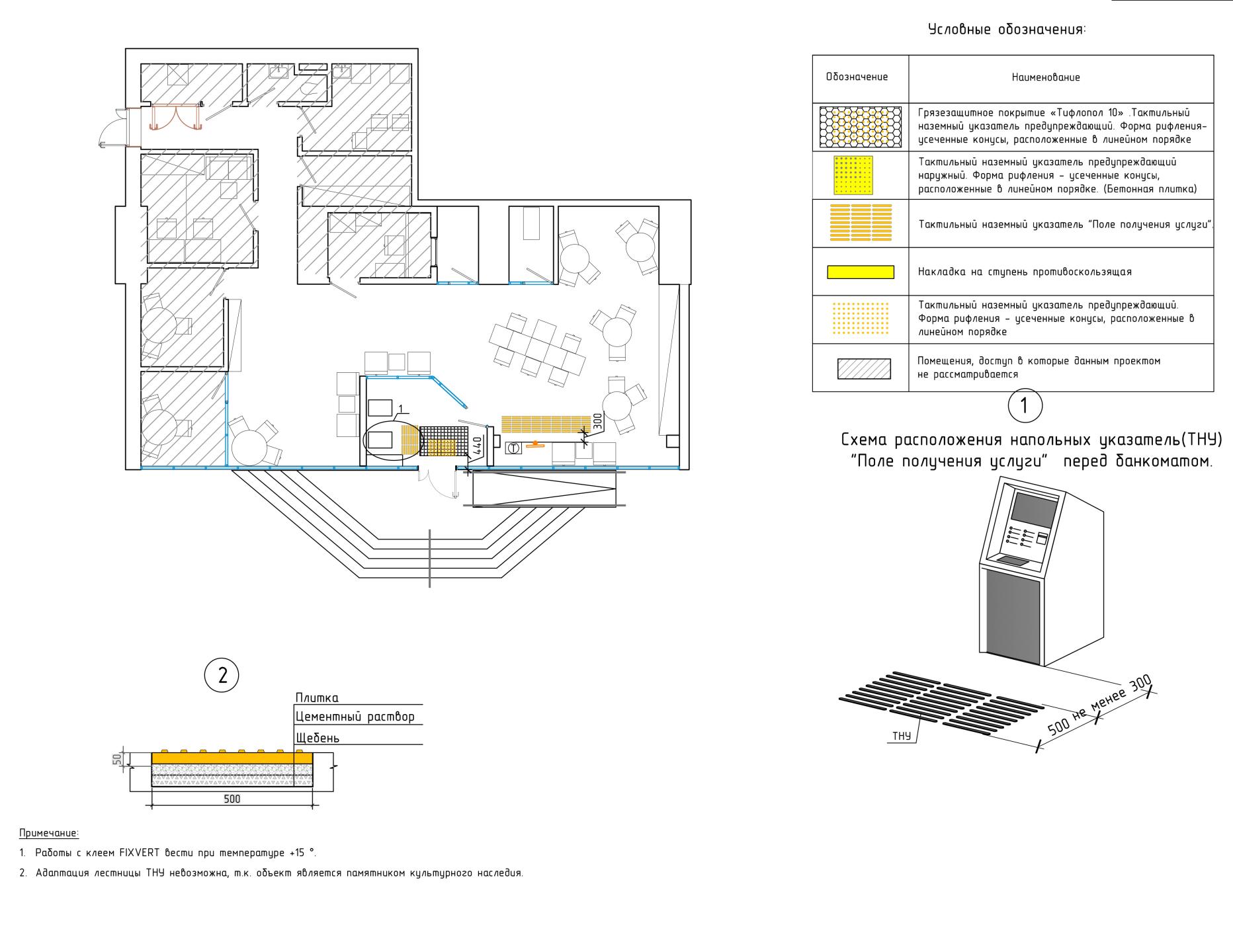
Проект включает в себя комплекс мероприятий, направленных на улучшение качества архитектурной среды при соблюдении следующих принципов: Обеспечение доступности мест назначения путем использования наиболее короткого пути и безбарьерного перемещения внутри банковских помещений. Обеспечение безопасности путей движения и зон обслуживания. Предоставление МГН своевременной и полноценной информации, необходимой для ориентирования в пространстве, использования оборудования (включая самообслуживающееся оборудование), получения услуг и других необходимых возможностей. Принятые проектные решения не ограничивают условия для других групп населения, пребывающих в банковском помещении, и не ущемляют их возможности.

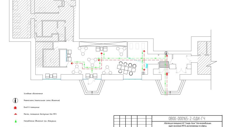
После реализации запланированных мероприятий, предусмотренных проектом, инвалиды групп мобильности М1-М4 смогут свободно перемещаться от входа в здание к внутренним помещениям без каких-либо барьеров.

Закажите проект прямо сейчас!

Выделите опечатку и нажмите Ctrl + Enter, чтобы отправить сообщение об ошибке.