Работаем по всей России

Адаптация помещений АО "Альфа-Банк" в городе Владимир

Данный проект был создан с целью обеспечения беспрепятственного доступа людей с ограниченными возможностями и маломобильных групп населения (МГН) к помещениям банка.

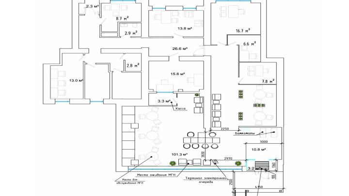
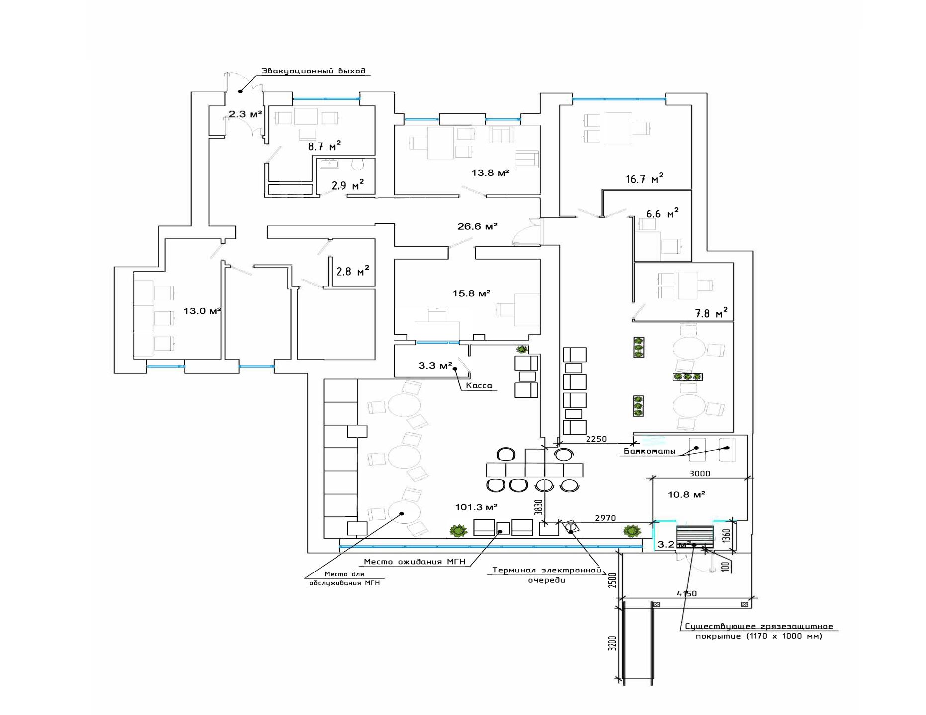
Принципом, на котором основывается проект, является "разумное приспособление". В рамках проекта будет проведена адаптация существующего помещения банка, расположенного по адресу: г. Владимир, пр-т Ленина, д. 26, 26А.

Разработка проектной документации основывается на следующих исходных данных:

  • техническом задании на проектирование;
  • информации, предоставленной заказчиком;
  • результатов проведенного обследования;
  • действующих строительных норм и правил.

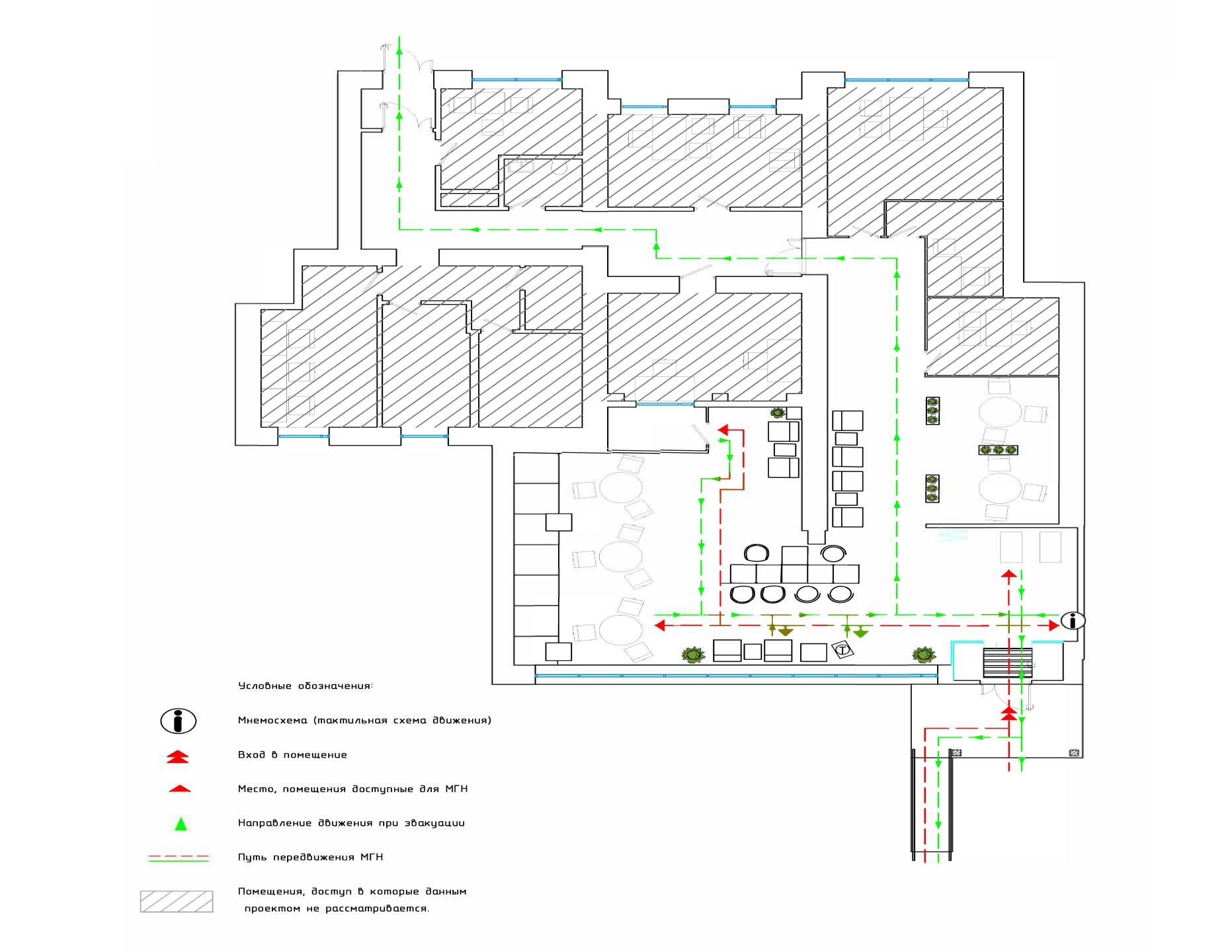
В рамках проекта предусмотрены комплексные мероприятия, направленные на улучшение архитектурной среды с соблюдением следующих принципов: Обеспечение доступности мест назначения для посещения по кратчайшему пути и возможность беспрепятственного перемещения внутри помещений банка. Обеспечение безопасности маршрутов движения и областей обслуживания. 

Проектные решения не ограничивают условия пребывания и возможности других групп населения, находящихся в помещении банка. После реализации предусмотренных проектом мероприятий будет обеспечена возможность беспрепятственного перемещения лиц с ограниченной подвижностью (группы мобильности М1-М4) от входа здания до внутренних помещений. Для этого на путях перемещения МГН будут установлены тактильные настенные указатели. 

Закажите проект прямо сейчас!

Выделите опечатку и нажмите Ctrl + Enter, чтобы отправить сообщение об ошибке.