Работаем по всей России

Адаптация помещений АО «Альфа-Банк» в г. Владивостоке 2 отделения

Проект направлен на обеспечение легкого доступа к помещениям банка для людей с ограниченными возможностями и маломобильных групп населения по принципу "разумного размещения". Помещения банка, расположенные по адресу ул. Харьковская, 8 во Владивостоке и г. Владивосток, пр-т Острякова, д. 5Г, адаптируются для улучшения качества архитектурной среды в соответствии со строительными нормами и правилами.

Проект включает меры по улучшению доступности в трех областях:

  • Обеспечение кратчайших и легких маршрутов для людей с ограниченными возможностями и маломобильных групп населения для доступа к необходимым им зонам в помещениях банка.
  • Обеспечение безопасных маршрутов движения и зон обслуживания для людей с ограниченными возможностями и маломобильных групп населения.
  • Предоставление полной и высококачественной информации в различных форматах для людей с ограниченными возможностями и маломобильных групп, позволяющей им ориентироваться в помещениях банка, пользоваться оборудованием, получать услуги и многое другое.
  • Проект не ограничивает условия проживания или возможности других групп людей в помещениях банка.
  • Как только меры будут реализованы, люди из групп мобильности M1-M3 смогут беспрепятственно передвигаться по помещениям банка, в то время как люди из группы мобильности M4 будут перенаправлены в отделение, расположенное по адресу ул. Острякова, 5г.

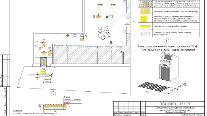
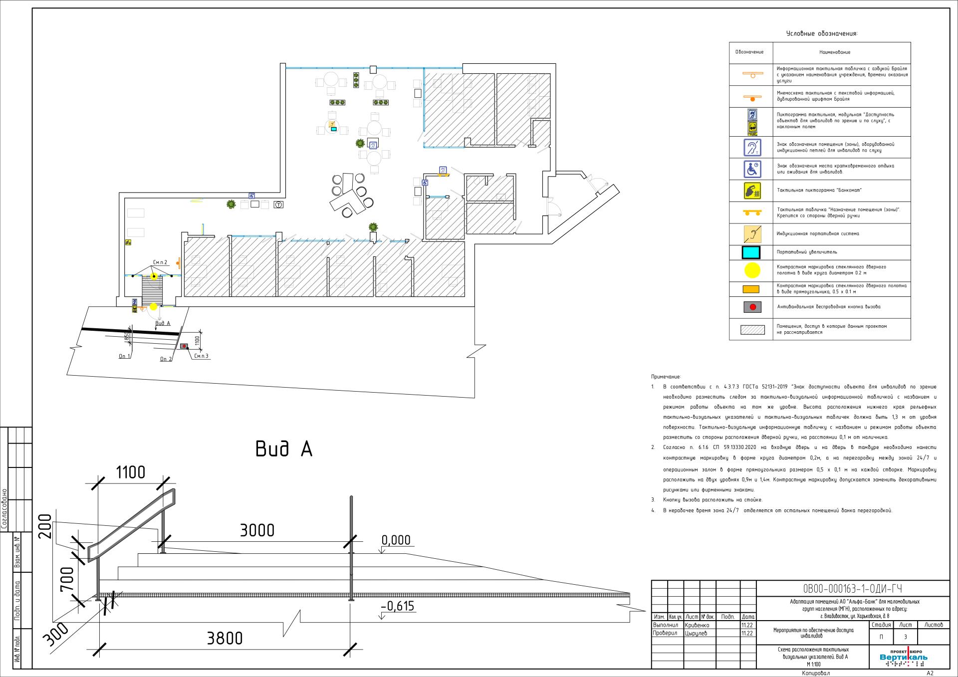
Проект также включает меры по улучшению доступности для людей с нарушениями зрения. К ним относятся тактильные настенные указатели на путях перемещения маломобильных групп, такие как тактильная визуальная табличка с указанием названия учреждения и режима работы шрифтом Брайля (100x300 мм), тактильная мнемоника с планом и назначением помещений (470 x 610 мм) и другие знаки, указывающие доступность, банкоматы и зоны кратковременного отдыха.

Согласно строительным нормам и правилам, знак доступности для лиц с нарушениями зрения должен быть тактильно-визуальным, размещаться перед входом в здание или помещение и располагаться на стене на том же уровне, что и тактильно-визуальная информационная табличка с названием и режимом работы объекта.

Проектом также предусмотрена контрастная маркировка в виде кругов и прямоугольников на прозрачных дверных панелях и ограждениях высотой не менее 0,1 м и шириной не менее 0,2 м. Разметка расположена на двух уровнях: 0,9–1,0 м и 1,3–1,4 м.

Закажите проект прямо сейчас!

Выделите опечатку и нажмите Ctrl + Enter, чтобы отправить сообщение об ошибке.