Работаем по всей России

Адаптация помещений АО "Альфа-Банк" в г. Видное

Проект направлен на обеспечение беспрепятственного доступа в помещения банка для людей с ограниченными возможностями и маломобильных групп населения.
Проектная документация была разработана на основе технических спецификаций, исходных данных, предоставленных заказчиком, результатов обследования, а также строительных норм и правил.
Проект включает в себя меры по улучшению архитектурной среды, не ограничивая при этом условия жизни других групп в банке.

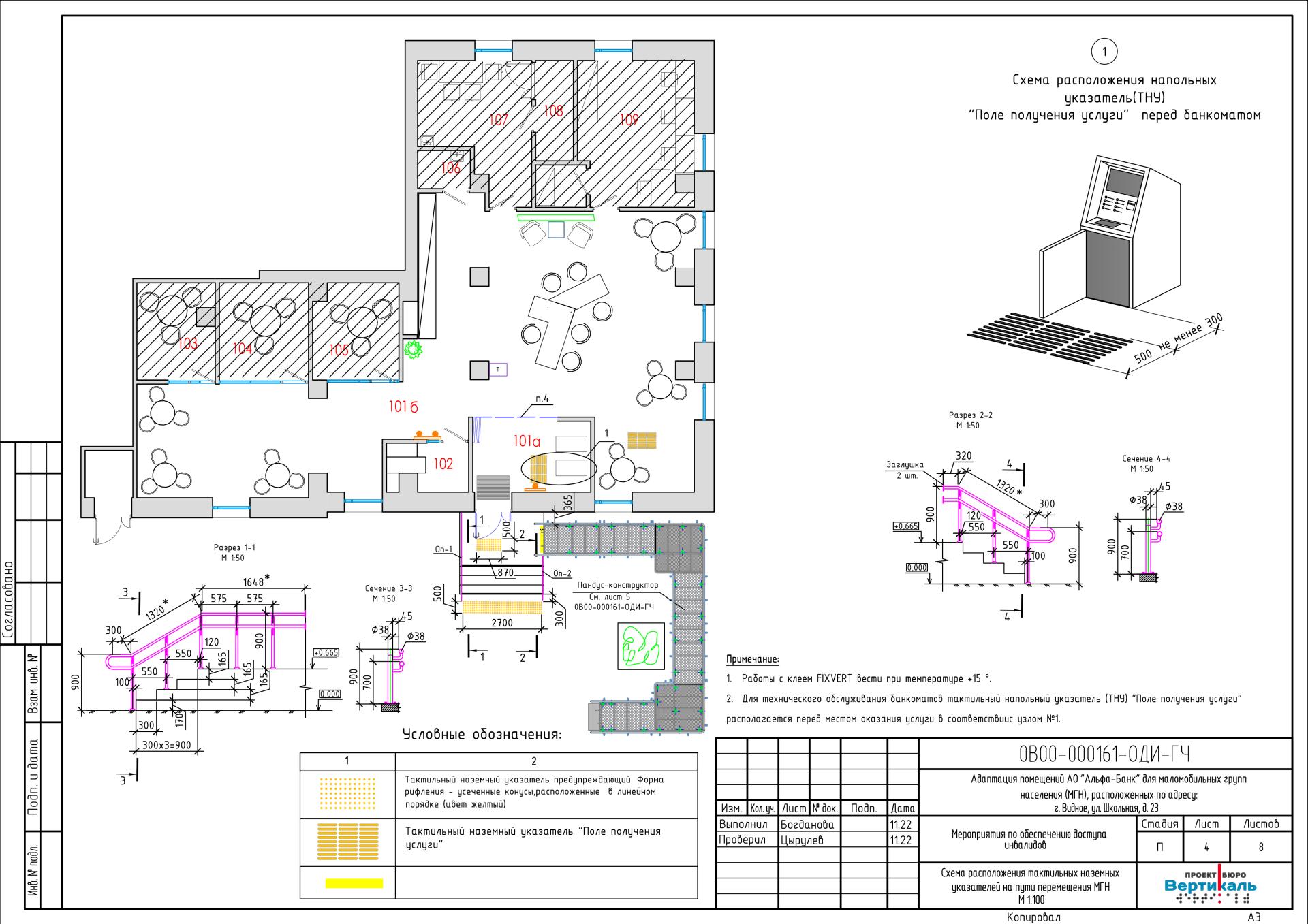
Тактильные настенные указатели предусмотрены на путях передвижения для МГН в соответствии с SP 59.13330.2020.
Знаки включают тактильную визуальную табличку, тактильную мнемонику, знаки доступности для людей с ограниченными возможностями, передвигающихся в инвалидных колясках, слабослышащих и слабовидящих, знак, указывающий на помещение, оборудованное индукционной петлей, тактильный значок "БАНКОМАТ", знак, указывающий на место кратковременного отдыха, надпись "Осторожно! Знак "Крутой подъем", знак "Обозначение помещения" и пиктограмма с дублированием шрифтом Брайля. Установка тактильных визуальных знаков должна осуществляться на высоте 1,2-1,6 м от уровня пешеходной поверхности.

Входные двери, доступные для инвалидов и МГН, должны быть хорошо идентифицируемыми и иметь табличку, указывающую на доступность здания. Проект предусматривает возможность безбарьерного передвижения маломобильных групп населения от входа в здание до внутренних помещений.
Меры включают в себя создание пандусов и лифтов для инвалидных колясок, расширение дверных проемов и проектирование доступных туалетов и умывальников.

Проект предусматривает комплексный подход к обеспечению беспрепятственного доступа в помещения банка для людей с ограниченными возможностями и маломобильных групп, в том числе с нарушениями зрения и подвижности.
Принятые меры соответствуют строительным нормам и правилам, не ограничивая при этом условия жизни других групп в банке.

Закажите проект прямо сейчас!

Выделите опечатку и нажмите Ctrl + Enter, чтобы отправить сообщение об ошибке.