Работаем по всей России

Адаптация помещений банка АО "Альфа-Банк" в городе Березники

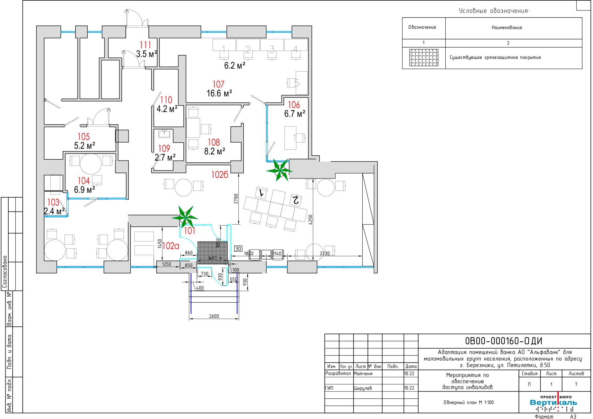
В настоящем отчете излагаются меры, принятые для обеспечения беспрепятственного доступа в помещения банка для людей с ограниченными возможностями и маломобильных групп населения по принципу "разумного размещения".

Проектная документация разрабатывается на основе технических условий на проектирование, исходных данных, предоставленных заказчиком, результатов обследования и действующих строительных норм и правил. Проект предусматривает комплекс мер по улучшению качества архитектурной среды, не ущемляя при этом возможности других групп населения, расположенных в помещениях банка.

Проект обеспечивает беспрепятственный доступ людей с ограниченными возможностями и маломобильных групп населения в помещения банка. Принятые меры улучшают качество архитектурной среды, не ограничивая при этом условия жизни и возможности других групп населения, расположенных в помещениях банка.

Установка тактильных визуальных и наземных знаков обеспечивает надежную ориентацию в пространстве и обеспечивает безопасность маршрутов движения, а также мест обслуживания. Таким образом, проект является отличным примером обеспечения доступа для людей с ограниченными возможностями и маломобильных групп населения, делая помещения банка более инклюзивными.

Закажите проект прямо сейчас!

Выделите опечатку и нажмите Ctrl + Enter, чтобы отправить сообщение об ошибке.