Работаем по всей России

Адаптация помещений АО "Альфа-Банк" в городе Барнаул

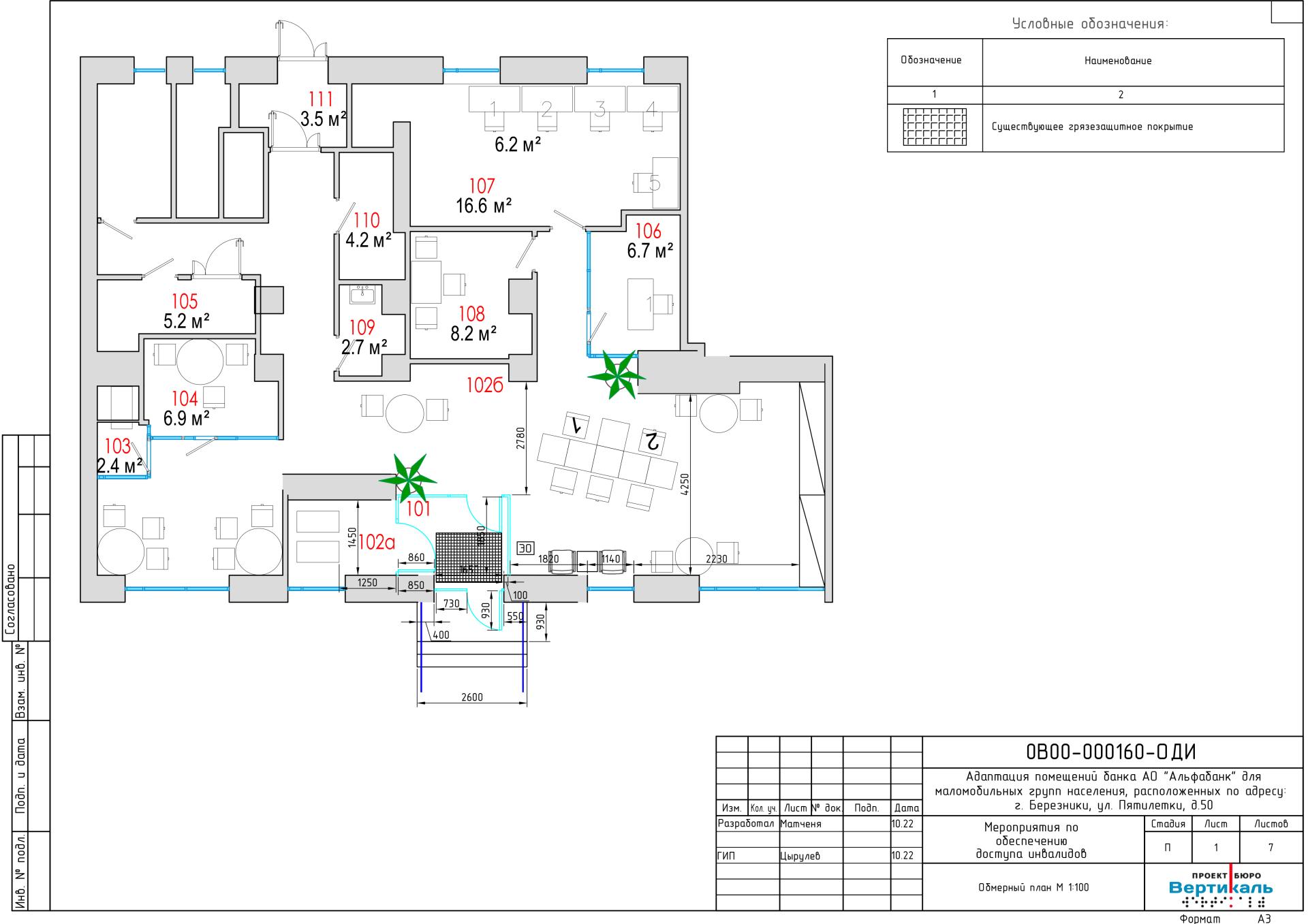
Проект направлен на обеспечение доступности помещений банка для людей с ограниченными возможностями и маломобильных групп населения на основе принципа "разумного размещения". Проектная документация основана на технических заданиях на проектирование, исходных данных, предоставленных заказчиком, результатах обследования и действующих строительных нормах и предписаниях. Проект предусматривает меры по улучшению качества архитектурной среды, включая доступность целевых мест, беспрепятственное передвижение внутри помещений банка и своевременное получение полноценной и высококачественной информации. Эти меры не ограничивают условия жизни и не ущемляют возможности других групп в банке.

Кроме того, на прозрачных дверных панелях и ограждениях следует нанести контрастную маркировку, чтобы помочь людям с ослабленным зрением. Подход проекта к обеспечению доступности и разумного размещения заслуживает похвалы, поскольку он гарантирует, что люди с ограниченными возможностями имеют равный доступ к банковским услугам и объектам, а также соблюдают строительные нормы и правила.

В заключение, адаптация помещений банка для людей с ограниченными возможностями и маломобильных групп имеет решающее значение для обеспечения их беспрепятственного доступа к основным услугам.

Проект, изложенный в тексте, предусматривает комплексный набор мер по улучшению качества архитектурной среды и соблюдению соответствующих строительных норм и правил. Включение тактильных настенных табличек для людей с нарушениями зрения, контрастная маркировка на прозрачных дверных панелях и ограждениях, а также предоставление доступных банкоматов и зон отдыха - все это важнейшие компоненты проекта.

Реализация этих мер обеспечит возможность безбарьерного передвижения для групп мобильности с ограниченными возможностями M1-M4 от входа в здание до внутренних помещений, не ограничивая условия проживания или возможности других групп населения. Этот проект устанавливает стандарт, которому должны следовать другие учреждения и бизнес в создании инклюзивных пространств для всех людей в нашем обществе.

Закажите проект прямо сейчас!

Выделите опечатку и нажмите Ctrl + Enter, чтобы отправить сообщение об ошибке.