Работаем по всей России

Мероприятие по обеспечению доступа инвалидов АО "Альфа-Банк" в городе Балаково

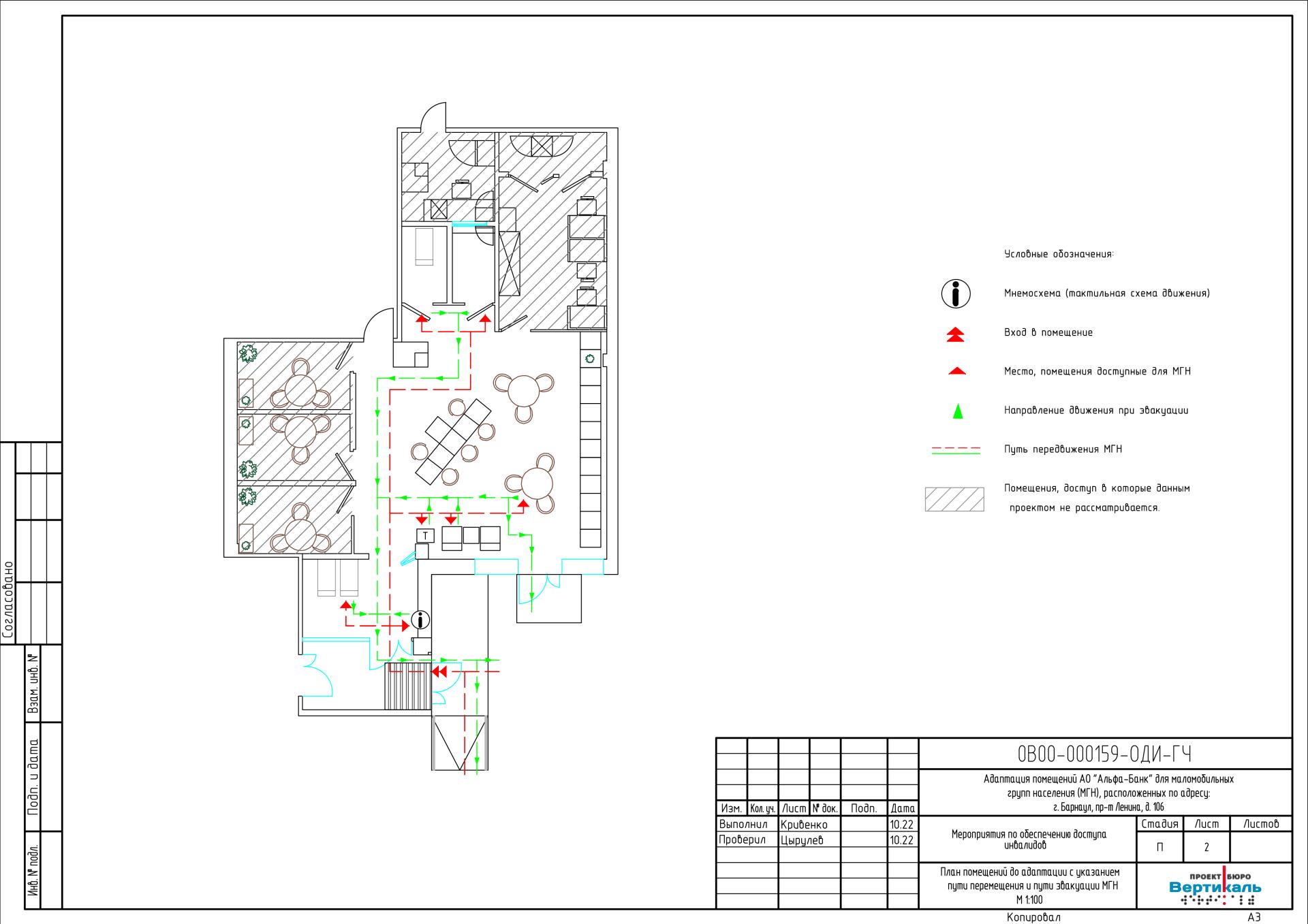
Это проект, направленный на обеспечение беспрепятственного доступа людей с ограниченными возможностями и низкой мобильностью к зданию банка. Проект разработан на основе принципа разумного размещения, гарантирующего, что принятые меры не ограничивают условия проживания или не ущемляют возможности других групп, расположенных в здании.

Документ включает в себя несколько мер по улучшению качества архитектурной среды, включая меры для людей с нарушениями зрения, такие как тактильные настенные и наземные знаки. Для людей с нарушениями слуха проект включает установку индукционной портативной петлевой системы. Проектная документация основана на технических заданиях на проектирование, исходных данных, предоставленных заказчиком, результатах обследования и действующих строительных нормах и предписаниях.

Пандус оснащен противоскользящим покрытием и поручнями с обеих сторон, и он достаточно широк, чтобы вместить инвалидную коляску. Высота пандуса составляет 20 см, а его длина - 4,2 м.

Более широкие двери и коридоры

Чтобы люди с ограниченными физическими возможностями могли свободно передвигаться по всему зданию, проектом предусмотрено расширение дверей и коридоров до минимальной ширины 1,2 м.

Доступный операционно-кассовый зал

Проект предусматривает создание операционной кассы доступной для людей с ограниченными физическими возможностями. Высота стойки составляет не более 0,85 м, и они имеют увеличенную зону для пользователей инвалидных колясок.

Вывод

В заключение отметим, что данный проект направлен на обеспечение доступности помещений банка для людей с ограниченными возможностями и маломобильных групп населения. Адаптационные меры, предлагаемые в этом проекте, основаны на действующих строительных нормах и предписаниях и предназначены для улучшения качества архитектурной среды без ограничения условий жизни или возможностей других групп населения. Реализация этих мер обеспечит возможность безбарьерного передвижения людей с ограниченными возможностями и маломобильных групп от входа в здание до внутренних помещений и расширит их доступ к информации, услугам и оборудованию самообслуживания.

Закажите проект прямо сейчас!

Выделите опечатку и нажмите Ctrl + Enter, чтобы отправить сообщение об ошибке.