Работаем по всей России

Адаптация помещений АО "Альфа-Банк" для МГН в городе Архангельск

Обеспечить беспрепятственный доступ в помещения банка для людей с ограниченными возможностями и маломобильных групп населения.

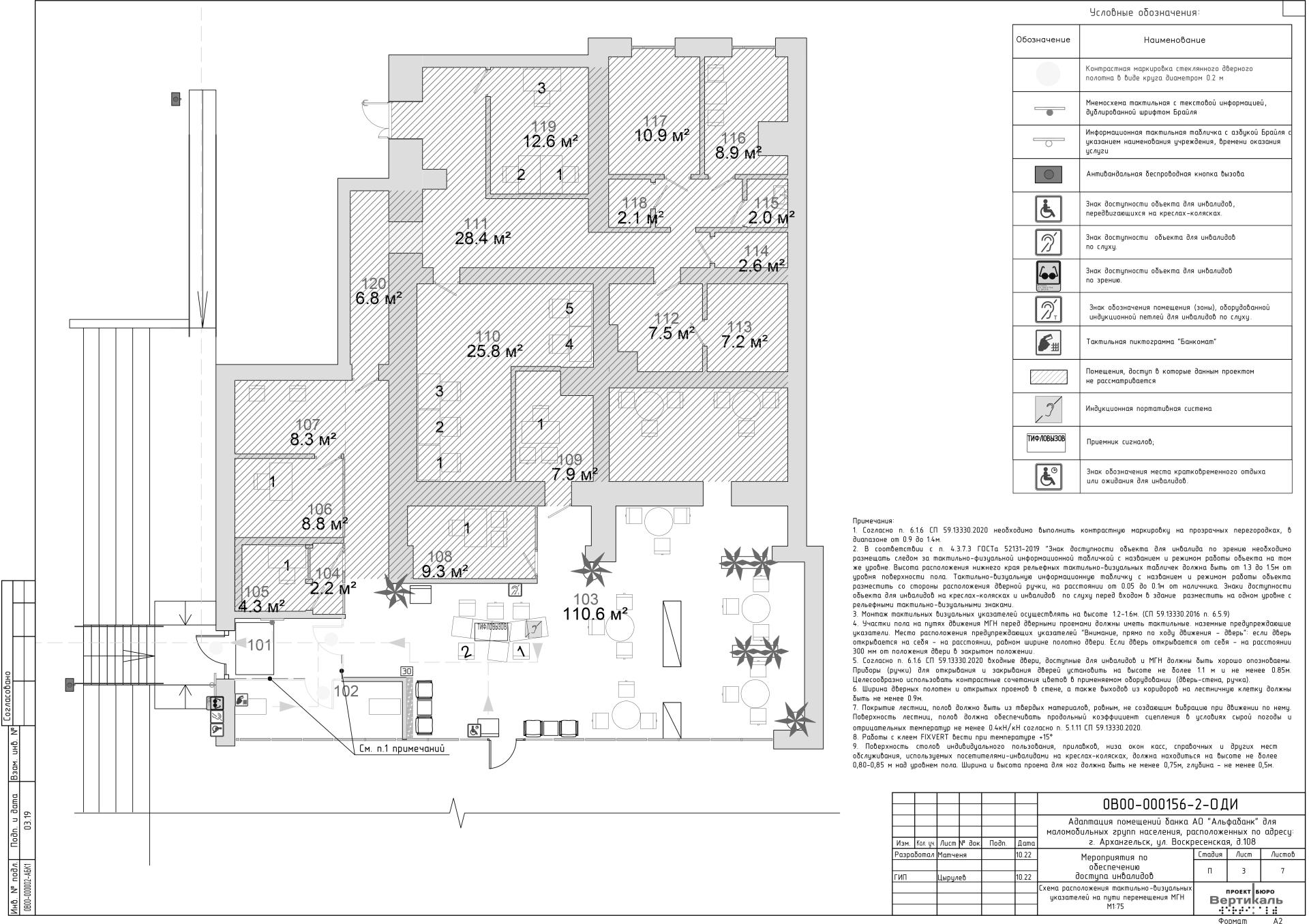
Местонахождение помещений: Архангельск, ул. Воскресенская, 6. и  Архангельск, ул. Воскресенская, 108.

Проектная документация основана на технических спецификациях, исходных данных, предоставленных заказчиком, результатах обследования, а также строительных нормах и предписаниях.

Дизайнерские решения направлены на улучшение качества архитектурной среды, гарантируя при этом, что условия жизни и возможности других групп населения не будут ограничены или ущемлены.

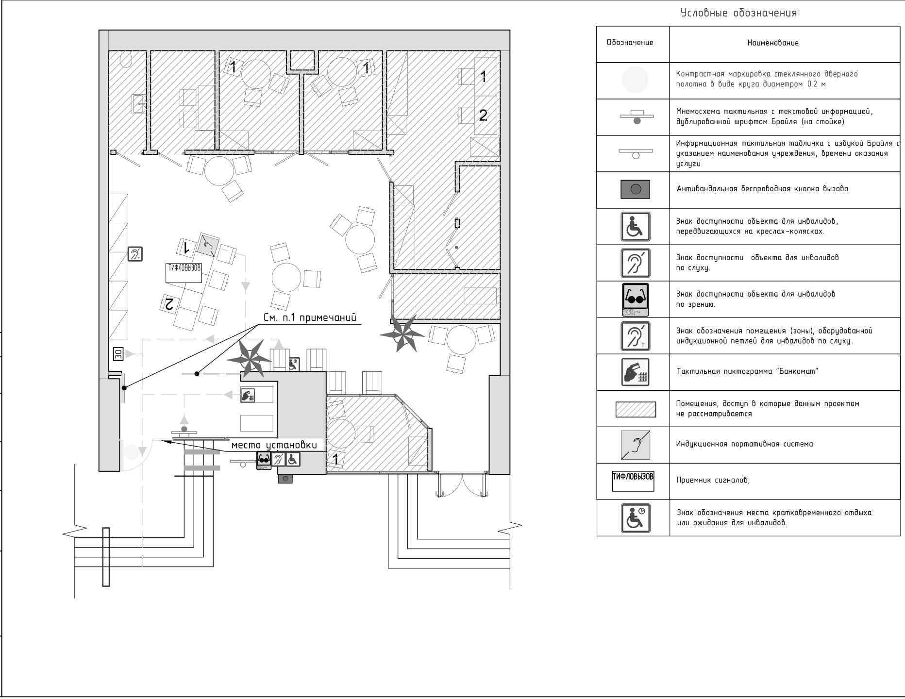
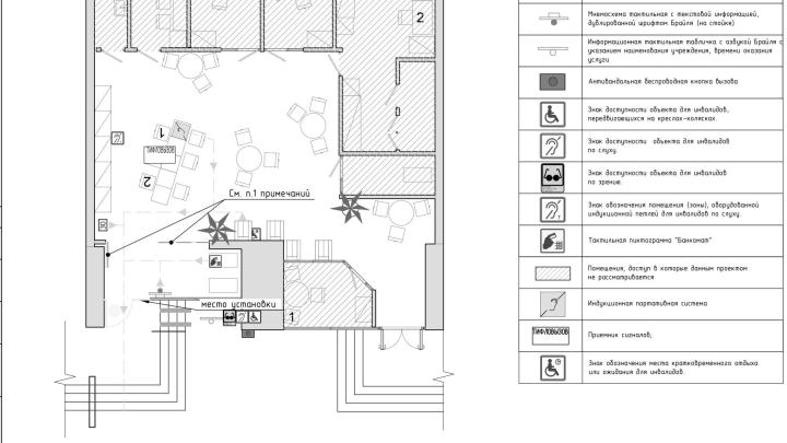
Адаптационные меры для людей с нарушениями подвижности:

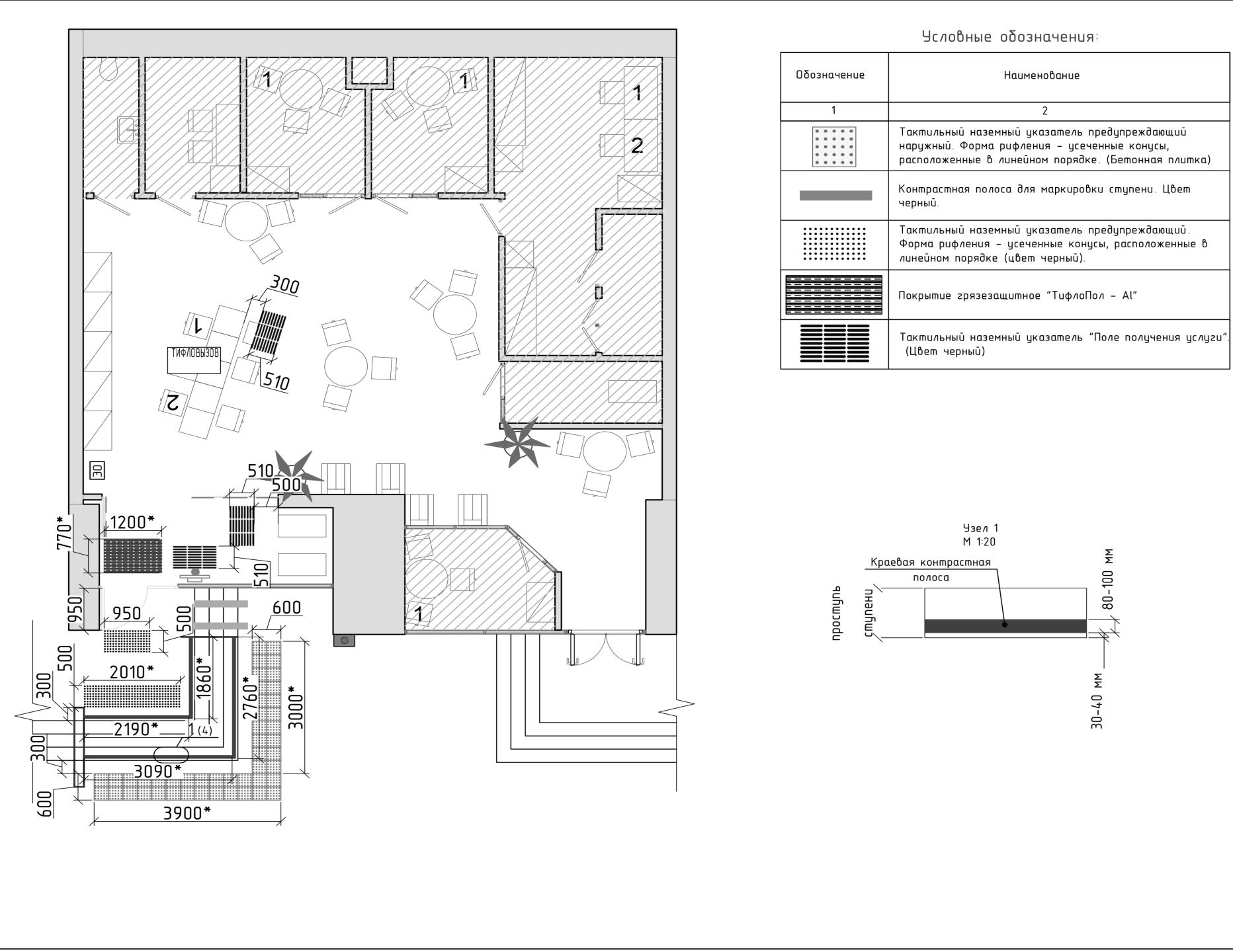
  • Тактильные настенные указатели на способах перемещения МГН.
  • Тактильная визуальная табличка с дублированием информации по системе Брайля (100x300 мм) с указанием названия учреждения и режима работы.
  • Тактильная мнемотехника с планом и назначением помещения с дублированием информации методом тактильной плоской печати в системе Брайля (470 x 610 мм).
  • Знак доступности объекта для слабовидящих, 150х200 мм.
  • Знак доступности учреждения для слабослышащих, 150x150 мм.
  • Знак, указывающий на помещение (зону), оборудованное индукционной петлей для слабослышащих, 150x150 мм.
  • Тактильный значок "Банкомат" (150 x 150 мм).
  • Место установки и высота тактильных визуальных знаков указаны в проектной документации.

Адаптационные меры для людей с нарушениями подвижности:

  • Безбарьерное передвижение групп инвалидов M1-M4 от входа в здание до внутренних помещений.
  • Для инвалидов категории мобильности М4 доступ в помещения банка осуществляется с помощью банковского работника.
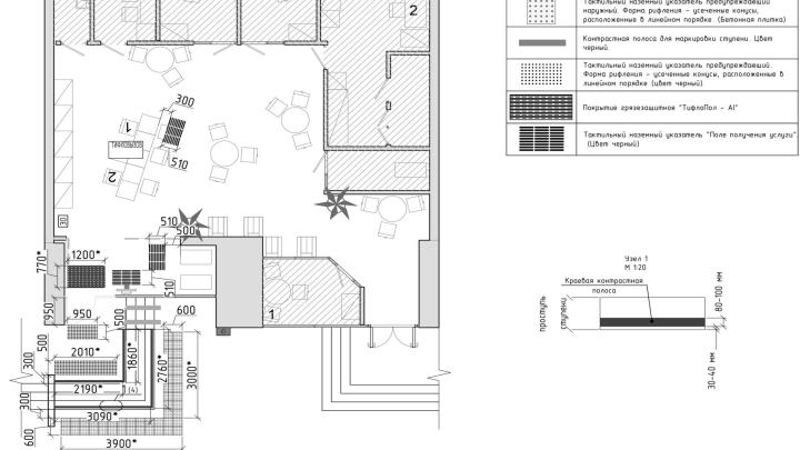
  • Усеченные купола, цилиндры, расположенные в линейном порядке, расположены на расстоянии 300 мм от края проступи нижней ступени лестницы и перед нижней ступенькой крыльца на расстоянии 300 мм.
  • Полосы, контрастирующие с поверхностью ступени, имеющие общую ширину в пределах 0,08 – 0,1 м, на протекторе краевых ступеней лестницы, с расстоянием между контрастной полосой и краем протектора от 0,03 до 0,04 м, и черного цвета.
  • Предупреждающие знаки "внимание, прямо по направлению движения – лестница" и "внимание, прямо по направлению движения – дверь" с тактильными комбинированными индикаторами черного цвета.
  • Указатель "Поле для получения услуг" с эффективной глубиной от 420 до 510 мм и девятью параллельными продольными рифами.

Перечень использованных нормативных и регламентирующих документов

  1. СП 59.13330.2020 «Доступность зданий и сооружений для маломобильных групп населения». Актуализированная редакция СНиП 35-01-2001.
  1. СП 136.13330.2012 «Здания и сооружения. Общие положения проектирования с учетом доступности для маломобильных групп населения» (с Изменениями №1).
  1. СП 138.13330.2012 «Общественные здания и сооружения, доступные маломобильным группам населения. Правила проектирования» (с Изменениями №1).
  1. ГОСТ Р 50602-93 «Кресла-Коляски. Максимальные габаритные размеры».
  2. ГОСТ Р 51261-17 «Устройства опорные стационарные реабилитационные. Типы и технические требования».
  1. ГОСТ Р 52131-2019 «Средства отображения информации знаковые для инвалидов. Технические требования».
  1. ГОСТ Р 52875-2018 «Указатели тактильные наземные для инвалидов по зрению. Технические требования».

Проект обеспечения доступности банковских помещений в Архангельске предоставляет важнейшую услугу людям с ограниченными возможностями и маломобильным группам населения.

Адаптационные меры проекта направлены на улучшение качества архитектурной среды, гарантируя при этом, что условия жизни и возможности других групп населения не будут ограничены или ущемлены.

Проект служит образцом для других учреждений и организаций по предоставлению беспрепятственного доступа в свои помещения всем членам общества.

Закажите проект прямо сейчас!

Выделите опечатку и нажмите Ctrl + Enter, чтобы отправить сообщение об ошибке.