Работаем по всей России

Адаптация помещений АО "Альфа-Банк" для МГН

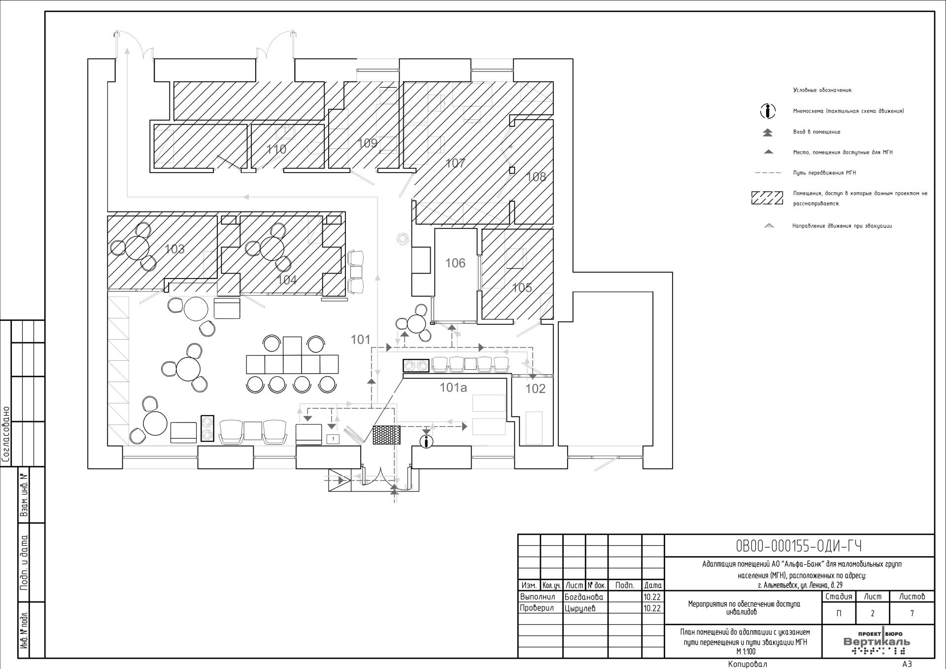
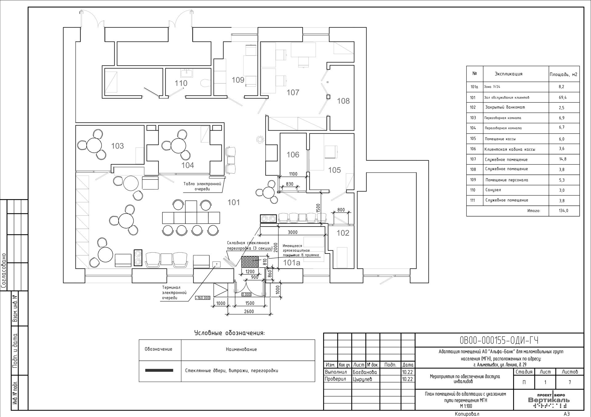
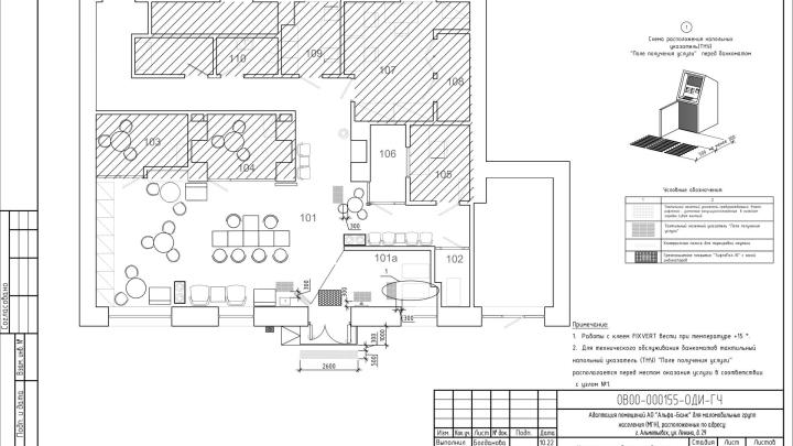
Целью этого проекта является обеспечение легкого и неограниченного доступа к помещениям банка для людей с ограниченными возможностями и маломобильных групп (МГН), основанного на принципе "разумного размещения". Помещения банка в Альметьевске, ул. Ленина, 29 адаптируются на основе технических спецификаций, исходных данных, предоставленных клиентом, результатов обследования и действующих строительных норм и правил. Проект направлен на улучшение качества архитектурной среды путем обеспечения следующего:

1. Кратчайший и неограниченный путь к целевым посещениям в помещениях банка.

2. Безопасные маршруты движения и зоны обслуживания.

3. Своевременный доступ к полноценной и высококачественной информации, навигации, использованию оборудования, самообслуживанию и другим сервисам.

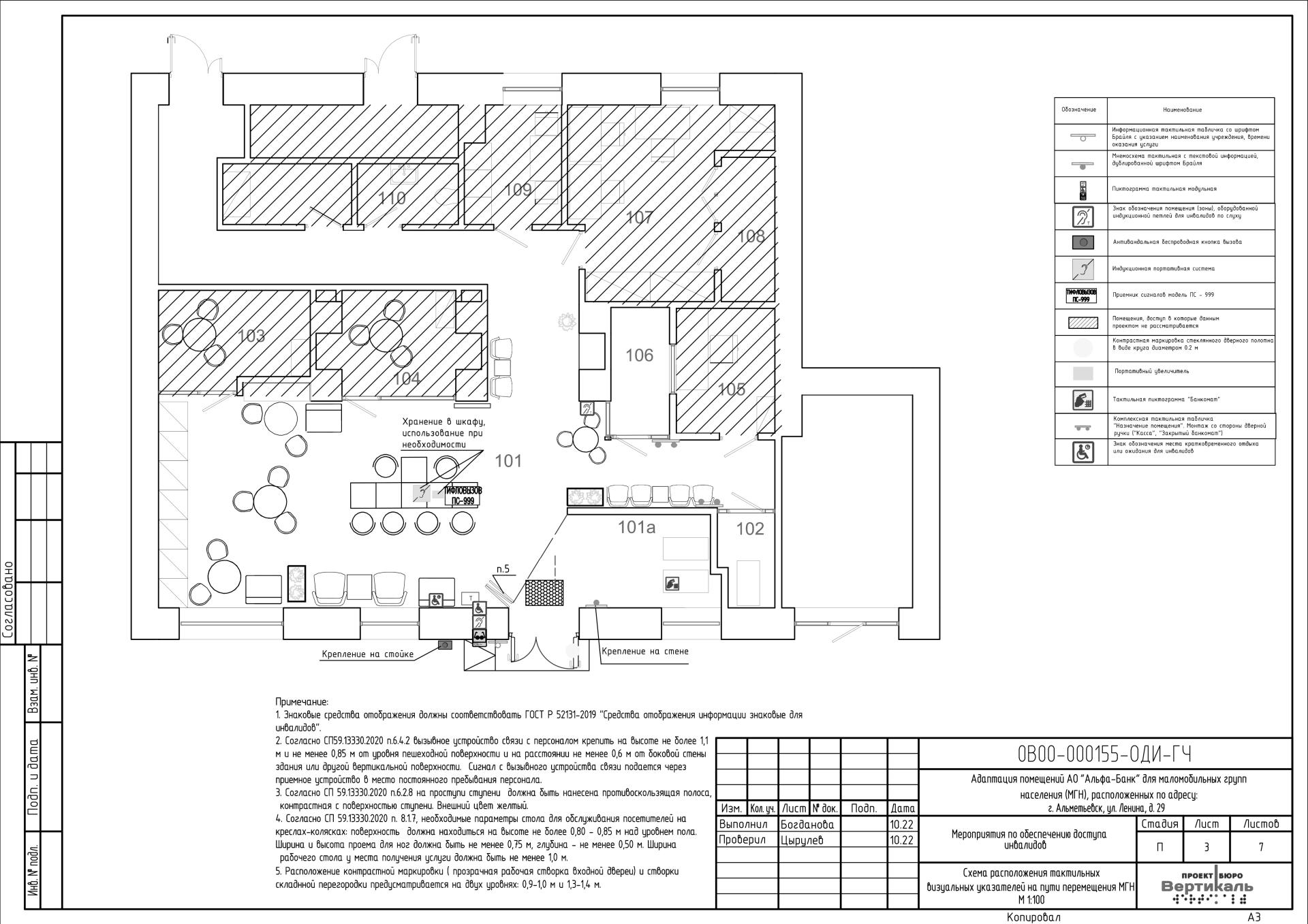
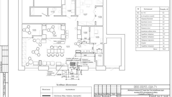
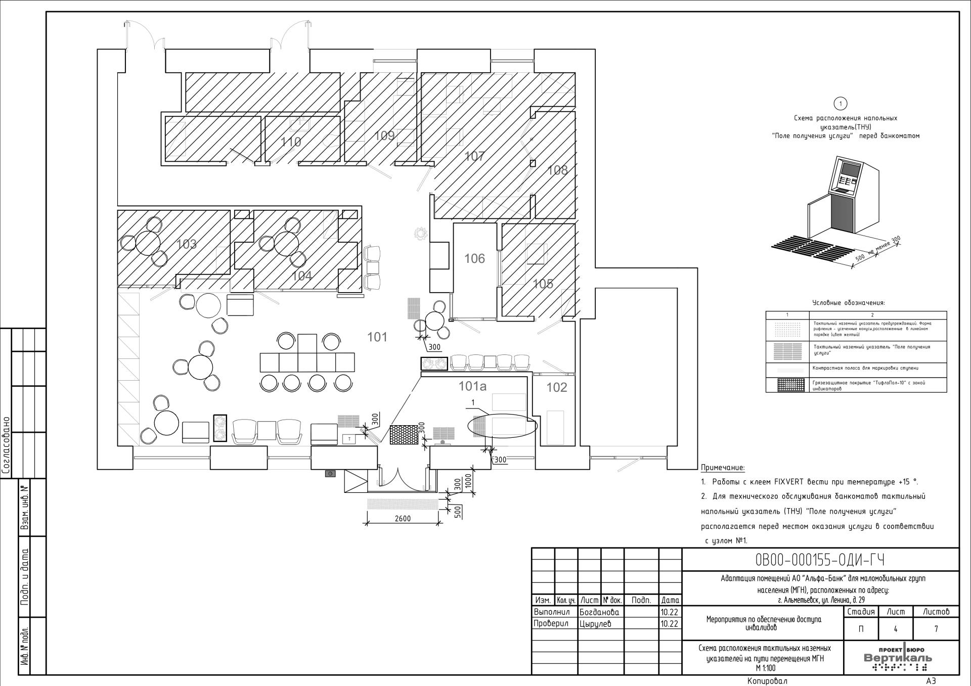
Адаптационные меры для людей с нарушениями зрения. Проект включает в себя различные меры, направленные на то, чтобы сделать помещения банка доступными для людей с нарушениями зрения. Ниже приведены ключевые меры. Тактильные настенные указатели на способах перемещения МГН. Проект включает в себя тактильные визуальные указатели с системой Брайля для облегчения передвижения внутри банка.

К ним относятся:
 1.Тактильная визуальная табличка с указанием названия учреждения и режима работы.
 2.Тактильная мнемоника с планом и назначением помещения
 3.Знак доступности для пользователей инвалидных колясок, слабослышащих и слабовидящих.
 4.Знак, указывающий на помещение (зону), оборудованное индукционным контуром для слабослышащих
 5.Тактильный значок "Банкомат"
 6.Знак, указывающий на место кратковременного отдыха или ожидания инвалидов

Установка тактильных визуальных знаков должна осуществляться на высоте 1,2-1,6 м от поверхности пешеходного перехода. Входные двери, доступные для инвалидов и МГН, должны быть обозначены знаком, указывающим на доступность здания. Прозрачное рабочее полотно входной двери имеет контрастную маркировку в виде круга диаметром 0,2 м, в то время как прозрачные двери откидной перегородки имеют контрастную маркировку в виде прямоугольника высотой не менее 0,1 м и шириной не менее 0,2 м.  

Тактильные наземные знаки (ТНЗ) на путях перемещения МГН. Проект включает в себя местные предупреждающие знаки "внимание, прямо по направлению движения – лестница" глубиной 500-600 мм и шириной, равной ширине секции.

  1. Проект обеспечивает безбарьерное передвижение для инвалидов и маломобильных групп населения от входа до внутренних помещений банка. Тактильные визуальные и наземные знаки облегчают передвижение, навигацию и использование оборудования.
  2. Проект гарантирует, что условия жизни и возможности других групп населения, находящихся в помещениях банка, не будут затронуты. Проект соответствует действующим строительным нормам и правилам, и это отличный пример того, как банки могут размещать людей с ограниченными возможностями и маломобильные группы в своих помещениях.

Закажите проект прямо сейчас!

Выделите опечатку и нажмите Ctrl + Enter, чтобы отправить сообщение об ошибке.