Работаем по всей России

Капитальный ремонт здания стационара "Волосовская МБ"

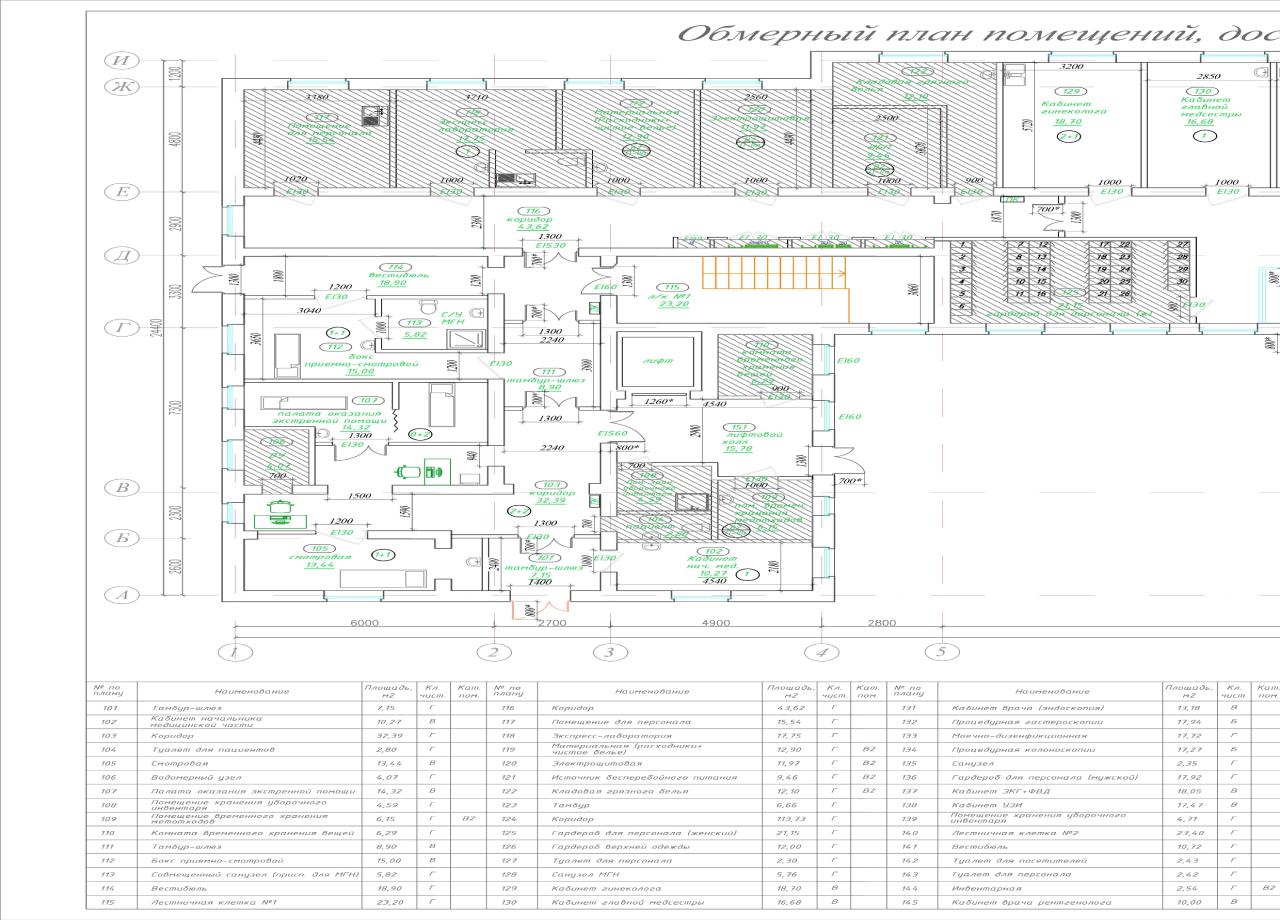
Настоящий отчет подготовлен на основе проектной документации, направленной на обеспечение безбарьерного передвижения людей с ограниченными возможностями и маломобильных групп населения в помещениях Волосовской МБДОУ в Волосово.

Проект разработан на основе технических спецификаций, предоставленных заказчиком исходных данных, результатов обследования и соответствующих строительных норм и правил. Цель состоит в том, чтобы обеспечить комплекс мер, которые улучшают качество архитектурной среды в соответствии с принципом "разумного размещения".

Адаптационные меры для людей с нарушениями подвижности:

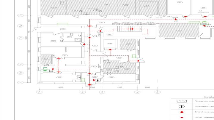
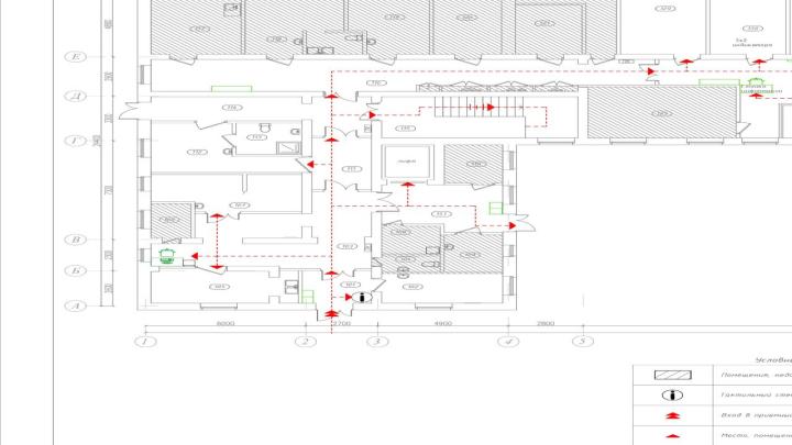
  • Проект предусматривает тактильные визуальные указатели на путях перемещения МГН. Эти знаки включают тактильные визуальные таблички с дублированием информации шрифтом Брайля, тактильные мнемонические диаграммы с планом и назначением помещений, тактильные пиктограммы модели "Доступность объектов для людей с ограниченными возможностями по зрению и слуху, а также в инвалидных колясках", тактильные значки "Кнопка вызова помощи", тактильные пиктограммы "Вход в комната" и тактильные пиктограммы "Выход из комнаты".
  • Таблички установлены перед входными дверями приемного отделения и больницы, над кнопками вызова помощи, перед входом из вестибюлей в коридоры, и на выходе из лестничных клеток и лифтов.

Чтобы обеспечить руководство и ориентацию для людей с нарушениями зрения, проект предлагает установку тактильных указателей на местности в следующих областях:

  • По главной дорожке от входа в здание к приемному отделению и больнице.
  • Перед входными дверями приемного отделения и больницы, указывающими направление входа.
  • Перед лестницей и лифтом на первом этаже, указывая расположение элементов вертикального перемещения.
  • Перед входами в туалеты для людей с ограниченными возможностями с указанием местоположения туалета.

Тактильные указатели заземления должны иметь диаметр 400 мм, высоту 5 мм и сопротивление скольжению не менее R11. Цвет указателей должен контрастировать с окружающим полом и обеспечивать достаточный контраст, чтобы люди с ослабленным зрением могли легко их обнаружить.

Знаковые средства отображения информации:

Чтобы предоставить информацию людям с ослабленным зрением, проект предлагает установку знаковых средств отображения информации. Информация должна выводиться с использованием тактильного метода плоской печати в соответствии с системой Брайля. Должна быть предоставлена следующая информация:

  • Информация об услугах, предоставляемых в приемном отделении и больнице.
  • Информация о расположении туалетов для людей с ограниченными возможностями.
  • Информация о расположении выходов из здания.

Средства отображения знаковой информации должны устанавливаться на высоте 1200 мм от пола и иметь коэффициент контрастности не менее 3:1.

АДАПТАЦИОННЫЕ МЕРЫ ДЛЯ ЛЮДЕЙ С ОГРАНИЧЕННЫМИ ФИЗИЧЕСКИМИ ВОЗМОЖНОСТЯМИ

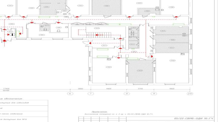
Доступный маршрут

Чтобы обеспечить безбарьерный доступ к зданию, проектом предлагается создать доступный маршрут, соответствующий требованиям SP 59.13330.2020. Доступный маршрут должен соединять парковочную зону со входом в здание и должен включать следующие элементы:

  • Доступные парковочные места с соответствующей поверхностью и размерами.
  • Безбарьерная дорожка шириной не менее 1200 мм, без ступенек или перепадов уровней, с поверхностью, устойчивой к скольжению, и соответствующими поручнями.
  • Доступный вход в здание с автоматическими дверями.
  • Доступный маршрут внутри здания, соединяющий вход в приемное отделение и больницу.

Чтобы обеспечить вертикальный доступ на разные этажи здания, проектом предлагается установка лифта и лестничного подъемника. Лифт должен соответствовать требованиям SP 59.13330.2020 и обладать следующими характеристиками:

  • Размеры не менее 1100x1400 мм.
  • Кнопки управления с тактильной и визуальной обратной связью.
  • Система голосового оповещения.

Лестничный подъемник должен обладать следующими характеристиками:

  • Соответствующие размеры для размещения пользователя инвалидной коляски.
  • Складное сиденье для других пользователей.
  • Кнопки управления с тактильной и визуальной обратной связью.

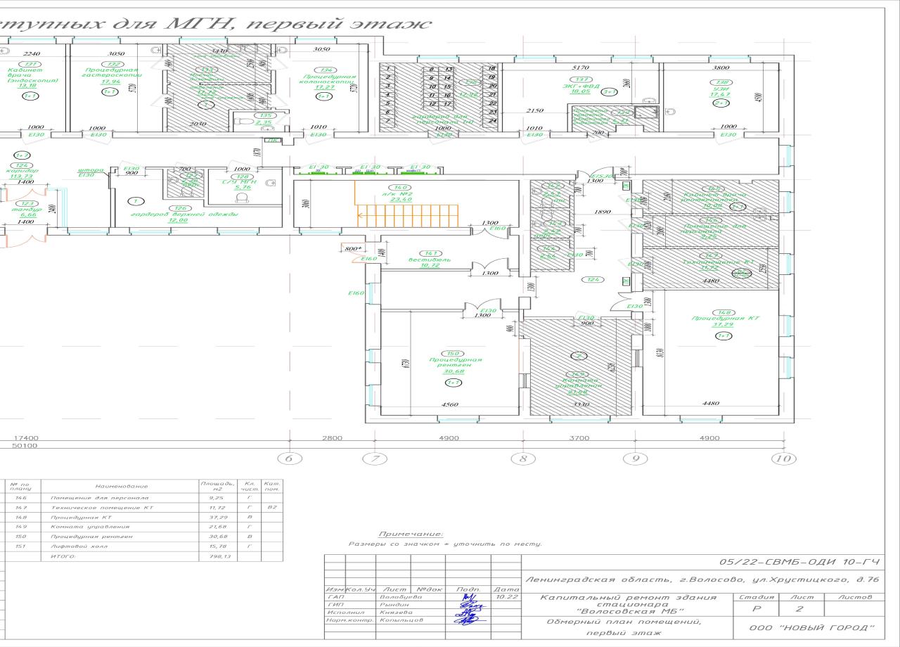
Туалеты для людей с нарушениями подвижности::

Чтобы обеспечить туалетами людей с ограниченными возможностями, проект предлагает создать два доступных туалета, один на первом этаже и один на втором этаже. Туалеты должны соответствовать требованиям SP 59.13330.2020 и обладать следующими характеристиками:

  • Минимальная площадь 1500x1500 мм.
  • Унитаз высотой 460-480 мм.
  • Соответствующие поручни.
  • Система экстренного вызова.
  • Раковина высотой 750 мм и зеркало на соответствующей высоте.
  • Распределитель бумажных полотенец и дозатор мыла на соответствующей высоте.

Соблюдение строительных норм и правил:

Проект соответствует соответствующим строительным нормам и правилам, включая: СП 59.13330.2020, СП 136.13330.2012, СП 138.13330.2012, ГОСТ Р 50602-93, ГОСТ Р 51261-17, ГОСТ Р 52131-2019 и ГОСТ Р 52875-2018.

Эти документы содержат руководящие принципы и технические требования по обеспечению доступности для маломобильных групп населения в зданиях и сооружениях.

Проект предусматривает комплексный комплекс мер по обеспечению безбарьерного передвижения людей с ограниченными возможностями и маломобильных групп населения в пределах помещений Волосовской МБДОУ в Волосово. Эти меры соответствуют соответствующим строительным нормам и правилам и не ограничивают условия или ущемляют возможности других групп населения, находящихся в помещениях больницы. После реализации мер будет обеспечена возможность безбарьерного передвижения инвалидов групп мобильности М1-М4 от входа в здание до внутренних помещений больницы.

Закажите проект прямо сейчас!

Выделите опечатку и нажмите Ctrl + Enter, чтобы отправить сообщение об ошибке.