Работаем по всей России

Адаптация помещений АО "Альфа-Банк" для МГН

В настоящем отчете описан проект, призванный обеспечить людям с ограниченными возможностями и маломобильным группам населения беспрепятственный доступ в помещения банка, расположенного по адресу: ул. Комсомольская, 78, Орел. Проектная документация основана на технических спецификациях, исходных данных, предоставленных заказчиком, результатах обследования, а также строительных нормах и предписаниях. Проект направлен на улучшение качества архитектурной среды путем обеспечения беспрепятственного передвижения внутри помещений, безопасности маршрутов движения и своевременного получения информации для МГН.

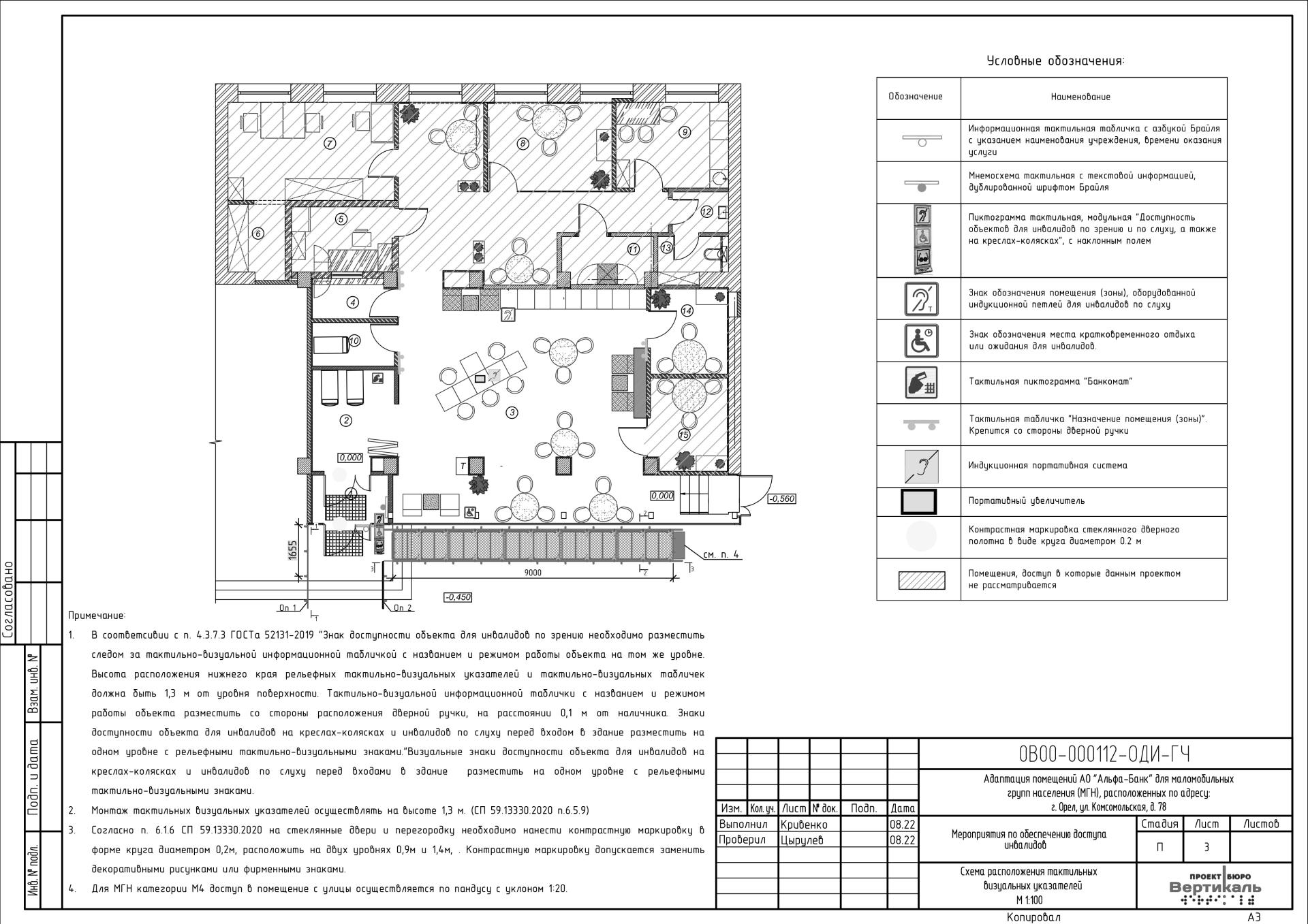
Адаптационные меры для людей с нарушениями зрения:

  • Проектом предусмотрены тактильные настенные указатели на путях перемещения МГН, такие как тактильная визуальная табличка с дублированием информации по системе Брайля, тактильная мнемотехника с планом и назначением помещений, знак, указывающий на доступность входа для инвалидов категорий M1-M4, знак, указывающий помещение, оборудованное индукционным контуром для слабослышащих, тактильным значком "БАНКОМАТ" и табличкой, указывающей место кратковременного отдыха или ожидания для инвалидов.
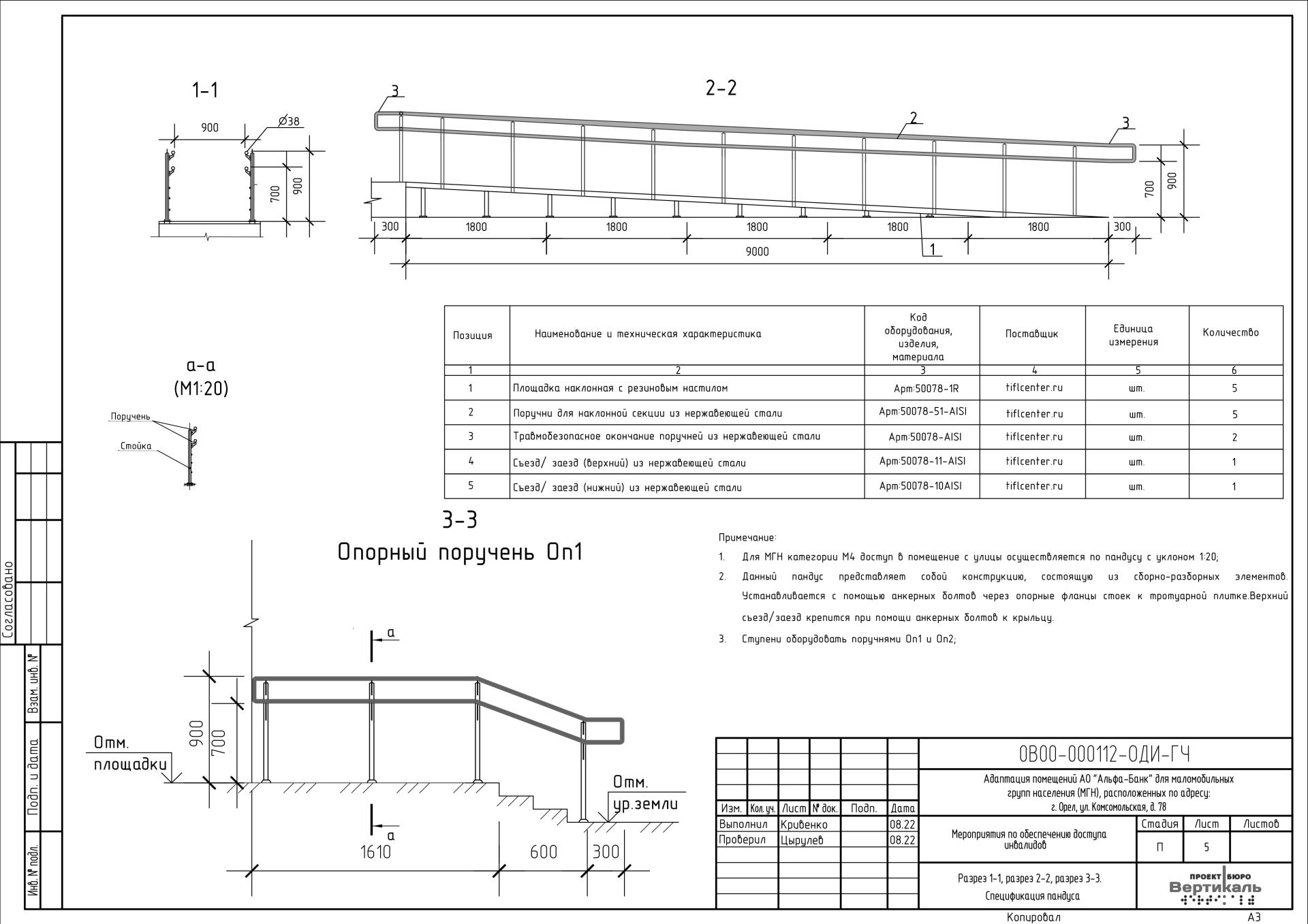
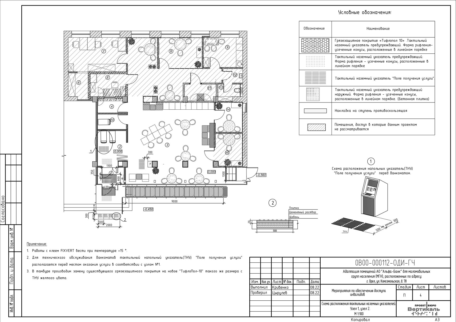
  • Проект также включает тактильные наземные знаки (ТНУ) на путях перемещения МГН, такие как местный предупреждающий знак "Внимание, прямо по направлению движения - лестница", который состоит из рифов типа усеченного конуса, усеченных куполов, цилиндров, расположенных в линейном порядке. Эти знаки расположены перед нижней ступенькой крыльца на расстоянии, указанном в проекте.

Проект предоставляет комплексное решение для обеспечения беспрепятственного доступа людей с ограниченными возможностями и маломобильных групп населения к помещениям банка. Меры по адаптации включают тактильные настенные знаки и тактильные наземные знаки, которые соответствуют соответствующим строительным нормам и правилам. Проект не ограничивает условия жизни других групп населения, находящихся в помещениях банка. Как только проект будет реализован, люди с ограниченными возможностями и маломобильные группы населения получат возможность безбарьерного передвижения от входа в здание до внутренних помещений.

Закажите проект прямо сейчас!

Выделите опечатку и нажмите Ctrl + Enter, чтобы отправить сообщение об ошибке.