Работаем по всей России

Обеспечение безопасного доступа маломобильных групп населения в помещения 1-го и 2-го этажа Аэровокзала «терминал «Российские авиалинии, привокзальная площадь «АО Аэропорт Якутск»

В настоящем отчете представлен проект, разработанный для обеспечения безопасного доступа маломобильных групп населения на 1-й и 2-й этажи терминала в АО "Аэропорт Якутск". Проект основан на принципе "разумного размещения" и направлен на улучшение качества архитектурной среды при соблюдении действующих строительных норм и правил. Проект был разработан на основе технических спецификаций, исходных данных, предоставленных заказчиком, и результатов обследования. Предоставленные дизайнерские решения не ограничивают условия проживания и не ущемляют возможности других групп населения, находящихся в помещении.


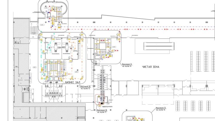
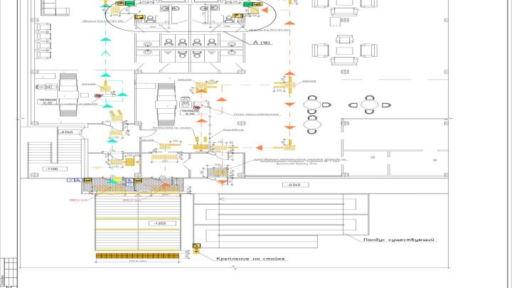
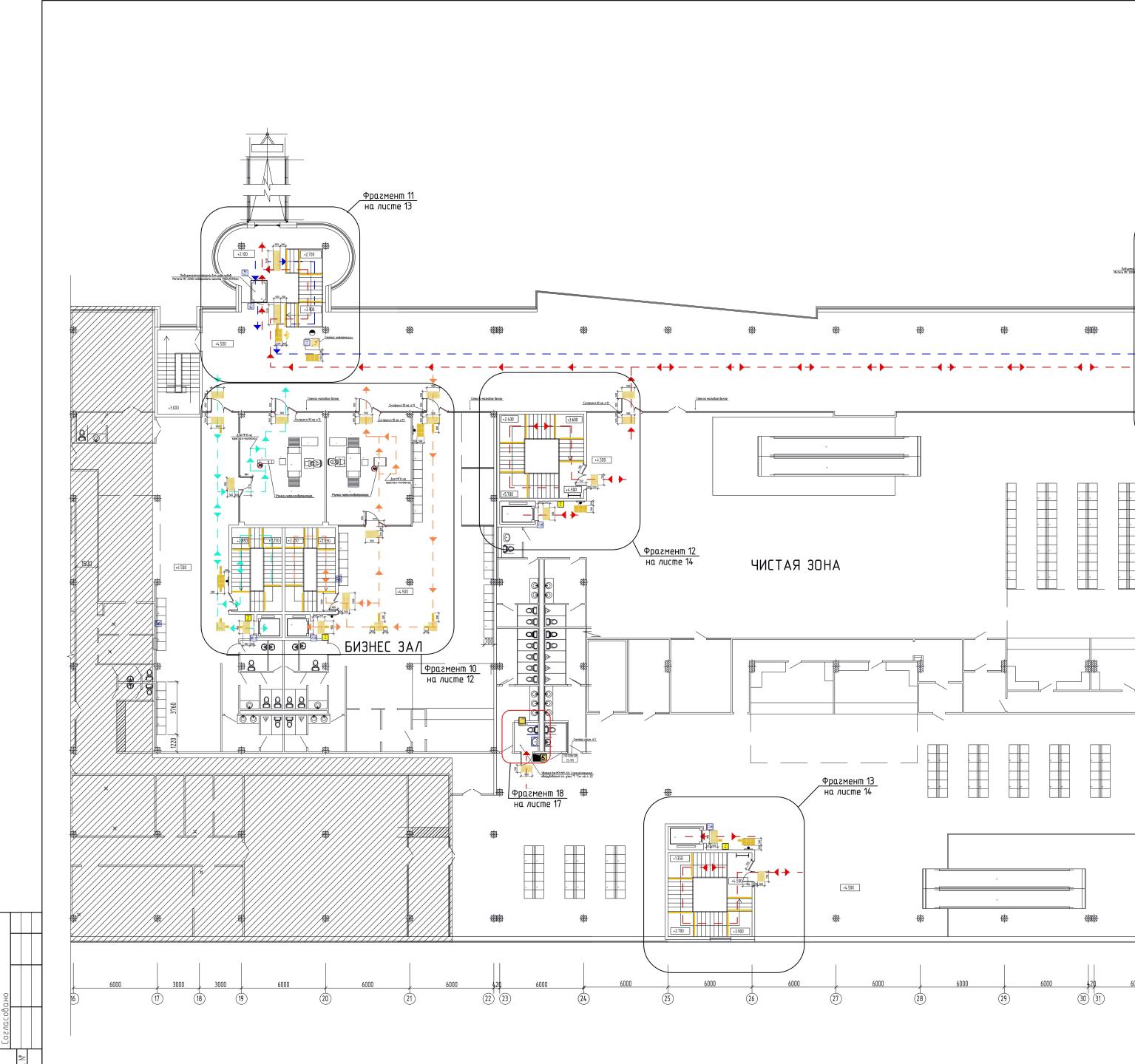
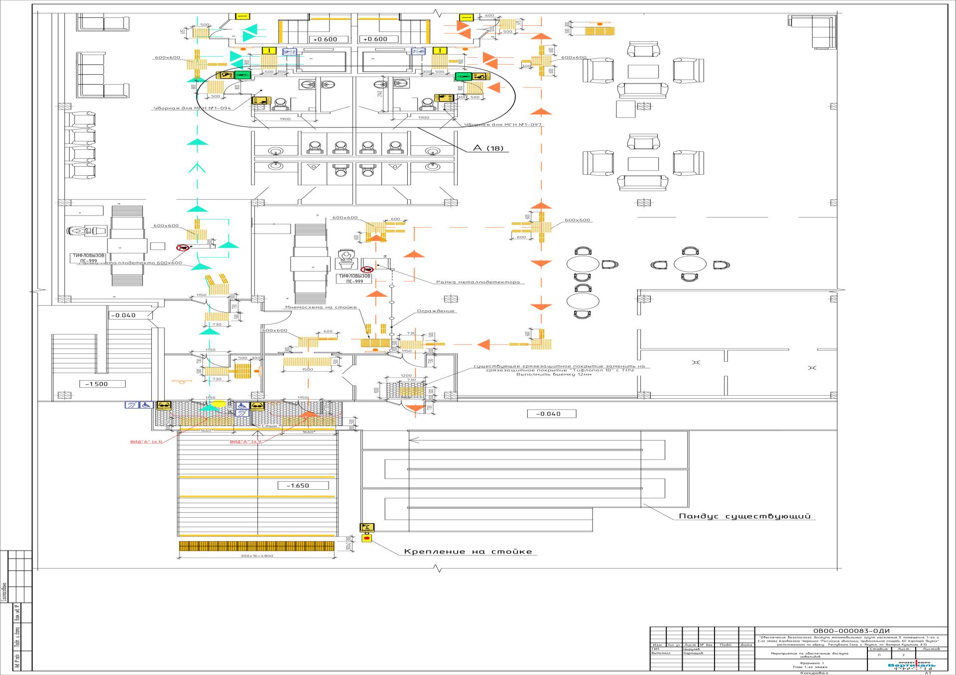
Проект предусматривает комплекс мер по обеспечению безопасного, информативного и комфортного доступа к объекту для маломобильных групп населения. Терминал предоставляет услуги для всех групп мобильности, и проект предусматривает независимый способ передвижения от входа в зону обслуживания. При необходимости также предоставляется сопровождение персоналом аэровокзала.

Предусмотрены парковочные места для маломобильных групп населения, а доступ для посетителей мобильной группы М4 осуществляется по пандусу. Пандус спроектирован в соответствии с действующими строительными нормами и правилами и включает в себя поручни, бамперы и устройство вызова помощи. 

Для людей, путешествующих в инвалидных колясках, доступ на 2-й этаж осуществляется на лифте. Тактильные наземные знаки установлены для обеспечения безопасности и информативности для людей с нарушениями зрения в соответствии с действующими строительными нормами и правилами.

Тактильные наземные знаки устанавливаются перед верхней и нижней ступенями, чтобы предупреждать о лестнице, предупреждать о двери в направлении движения, указывать на зону обслуживания и направлять движение от указателя "Поле внимания" к какому-либо значимому объекту. Проектом также предусмотрена установка внешнего вызывного устройства для связи с персоналом для людей, которым требуется помощь при подъеме по пандусу.

Проект предусматривает комплексный комплекс мер по обеспечению безопасного, информативного и комфортного доступа маломобильных групп населения к терминалу в АО "Аэропорт Якутск". Предоставленные дизайнерские решения соответствуют действующим строительным нормам и правилам, не ограничивают условия проживания и не ущемляют возможности других групп населения, находящихся в помещении. Проект улучшает качество архитектурной среды и гарантирует, что объект будет доступен для всех.

Закажите проект прямо сейчас!

Выделите опечатку и нажмите Ctrl + Enter, чтобы отправить сообщение об ошибке.