Работаем по всей России

Обеспечение доступа инвалидов в всероссийский историко-этнографический музей город Торжок

Настоящий проект разработан с целью обеспечения беспрепятственного доступа для людей с ограниченными возможностями и маломобильных групп населения (МГН) к помещению ФГБУК "ВИЭМ" на основе принципа "разумного приспособления". ФГБУК "ВИЭМ" расположен по адресу: Тверская область, г. Торжок, пл. 9 Января, д. 2.

Проектная документация разработана на основе следующих оснований:

  • Технического задания на проектирование;
  • Исходных данных, предоставленных Заказчиком;
  • Действующих строительных норм и правил.

В рамках проекта предусмотрены комплексные мероприятия по улучшению качества архитектурной среды с соблюдением следующих принципов:

  1. Обеспечение доступности целевых мест по кратчайшему пути и создание беспрепятственной среды внутри здания.
  2. Обеспечение безопасности путей движения и зон обслуживания.
  3. Предоставление МГН своевременной и полноценной информации, необходимой для ориентации в пространстве, использования оборудования (включая самообслуживание), получения услуг и т.д.
  4. Обеспечение эвакуации людей из здания в случае возникновения опасных ситуаций, предотвращение угрозы для их жизни и здоровья.

Принятые проектные решения не ограничивают условия для других групп населения, проживающих и находящихся в здании и его окрестностях.

После внедрения мер, предусмотренных проектом, МГН будут иметь возможность свободного доступа к помещениям здания без преград.

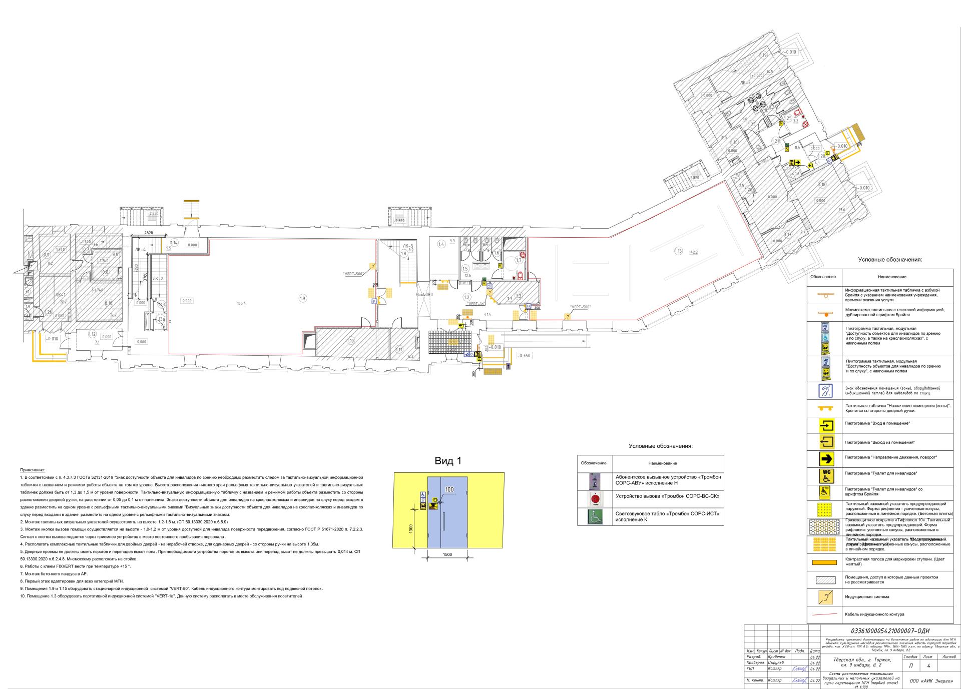
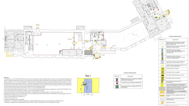
Входная группа данного здания включает лестницу, крыльцо перед центральным входом и тамбур. В рамках проекта предусмотрены следующие мероприятия:

  1. Установка тактильно-контрастных предупреждающих указателей на путях движения перед лестничным маршем и дверными проемами согласно требованиям.
  2. Установка тактильно-визуальной таблички о назначении здания и тактильных пиктограмм "Доступность входа для инвалидов" перед центральным входом.
  3. Предусмотрение тактильного грязезащитного покрытия на всей площади пола тамбура с тактильными индикаторами в линейном порядке.
  4. Установка тактильной мнемосхемы для первого этажа.
  5. Нанесение контрастных полос на проступи краевых ступеней центрального и запасного входа.

Тактильные наземные указатели (ТНУ) должны быть установлены согласно ГОСТ Р 52875-2018. Локальные предупреждающие указатели "Внимание, прямо по ходу движения – лестница" должны иметь определенные размеры и цвет, а также быть установлены на определенном расстоянии от ступеней лестницы. Краевые ступени лестницы должны быть выделены контрастной полосой.

Предупреждающий указатель "Внимание, прямо по ходу движения – дверь" также должен соответствовать определенным требованиям по размеру, типу рифления и месту установки в тамбуре.

Все работы должны выполняться в соответствии с соответствующими нормативными документами.

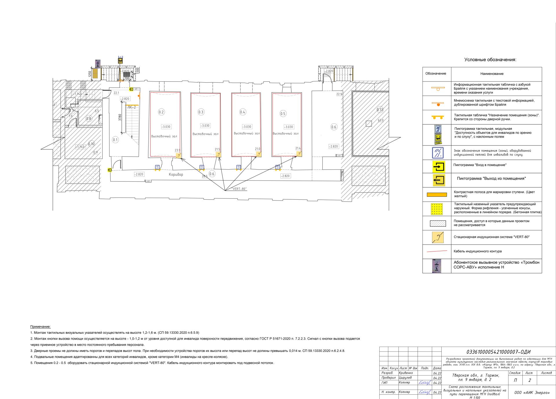
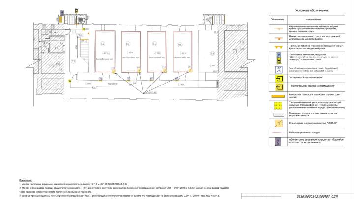
Тактильная информация о здании
Тактильная информация о здании должна быть представлена в виде тактильно-визуальной таблички о назначении здания и тактильных пиктограмм "Доступность входа для инвалидов" категорий М1-М4. Табличка и пиктограммы должны быть выполнены согласно требованиям листа 4 группы части 0В00-000049-ОДИ и установлены перед центральным входом в здание.

Тактильная мнемосхема для первого этажа должна быть выполнена в соответствии с пунктом 2.3 и листом 4 группы части 0В00-000049-ОДИ и установлена на соответствующей высоте.

Тактильное грязезащитное покрытие в тамбуре
В тамбуре необходимо установить тактильное грязезащитное покрытие "ТифлоПол-10" на всей площади пола S=7,0м2 с нанесенными на него тактильными индикаторами в линейном порядке (предупреждающих указателей), согласно листу 4 группы части 0В00-000049-ОДИ. Размер тамбура должен соответствовать требованиям СП 59.13330.2020.

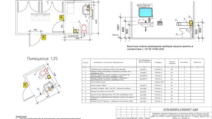
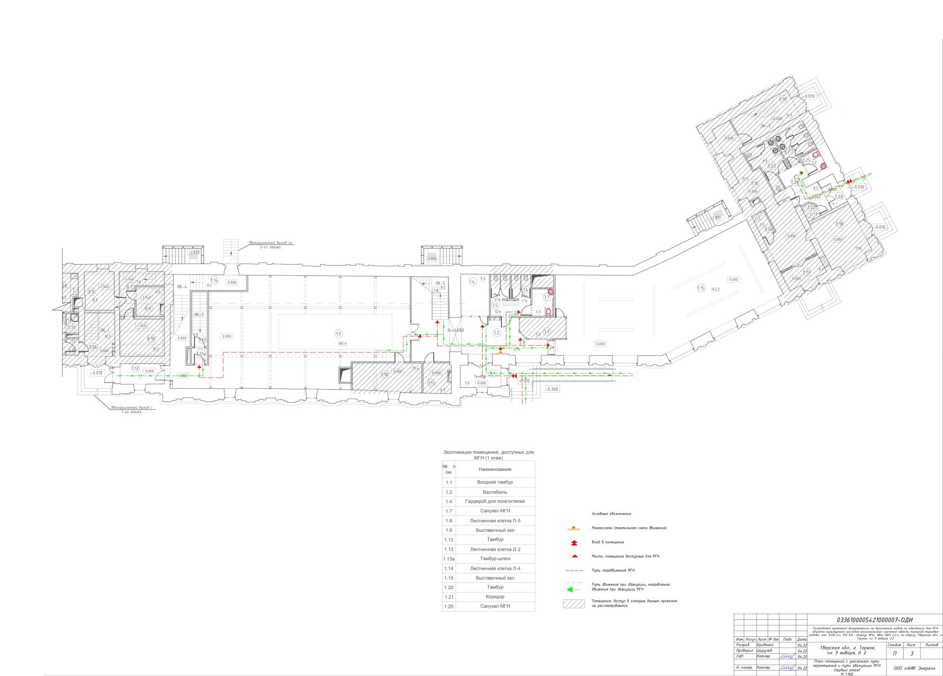
огласно СП 59.13330.2020, в зданиях с санитарно-бытовыми помещениями для посетителей необходимо предусматривать специально оборудованные доступные кабины или универсальные кабины для инвалидов. Проект предусматривает адаптацию универсальных кабин для всех категорий инвалидов, за исключением М4. Один из санузлов, помещение 1.25, является общественным и имеет отдельный вход.

Адаптация кабин включает следующие мероприятия:

  • Обеспечение пространства шириной 0,8 м рядом с унитазом для размещения кресла-коляски.
  • Установка универсального травмобезопасного держателя для трости и костылей рядом с унитазом.
  • Двери в санузлах открываются наружу.
  • Монтаж откидных поручней, соответствующих требованиям СП 59.13330.2020.
  • Установка тактильной беспроводной кнопки вызова на высоте 1,00 м рядом с унитазом.
  • Монтаж раковин, опорных поручней, сенсорных смесителей, поворотных зеркал, сенсорных дозаторов мыла и антивандальных сушилок для рук.
  • Размещение тактильной пиктограммы "Туалет для инвалидов" перед входом в санузел на высоте 1,3-1,5 м.
  • Установка раковины на расстоянии не менее 0,2 м от боковой стены.
  • Предусмотрен откидной пеленальный столик в санузле (помещение 1.7).

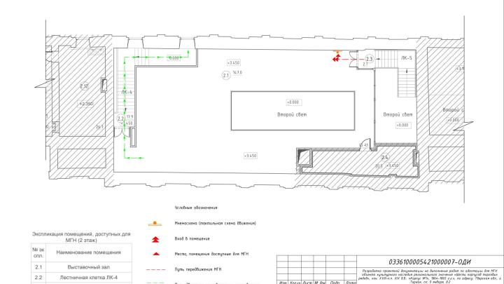
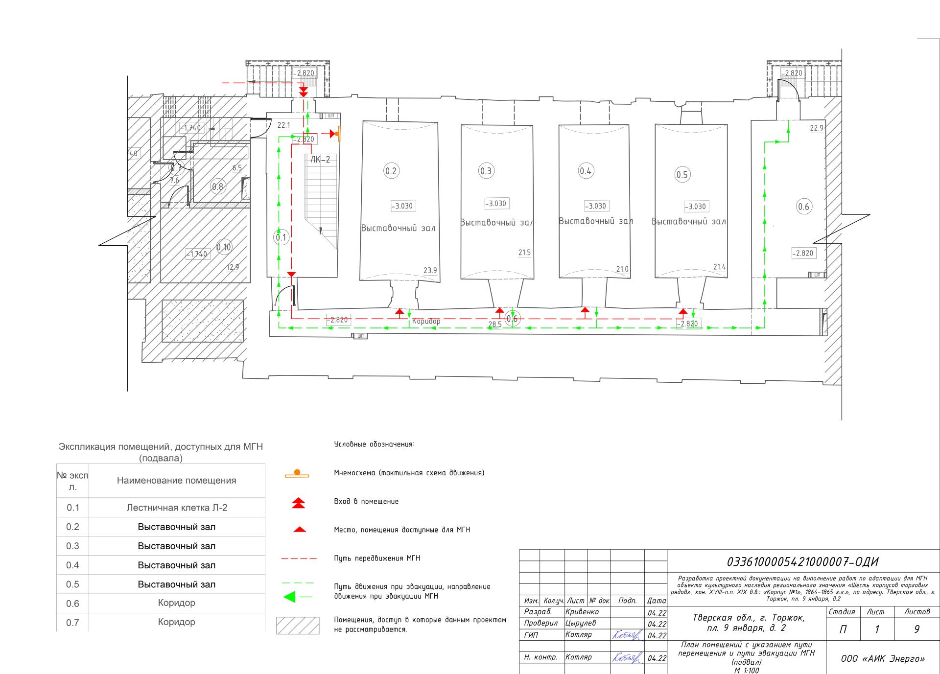
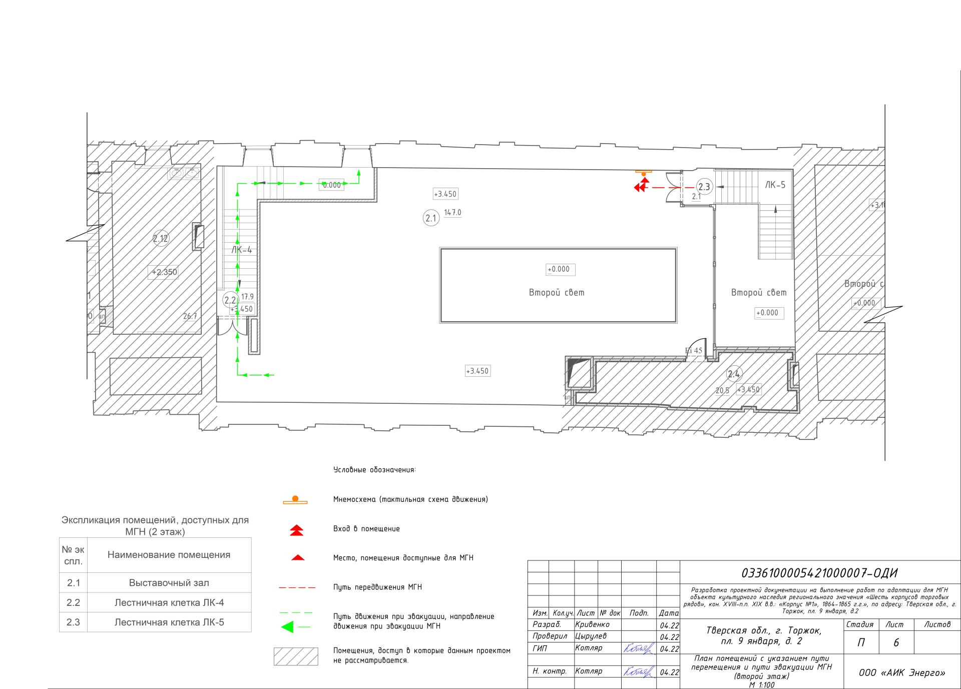
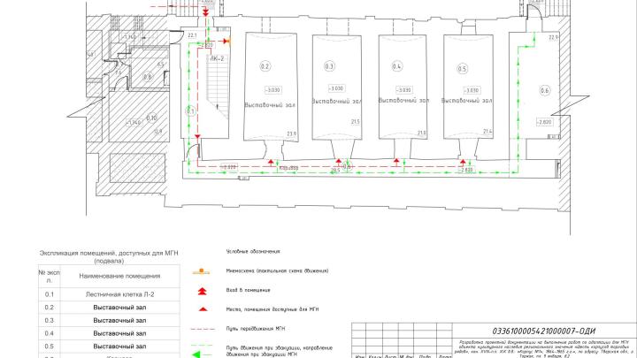
Также проект предусматривает адаптацию выставочных залов с использованием тактильных напольных указателей до дверей залов.

Дверные проемы не должны иметь порогов и перепадов высот пола. Ширина дверных проемов, доступных для инвалидов на креслах-колясках, должна быть не менее 0,9 м (при открывании двери на 90 градусов). В случае реконструкции и наличия дверных проемов в несущих конструкциях, ширина дверного проема в свету может быть уменьшена до 0,8 м.

Все указанные требования основаны на СП 59.13330.2020.

Закажите проект прямо сейчас!

Выделите опечатку и нажмите Ctrl + Enter, чтобы отправить сообщение об ошибке.